榆林市高新區第三小學
作者:建日筑聞 來源:建日筑聞
	
	
	
	
	
	
	 
		01. 項目背景
	 
		榆林市高新區第三小學位于榆林市高新區,城市發展帶來了對教育資源的巨大需求。當地政府意圖通過該項目,激發社區活力、吸引市民定居、推進高新區的城市發展。
	
	
	
	
	
	
	 
		設計工作面臨的挑戰是,著力解決好高品質校園空間與建筑造價低、用地緊張之間的矛盾。這個小學配置了6個年級,每個年級6個班,共計36個班。每一個年級的師生都有一個屬于自己的立方體教學單元。
	
	
	
	
	 
		02. 功能布局
	 
		采用集約的設計布局模式,場地西側布置教學空間和校園展廊,東側為教工食堂、報告廳和體育運動場地,中部的綜合教學樓包含了圖書室、閱覽室、展廳等輔助的功能設施,同時一定程度隔離了操場噪音對主要立方體教學單元的影響。
	
	
	
	 
		功能分析
	
	
	 
		03. 設計理念
	 
		設計的主要理念是:將校園建筑空間塑造成為一個具有儀式感的場所。按年級分為6棟立方體教學單元,小學生和教師活動在自己的的空間中,滿足一個小群體的歸屬感。同時用不同顏色表達不同的年級的教學樓的差異性,以低成本解決了不同年級教學樓的識別問題和工程建造的問題。
	
	
	
	
	
	
	
	
	
	
	 
		此外,設計也提供給校園多樣化的室外交流空間,包括:立方體周圍的院落、連廊、平臺。這些室外空間在有限的場地內,為鼓勵不同年級的學生、教師互相交流創造了條件,讓校園散發更多的活力。
	
	
	
	
	
	
	 
		校園西側的展廊,承擔了校園對外信息發布、榮譽展示的功能,也成為家長接送、等候孩子們上下學的空間。
	
	
	
	
	
	 
		04. 結語
	 
		榆林高新區第三小學的設計,滿足了城市、社區的需求,克服了苛刻的場地條件,應對了拮據的預算問題。通過積極的校園建筑和空間設計,為孩子們創造更好的成長環境。優質的校園空間和建筑吸引了社區居民和周邊的城市大眾,具有標志性的建筑形象,獲得了當地社會的積極認同。
	
	
	
	
	
	
	 
		項目圖紙
	
	
	
	 
		總平面圖
	
	
	
	 
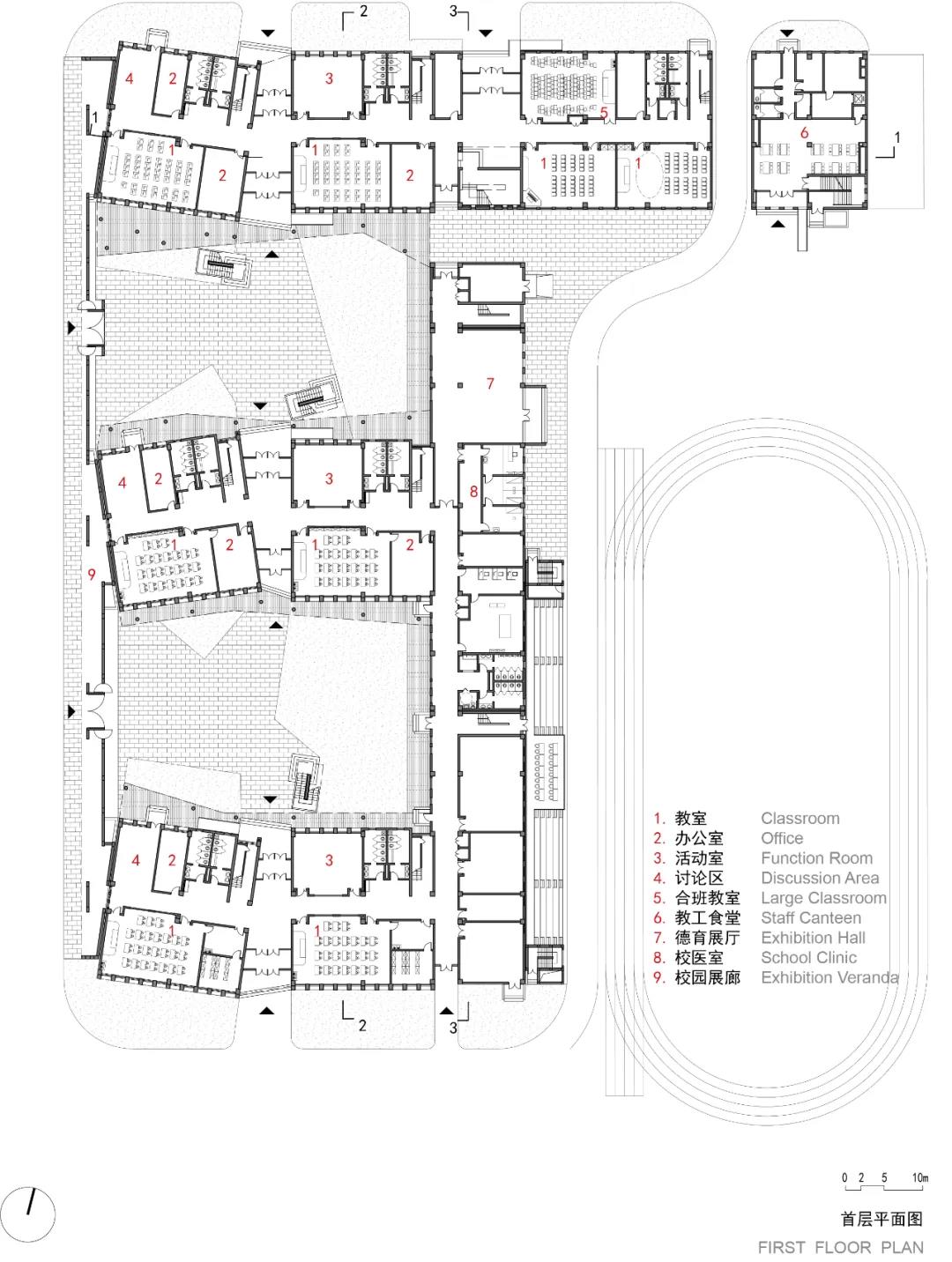
		首層平面圖
	
	
	
	 
		二層平面圖
	
	
	
	 
		三層平面圖
	
	
	
	 
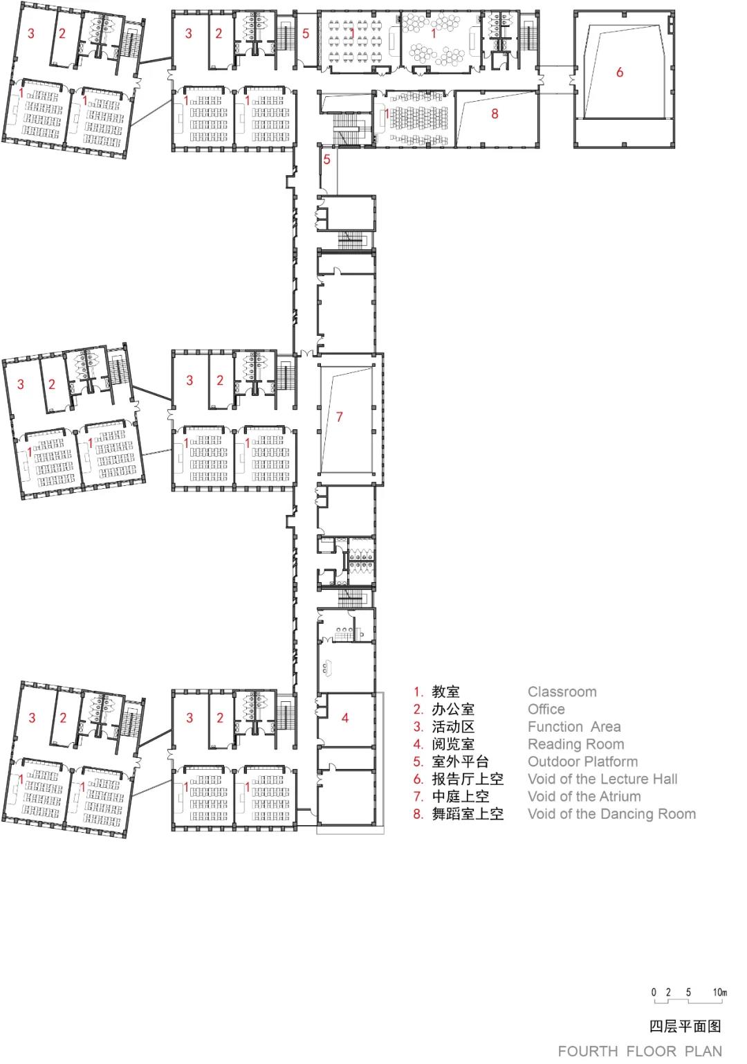
		四層平面圖
	
	
	
	 
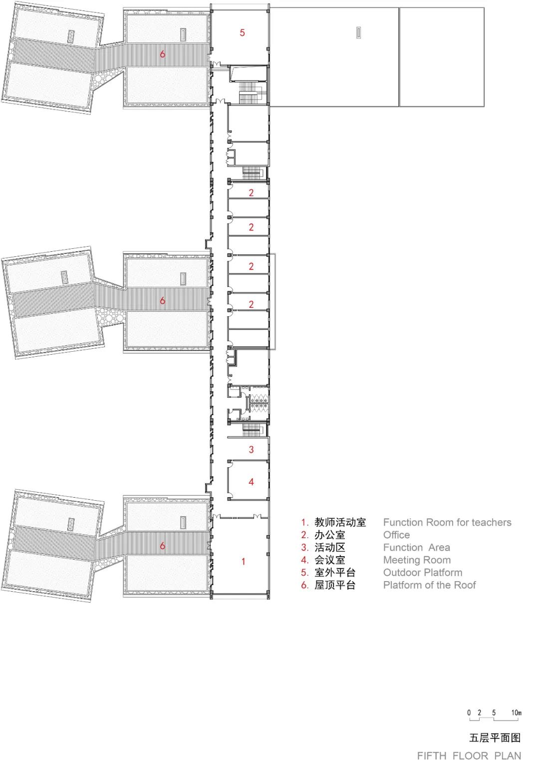
		五層平面圖
	
	
	
	 
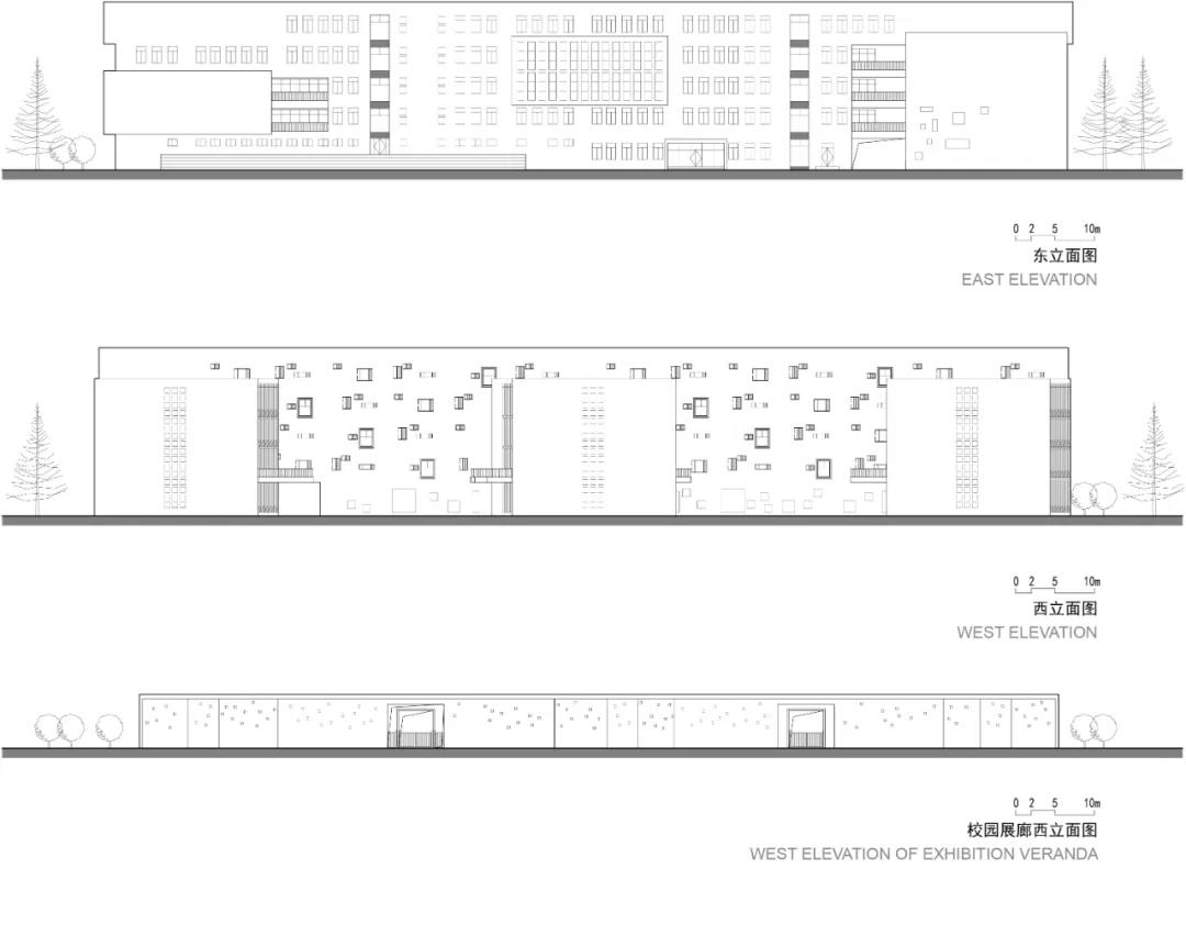
		立面圖
	
	
	
	 
		立面圖
	
	
	
	 
		剖面圖
	
	
	
	 
		軸測圖
	
	
	
	 
		項目信息
	
	
	 
		建筑師:清華大學建筑設計研究院
	 
		地址:高新區, 榆林, 陜西, 中國
	 
		項目年份:2019
	 
		建筑面積:24150.0 平方米
	 
		攝影師:蘇圣亮
	 
		主創建筑師:盧向東、霍春龍、王麗莉
	 
		建筑設計團隊:盧向東、霍春龍、王麗莉、孫中軒、郭瑽、劉霄、史諾(實習)、王濤(實習)、吳成志(實習)、冉茂莎(實習)
	 
		結構設計團隊:劉湘、江波、許錦燕
	 
		電氣設計團隊:張紅霞、劉路
	 
		暖通設計團隊:王濤、李冰
	 
		給排水設計團隊:崔艷輝、王春香
	
.END.
	
注:本文轉載自建日筑聞,版權歸原作者所有。
	
	
	
	
	
	
	
	
	
	
	
	
	
	
	
	
	
	
	
	
	
	
	
	
	
	
	
	
	
	
	
	
	
	
	
	
	
	
	

