新作 | 桂林興安縣靈渠展示中心
作者:gooood谷德設計網 來源:gooood谷德設計網
	
 
“斬山開道、連接長江、珠江水系,兩千余年前有此,誠足與長城南北相呼應,同為世界之奇觀。”——郭沫若《滿江紅·靈渠》
	
公元前221年,秦始皇繼統一六國之后,派屠睢率兵,兵分五路進攻 “秦戍五嶺”(百越)。然而途中戰事不順,屢屢頹敗,迫使秦軍“三年不解甲馳***”(《淮南子 人間訓》);究其原因:崇山峻嶺上千公里,經常遭遇伏擊,糧秣不繼,軍需延滯。為此,嬴政命史祿“以鑿渠而通糧道”,其連接湘江、漓江,打通長江與珠江水系,使得中原的糧草源源不斷地進入洞庭湖——靈渠。因靈渠的浚通,不但讓當時的秦軍勢如破竹,一舉統并百越;并且使得中原與嶺南之間政治、經濟與文化快速地融合,其樞紐作用對于文化的影響長遠至今。興安靈渠博物館,顧名思義,坐落于擁有世界上最古老的運河靈渠的“湘桂走廊”要沖—興安。作為中原漢文化和嶺南百越文化地交匯之地,聯結東南亞一帶一路海上絲綢之路的節點,將此地歷史文化借助現代之力源遠流長。
	
▼展示中心全景鳥瞰圖
 
	
	
在設計主題上,興安縣承載著獨一無二的、地域性的嶺南與漢文化交融的積淀;靈渠的歷史地位不言而喻,以靈渠的水為文化的載體承載所謂“曲水流觴,飲水思源”;以柔的方式表達:靈渠雖為人工而成,但與自然融為一體;可謂“巧奪天工”;雖經歷兩千年,依然呵護并滋潤著興安人民 —— 以形象化的語言,更能讓人感受歷史與現代的空間交叉與流動;對于興安來說是一個開放的地標,更具有加強該城市文化目的地的國際與歷史意義。
	
 
	
 
	
 
項目基地位于興安縣城東側,臨雙靈路,與靈渠公園入口隔路相望;東側為住宅區,北側道路對面為酒店。地形條件為復雜的山地,用地范圍線以內,地形最高點與道路高差15米左右;需要在保證不影響文物古跡空間和視野環境的情況下,對構筑物的體量、高度進行控制,從視覺上保護文物古跡的環境。另外要化解西側高層住宅對基地的影響并塑造博物館的城市標志性,我們利用復雜的場地條件創造舒適的文物展覽及市民文化活動空間,結合實際的蜿蜒的基地山形,形成景觀山地建筑,精巧地與靈渠風貌互相結合、交相呼應。
	
▼展示中心俯視圖
	
	
▼展示中心正立面外觀,結合實際的蜿蜒的基地山形,形成景觀山地建筑
 
	
 
	▼展示中心正立面外觀局部
 
	
 
	
 
隨著對人類賴以生存的自然環境的逐步認識和可持續發展觀念的深入人心,設計師也越來越注重博物館與環境的融合、強調建筑與自然和諧共生。所以以靈渠的水為載體將歷史、景觀、建筑聯系起來,強調水與建筑共生:一為隱喻靈渠對歷史的“承載”;二則代表“融合”,漢文化和嶺南百越文化的交匯,文化與生命之源。依山而建,背山面水,風水態勢:歷史、人文、景觀、建筑甚至材料融為一體。值得一提的是靈渠屹立千年不倒,取決于歷史的智慧“魚鱗壩”設計:古人用石條層層疊疊豎直相互穿插,借用河水中泥沙石子經年累月的沖刷填埋空隙 —— 時間越久,水流越澎湃,整個大壩就會相互擠壓進而變得更加緊密牢固,真正詮釋了“歷久彌新”的含義。靈渠博物館為了回應并致敬史上興安勞動人民的勤勞與智慧,以“魚鱗石”作為主要墻面的肌理,實現歷史和現在的對話。
	
▼展示中心外觀,歷史、人文、景觀、建筑和材料融為一體
 
	
	
▼展示中心外觀,采用層層疊疊相互穿插的“魚鱗壩”式設計
 
	
	
▼展示中心外觀局部
 
	
 
	
 
	
 
▼展示中心外觀局部,以“魚鱗石”作為主要墻面的肌理,實現歷史和現在的對話

	
	
博物館之于近代不僅僅在拘泥于 “教育”的層面,除征集收藏文物展品,進行科學研究、舉辦陳列展覽、傳播歷史和科學文化知識等基本功能外,我們認為與社會生活與人文情懷也在多個層面有著千絲萬縷的聯系。換句話說,博物館教育的本質是使受眾自主參與體驗并獲得知識啟迪和情感陶冶的意義構建活動。那么人性化體驗空間的加入就顯得至為重要,“社區化、人性化、多元化”的多功能性博物館才能吸引不同年齡段甚至不同需求的市民和游客參與及互動,傳承文化。參觀主入口在北側集散廣場方向,面向靈渠公園入口。
	
▼參觀主入口在北側集散廣場方向,面向靈渠公園入口
 
	
	
游客進入建筑內部最先到達的空間是展覽中心的大廳,兩層通高12米中軸對稱的中庭設計為整個建筑的空間核心。首層兩個常設展廳和一個臨時展廳圍繞中庭廳布置,通過直通二層的樓梯連接布局相同的二層展廳。為考慮觀眾參觀路線的便捷性和流暢性,避免參觀路線的的折返和重復,各個展廳出入口獨立設置并與其他功能區有效銜接。展廳東南部分為藏品區,設置有石器、瓷器、陶器、金屬類、瑪瑙、錢幣、書畫、革命文物等八大類藏品庫房,保持恒濕以利于藏品的長久安全的存放。藏品流線完全獨立,所以如有新藏品入館會在地下的卸貨平臺完成裝卸并通過專用通道及貨梯進入展館以確保藏品的安全。辦公區垂直藏品區設立,在建筑南側消防環道有獨立的出入口,有效利用了南側順應山勢的消防道路。
	
▼展示中心室內空間流線分析圖
 
	
	
▼室內展廳
 
	
	
 
	
 
	
 
	
 
在歷史長河的縮影中,我們看到了“咫尺江山分楚越,使君才氣卷波瀾”的史祿為秦始皇鑿渠運糧,納八方入版圖;看到了湍流的湘江洶涌北去,日益沖刷著并不算寬闊的堤壩;好像也看到了歷朝歷代為了兩廣民生,大加興筑或補苴罅漏的知府高官。滄海桑田,歷代文明賦予了靈渠深遠而不可磨滅的地位和文化積淀,設計師希望以一種更為綜合化與現代化的方式,讓靈渠的歷史文化如他的堤壩一般固若金湯,如靈渠的河水般源遠流長。
	
▼展示中心正立面夜景
 
	
	
▼展示中心外觀夜景,以一種更為綜合化與現代化的方式展現靈渠的歷史文化
 
	
▼展示中心主入口夜景

	
	
 
	
 
▼展示中心夜景

	
	
 
項目圖紙
	
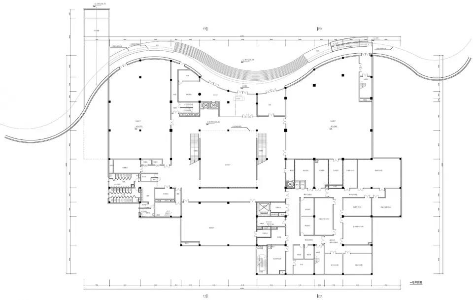
▼一層平面圖

	
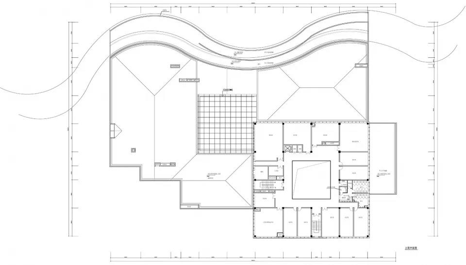
▼三層平面圖

	
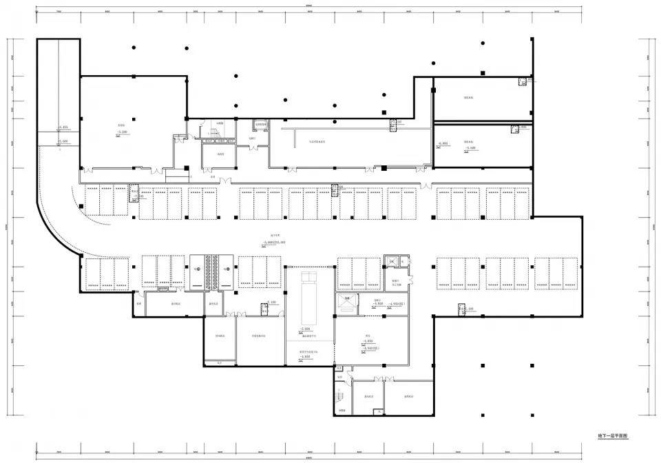
▼地下一層平面圖

	
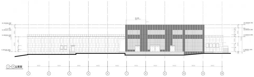
▼立面圖

	
	
 
	
 
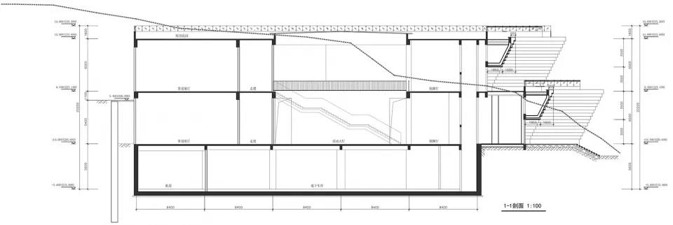
▼1-1剖面圖
 
	
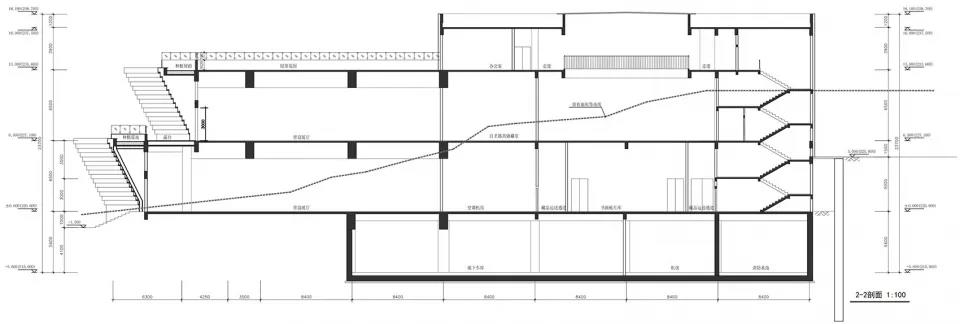
▼2-2剖面圖
	
	
 
	
 
▼3-3剖面圖
 
	
	
 
	
 
	
	
	
	
 
.END.
	
 
注:本文轉載自gooood谷德設計網,版權歸原作者所有。
	
 
	
 
	
 
	
 
	
 
	
 
	
 
	
 
	
 
	
 
	
 
	
 
	
 
	
 
	
 
	
 
	
 
	
 
	
 
	
 
	
 
	
 
	
 
	
 
	
 
	
 
	
 
	
 
	
 
	
 
	
 
	
 
	
 

