新作 | 園林式敘事的校園 - 南京棲霞山石埠橋中心學校
作者:gooood谷德設計網 來源:gooood谷德設計網
	
項目背景
		
	
南京棲霞山石埠橋中心學校為九年一貫制學校,是棲霞街道整治拆遷后經濟適用房的公建配套項目之一,設計需在原有教學樓基礎上進行改擴建。場地位于棲霞山西側,總用地面積約為4.59公頃,總建筑面積29915平方米。
▼項目概覽
▼設計在原有教學樓基礎上進行改擴建
▼建筑外觀

	
	
新舊 | 場地的限制
		
	
石埠橋小學始建于1913年,原來是私塾,學校現址位于長江第四大橋沿線以東。綜合考慮之后,方案保留了2004年加建的教學用房,而對場地中1994年建立的單跨柱教學樓進行了拆建。對于現存池塘,我們認為在現如今如此密集的城區內部,有一片池塘是十分難得的,具有保留的必要性。
		
	
此外,場地緊鄰長江第四大橋,根據環境評估報告中關于隔離噪音的要求,教學用房必須退讓長江第四大橋超過200米的距離。這條退讓線將用地分割成了東西兩部分,西側根據規定不能設置班級教室,這使新校區的總平面布置與功能布局受到了限制。
▼場地平面圖
	
▼設計生成示意
		
	
▼從連廊望向長江第四大橋
	
	
布局 | 園林式敘事
		
	
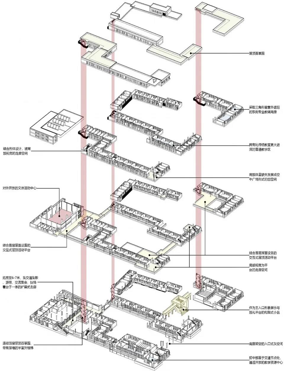
新教學樓在進行空間布局時,參考了中國傳統書院的形制,采用了院落式布局的思路。設計將整個校園的庭院分為四個體系,分別為濕地花園、生物園地、童心樂園及屋頂種植園,并相應地進行了景觀設計和內涵填充,以達到輔助教學與擴展教育場所的目的。
▼院落式的布局
	
	
	
此外,校區還采用了豎向的垂直分區,底層設置的合班教室、教學資源中心等大型綜合功能空間通過寬闊的連廊連接,形成了連續的一層屋面空間。這些屋面為校園提供了豐富的活動平臺,不但方便了課間活動,還為學生提供了多種路徑選擇,營造了良好的步行體驗。
▼軸測拆解圖
▼連續的屋面空間
	
解構 | 場所感營造
整個建筑群的空間組織都是將體驗感作為核心要素的,這也是建立“場所精神”的關鍵。在學校的主入口正中間,有一座被稱為“時光盒子”的小品建筑,它以四邊形的“方亭”將樓梯和臺階與天橋結合起來。這個構筑物不但為師生提供了每天進入教學樓的一段別樣的步行游覽體驗,還能成為學校重要活動留影時的背景建筑。
▼“時光盒子”草圖構思
▼“時光盒子”外觀
	
	
	
▼“時光盒子”將樓梯和臺階與天橋結合起來
	
	
	
▼天窗下的樓梯
	
	
在初中部教學樓的一角,在三到四層的部位空出了兩層通高的內凹平臺作為“空中廣場”,為高年級學生提供課間游憩交往的場所。這個“空中廣場”面向城市街角,天天在這里進行課間休閑活動的學生們將學校青春活力的一面展示給外界。而教學樓與生活服務樓之間的連廊,則被放大到6-7米,是學生在雨雪天氣主要的半室外交往學習空間。
▼“空中廣場”草圖構思
▼“空中廣場”為高年級學生提供課間游憩交往的場所
	
▼坡道
		
	
設計中為了避免學生在樓梯中發生沖撞,建筑師將樓梯中的隔墻留出洞口,保證了行進在上下樓梯段的學生互相的視線聯系。這些留著各種形狀的孔洞的隔墻被涂上鮮艷的顏色,活躍了建筑的表情。同時,為了方便學上將沉重的運動器材用小推車從二層的體育館運輸到操場,我們設計了一處坡道,這處坡道也可以用來作為師生散步的路徑,成為一種很有意思的體驗。
▼樓梯隔墻上的洞口保證了學生互相的視線聯系
▼交通路徑
▼室內樓梯間
▼操場視角
▼連廊夜景
▼建筑外觀夜景
	
	
	
項目圖紙
		
	
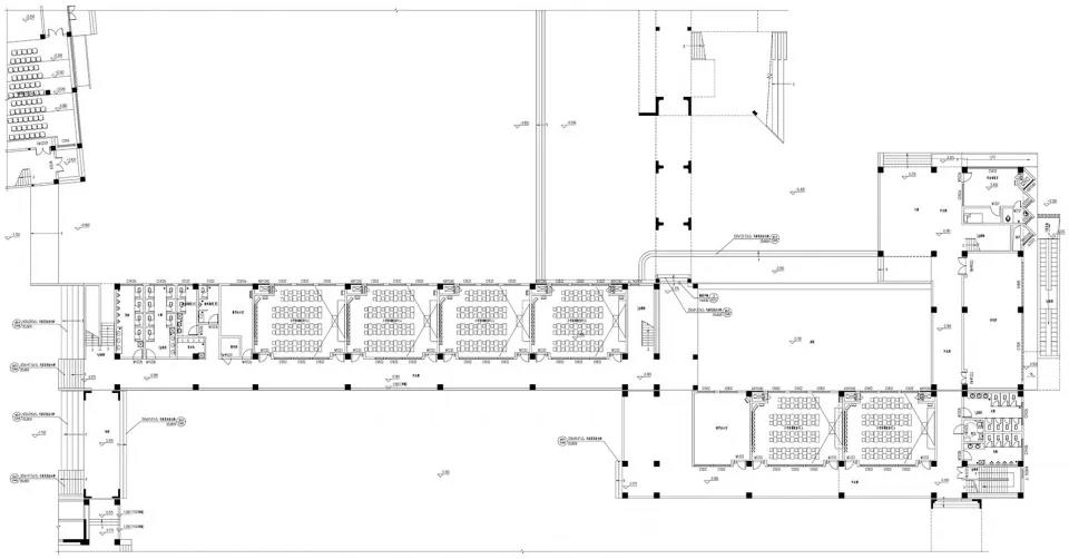
▼小學部教學樓一層平面圖
	
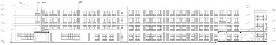
▼小學部教學樓剖立面圖
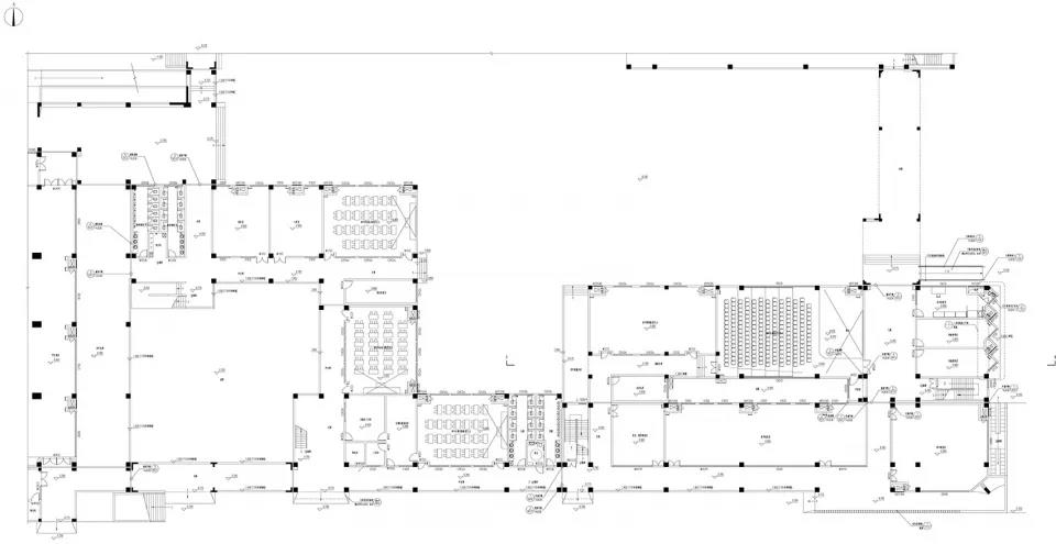
▼中學部教學樓一層平面圖
▼中學部教學樓剖立面圖
	
		
	
.END.
	
注:本文轉載自gooood谷德設計網,版權歸原作者所有。
	
	
	
	
	
	
	
	
	
	
	
	
	
	
	
	
	

