GWP公開‘?廣州豐盛101高層綜合體’方案
作者:建日筑聞 來源:建日筑聞
	
	
	
	
	 
		豐盛101項目位于廣州增城荔新大道旁,其北側遠眺南香山,南側遙望廣州珠江新城,坐擁粵港澳大灣區和廣深創新走廊核心區位優勢。該項目與周邊交通體系相結合,助力于大灣區一小時生活圈的建設。該項目總建筑面積約15萬平方米,GWP負責二期200米高的綜合體設計,涵蓋了酒店、辦公、公寓、商業等多種業態。
	
	
	
	
	
	 
		豐盛101項目從結構體塊處理引入延伸至揚帆起航的概念將建筑形態,空間體驗,和通風采光等因素協調平衡創造了豐富獨特的建筑美感,希望能為當地人們帶來空間感知的愉悅和精神的振奮,以及對生活、工作場所的歸屬感。
	
	
	 
		——張國威 John Zhang(豐盛101項目主持建筑師,GWP董事合伙人)
	
	
	
	
	
	
	 
		GWP提倡“建筑是一種詩意的棲居,以恰到好處的平衡之美營造獨特的建筑形象和空間氛圍”。設計團隊希望在這個地標高層綜合體的設計中本著以人為本的出發點,注重采光,通風,與自然生態景觀相融合,引入多層次交互開放空間,在建筑形式與結構美學相得益彰的同時,賦予項目豐富的個性和獨特的魅力。
	
	
	
	
	
	
	 
		主創建筑師以揚帆起航的畫面為概念靈感,希望用凝固的建筑去描述這種動態的趨勢,以更親近的尺度拉近市民與社區、自然的距離,使之成為融入城市的場所。形態的生成以建筑核心筒為軸心,向南北分成兩個體塊,東西錯開一個柱跨。
	
	
	
	
	
	
	
	
	 
		外立面以“帆”之理念塑造,順勢而下,輕盈落于裙樓之上,形成雨棚空間,巧妙地將建筑的裙樓和塔樓融為整體,以自然有機的形態點綴著城市的天際線。登高遠望,嶄新的城市面貌與沉淀的自然人文環境將盡收眼底,成為廣州乃至粵港澳大灣區一道亮麗的風景。
	
	
	
	
	
	
	
	
	
	
	 
		充滿生命動感的扭動為建筑帶來獨特的韻律之美。在設計團隊的精心推敲之下,建筑立面在不同角度下都呈現出與周邊環境相融合的姿態。項目東側外立面與緊鄰的豐樂能源大廈的立面曲線形成協調統一的建筑語言,豐富了人們在公園的休閑散步的觀賞體驗。
	
	
	
	
	
	 
		形態分析
	
	
	
	 
		立體功能分析
	
	
	 
		利用錯開的建筑體塊,主創團隊在南北兩側分別設置了空中景觀平臺,將周邊的生態綠地體驗延伸至建筑垂直立面,順勢至屋頂花園。郁郁蔥蔥的綠植形成兩道優美的空中綠廊,這里將成為垂直分布的生態空間提升各樓層功能業態的景觀體驗。
	
	
	
	
	
	
	
	 
		項目圖紙
	
	
	
	 
		場地平面圖
	
	
	
	 
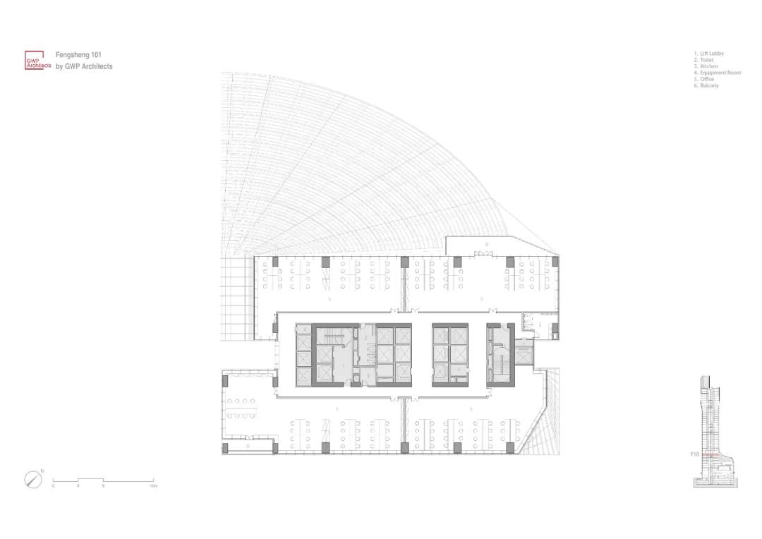
		平面圖
	
	
	
	 
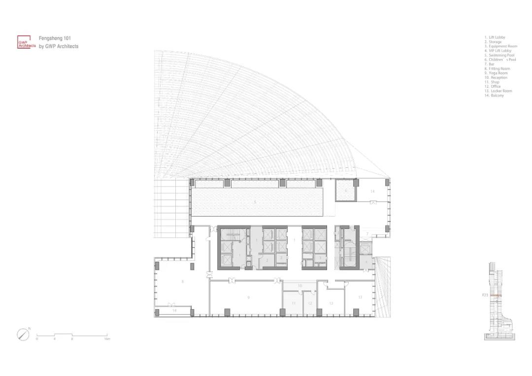
		平面圖
	
	
	
	 
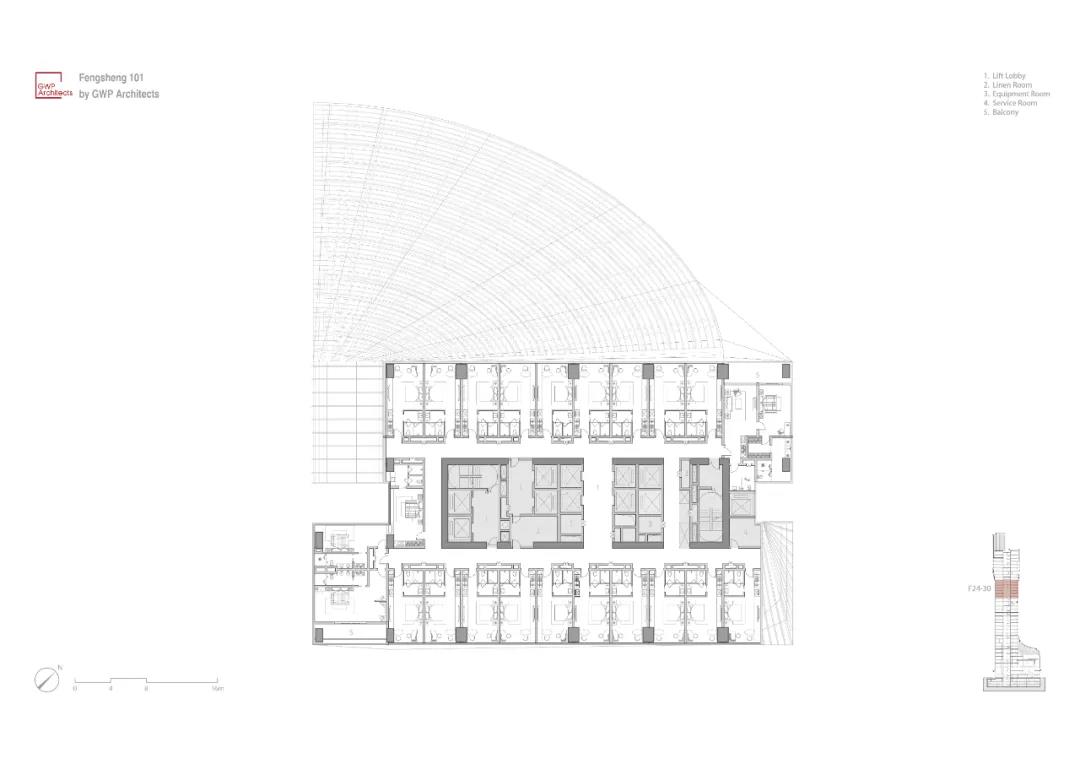
		平面圖
	
	
	
	 
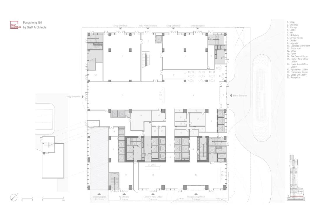
		平面圖
	
	
	
	 
		西北立面圖
	
	
	
	 
		東北立面圖
	
	
	
	 
		東南立面圖
	
	
	
	 
		西南立面圖
	
	
	
	 
		剖面圖
	
	
	
	 
		剖面圖
	
	
	
	 
		細節圖
	
	
	
	 
		風荷載分析圖
	
	
	
	 
		場地現狀
	
	
	
	 
		項目信息
	
	
	 
		建筑師:源尚設計咨詢(香港)集團有限公司(GWP)
	 
		地址:增城,廣州,中國
	 
		建筑面積: 81000㎡
	 
		主創建筑師: 張國威(John Zhang)
	 
		設計團隊: John Zhang,Jackle Luo,Ben Huang,Leo Liao,Vivian Cai,Lei Chang,Ronghua Li, Huven Hua, Jian He, Vensen Zhu, Zerun Mo, Wei Gu, Tao Wei, Shanshan Xu,Yanlin Zhang, Zhenyong Pang, Zongwei Hu, Min Xiang, Peigen Huang, Hanming Tong,Yonghua Xu, Jinglong Yan, Lei Huang, Yuan Liao, Jinbao Zhuo, Xi Li, Wenhui Liang, Dong Xie, Weihua Wu, Yunlian Zhong, Zilan Lin. 
	
	
.END.
	
注:本文轉載自建日筑聞,版權歸原作者所有。
	
	
	
	
	
	
	
	
	
	
	
	
	
	
	
	
	
	
	
	
	
	
	
	
	
	
	
	
	
	
	
	
	
	
	
	
	
	
	
	
	
	
	
	
	
	
	
	
	
	
	
	
	

