湯樺建筑新作:深圳國際藝展中心藝術小鎮 02-12二號地塊
作者:建日筑聞 來源:建日筑聞
	
	
	
	 
		向契里柯致敬的建筑表達
	
	
	 
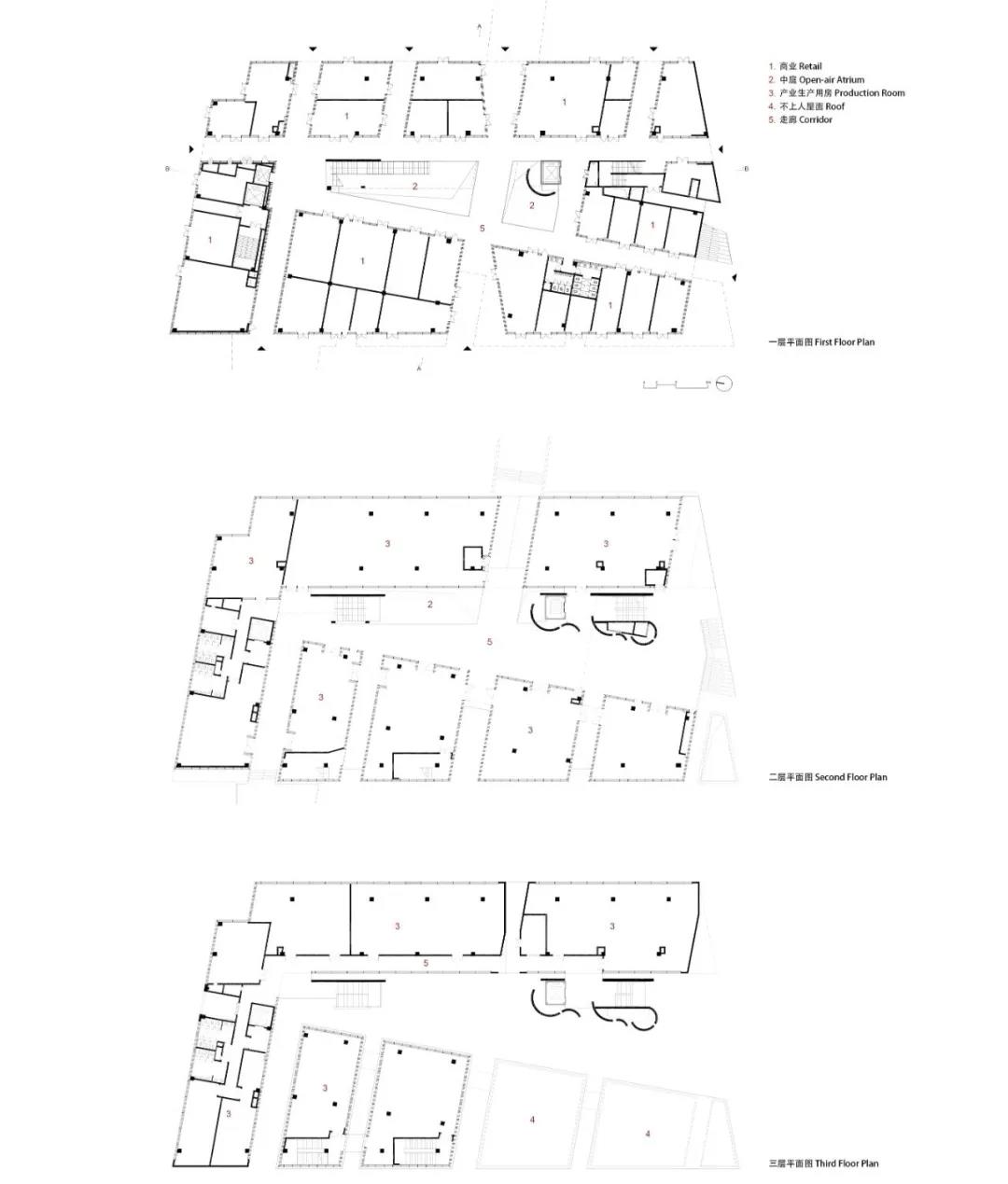
		深圳國際藝展中心(iADC)藝術小鎮02-12地塊2#的設計受滿京華集團和許李嚴建筑師事務所的邀請,南側面對嚴迅奇先生設計的藝術小鎮博物館,西側緊鄰藝展城中央步行街,主要容納藝展零售商鋪、輕餐飲和藝術家工作室等功能。
	
	
	
	 
		軸測圖
	
	
	
	
	
	 
		南側街景
	
	
	
	 
		西側街巷
	
	
	 
		在整個藝術小鎮中,蜿蜒的中央步行街道由南至北串聯了三個步行街區,空間收放有度、張弛自如、構圖嚴謹。我們希望為這條街道增加一縷神秘、甚至憂郁的氣質,與左鄰右舍形成竊竊私語般的對話。
	
	
	
	 
		西北側街景
	
	
	
	 
		“盒子”的間隙
	
	
	 
		正如意大利畫家喬治·德·契里柯(Chirico Giorgio de)的作品那樣,陽光斜撒、明暗對峙、街道空寂,小女孩兒的孤獨衣裙閃過,轉彎處人影綽約,而街角蹲伏著不可思議的神秘物品。
	
	
	
	 
		Mystery and Melancholy of a Street
	
	
	
	 
		二層廣場
	
	
	
	 
		二層廣場
	
	
	 
		方案設計由此“臆想”而來,在限定的體量內部構建獨具一格的建筑語言。外圍硬朗的界面和內部半透明的浮空盒子形成對峙,它們之間的空中街道眺望著南側的美術館,隱藏在建筑陰影中的銹紅的圓拱打量著過往的路人,南端出挑的“發光體”成為街角昏黃的墨綠搪瓷路燈,下邊聚集著悠閑的街坊。而空中街道的下方還隱藏了一處竹影婆娑的“池塘”,幽幽瑟瑟的嗓音撩撥著聽眾的耳膜……
	
	
	
	 
		“杜尚的樓梯”#1
	
	
	
	 
		從“杜尚的樓梯”向外望
	
	
	 
		馬塞爾·杜尚(Marcel Duchamp)在他的畫作中以松散的幾何體量打碎了時間,為靜止的圖面賦予移動的表征。我們用一座充滿立體主義色彩的銹紅色樓梯作為漫游路線中的視覺焦點。弧形穿孔板翻轉變化,形成半透明的、伴隨行走不斷變化的異形畫框。
	
	
	
	 
		Nude Descending a Staircase, No. 2
	
	
	
	 
		杜尚的樓梯”成為了漫游路徑的聚焦
	
	
	
	 
		立面細部
	
	
	 
		建筑底層通過四橫二縱的街巷為整個地塊帶來四通八達的步行交通,四橫強調通達與效率,尺度較小,二縱強調體驗與驚喜,在內部圍合形成一個狹長的楔形內院,向下沉至地庫,形成綠植庭院,向上溝通各層。二層設計為向南側美術館開放的空中廣場,連接地面和三層,與整個藝展城的立體交通體系相接。
	
	
	
	 
		楔形內院
	
	
	
	 
		中庭交錯的光影
	
	
	
	 
		體量上的轉折
	
	
	
	 
		項目圖紙
	
	
	
	 
		項目區位
	
	
	
	 
		草圖
	
	
	
	 
		平面圖
	
	
	
	 
		立面及剖面圖
	
	
	
	 
		項目信息
	
	
	 
		建筑師:深圳湯樺建筑設計事務所有限公司
	 
		地址:國際藝展中心藝術小鎮,深圳,中國
	 
		項目年份:2019
	 
		建筑面積:5808 ㎡
	 
		主創建筑師:湯樺
	 
		設計團隊: 湯樺,王鯤,鄭昕,張文韜,楊原,趙宇力
	
	
.END.
	
注:本文轉載自建日筑聞,版權歸原作者所有。
	
	
	
	
	
	
	
	
	
	
	
	
	
	
	
	
	
	
	
	
	
	
	
	
	
	
	
	
	
	
	
	
	
	
	
	
	
	
	
	
	
	

