一體兩面,張家港職工文體中心
作者:建日筑聞 來源:建日筑聞
	
 
	
 
模型
	
文體中心項目位于張家港市城北新區的核心地段,承載著文藝匯演和體育活動兩大主要功能,內容包括大劇院、小劇場、會議中心,50米游泳池,室內羽毛球場、籃球館和電影院,以及圖書室、咖啡廳和健身房,包羅萬象,希望在一個綜合體的屋頂下,最大限度的實現市民業余生活的多樣性。
	
	
 
	
 
常常都說文體不分家,其實觀看話劇演出,和參加羽毛球鍛煉,完全是兩種不同的行為活動。人們的著裝禮儀、社交方式和場景氛圍,有著很大的差別。因此,設計的策略是安排兩個廣場,分別位于地塊的東西兩個端頭,各自獨立,互不干擾。一個負責文藝清新,一個表現活力動感,既方便各種人群的組織疏散,更利于塑造不同的空間場景。
	
	
 
西入口文化廣場
	
西廣場是文化廣場,包括一個綜合性的演藝會議中心,核心功能是1200座的大劇院,同時承接著地方政府各類會議的任務。廣場占地約3000平方米,景觀層次豐富,視線敞朗,滿足大型文藝觀演的集散要求。立面法度嚴謹,線條平直優雅,門廊高敞,布局端莊。飾面主材選用暖灰色的萊姆石,色彩沉著,肌理柔和,襯以精致的拉鎖玻璃幕墻,塑造了具有儀式感的空間序列,共同形成了安靜內斂的文化氛圍。
	
	
 
西廣場
	
	
 
西入口
	
	
東廣場是體育廣場,包括游泳、籃球、舞蹈等多種類型的體育場館,主要服務于城北新區的居民。不同于西廣場端莊優雅的儀式感,這邊強調的是大眾健身的日常性與運動感。相應的,建筑呈現出另外一種姿態,立面表情變的活潑靈動,透明輕盈。
	
	
 
東廣場
	
形體對比強烈,直面與弧線,金屬銳度和光滑玻璃,渲染著體育的沖擊力和力量感。其中,綠色是一個具有標簽性的色彩,喻示著生命與自然,傳遞著時尚健康的氣息。主材選用打孔鋁板獲得透明感,運用三種不同深度的綠色,藍綠、中綠和草綠,整體色調上深下淺,色塊間次有機排布;局部單元飾以鋁板實面,或是斜鍥,或是凹入,獲得斑駁的楔狀陰影。陽光穿過幕墻的孔隙,各種綠色相互疊加,仿佛早春晨間的樹林,透明朦朧而生機盎然, 這一特征性的表皮肌理,很好的詮釋了空間場景的主題——運動和活力。
	
	
 
東入口體育廣場
	
	
 
綠色肌理
	
近年以來,綜合體的概念越來越寬泛,有商業綜合體、教育綜合體、文化綜合體、產業綜合體……這反映了建筑功能復合化的大趨勢,鼓勵不同的人群聚集活動,提升空間使用的頻次和效率,強調空間表情的豐富性和差異化。
	
	
 
綠色肌理
	
與此同時,場景的差異化和建筑風格的統一性產生了分化和矛盾,功能越復合,場景越豐富,矛盾越突出。對應于豐富的場景要求,外部的建筑風格很難處理的靈活百變,立面語言通常是嚴格的保持統一;相對而言,在室內更容易實現場景的差異化。美式商業綜合體是一個很好的例子,它們的外型大都很炫酷,常常采用同一種肌理包裹形體,如同一個神秘的百寶箱,打開后萬千世界,五彩繽紛。
	
	
 
	
綠色肌理
	
	
這是商業推廣的標準套路,盒子獲得大尺度的城市標志性,在室內實現小尺度的場景豐富性。造型的歸造型,室內的歸室內,非常實用,也很高效,但應該不是唯一的思路。某種程度上,它的高效是忽略了場景的差異性,放棄了室內外場景的連續性,同時將場景營造的任務,基本拱手讓位給了室內設計。
	
	
 
文化廣場大廳
	
	
 
劇場大廳
	
基于不同的使用場景,運用不同的立面表情,是另一種思路,也是一個大膽的嘗試。在職工文體中心的項目上,存在著演藝和健身兩種不同的行為,存在著儀式感和日常性的差異,存在著政府會議期間局部封閉管理的要求,這些都成為兩個廣場、兩種表情的前提,成為一體兩面實驗的邏輯基礎。顯而易見的,兩種手法的并置帶來了意外活力,同時帶來了對比和碰撞。如何將沖突轉化為節奏,統一兩者的調性,是接著必須處理的任務。
	
	
 
體育中心
	
	
 
體育中心
	
場景差異帶來的問題,只能是回到場景/活動本身去解決。任何一種活動都帶有基本的社交屬性——活動各有各的精彩,交往卻是普遍的出發點和需求。一直以來,強調公共空間的融合與交流,促使各種不同場景有機協調的共存,都是建筑師的不二法門。理想的是,如果公共空間能和基地特征發生某種緊密的聯系,往往意味著更鮮明的個性,更強的統率力,更能將不同的場景融為一體。
	
	
 
	
模型
	
	
	
 
模型
	
基地北側有一條小河,兩側的綠化不錯,間隔放了些木制廊架,可以供人歇息。自然的,這條小河與建筑交織在了一起,所有的活動都與河流發生著關系。無論是觀看文藝演出,或是體育健身,都會在河邊相遇。
	
	
 
河邊景觀
	
這里是劇場的室外休息平臺,中場時可以過來抽根煙;咖啡館設在三層臺階的邊上,臺階的高度正適合斜倚著看書;游泳館和籃球場都設置了整面的落地玻璃窗,正對著河岸景觀;當然,在健身房的跑步機上可以望見河邊的柳樹。
	
	
 
河邊場館
	
	
 
河邊場館
	
	
大臺階是劇院建筑的一個典型元素,在這里演繹成為閑坐、停留的場所,它開始于河岸,逐步爬升至二層平臺,將河道綠化帶入建筑內部。平臺繼續攀升至三層的花園,層層而上,綠茵蔥蔥。弧形大屋頂與彎曲的河道遙相呼應,頂部開設天窗,引入陽光,遮風避雨,提供有多種活動的可能性。
	
	
 
河邊場館
	
	
 
河邊場館
	
由于河流串聯了各種活動,各種活動也產生了新的聯系,看見的,聽見的,窺探的,預設的,更多的是意料之外的關聯。中年人在集團會議間隙,抽空欣賞河岸風景,估計也會看到游泳館里奮力劃浪的男孩,盤算著明天開始游個早泳;等待女兒芭蕾訓練的媽媽,閑坐無事胡亂翻書,瞥見河邊的老頭岸邊垂釣怡然自樂,想著下周讓老父親過來坐坐;小伙子們剛剛比完羽毛球,面紅耳次的說著雙打步伐,聽到三樓籃球館的傳來的拍球聲,要么下周再比個籃球?人們從不同的廣場進入,參加不同的活動,又在河邊交匯、碰撞,帶著新的心愿離開,不斷的醞釀出新的可能性。
	
	
 
河邊景觀
	
	
 
河邊景觀
	
職工文體中心是一個非常集約的綜合體。在極其緊張的用地條件下,每個功能單元,無論劇院、球場還是泳池,都是體積巨大,幾無騰挪余地;各種業態消防要求不一,后勤、貨運路線復雜。服務核是一個有效的模式,將貨運、機電、消防集中在三個核心筒,集成高效,同時保持了前場的靈活性。

	
	
 
	
 
	
 
饒是如此,仍然面對著復雜的平面和技術整合要求,大跨壘大跨,機電設備分區控制......這是一個巨大的智力挑戰,某種程度上更像是一個體力活,需要極大的耐心、時間和體力,各個巨大的體塊被不停的騰來換去,不斷的嘗試各種可能性,試圖找到一個更優的解決方案。在這個過程中,唯一保留的是龐大體塊之間的縫隙,界面永遠是透明和開放的,提供了交流的機會與可能,有如穿過巨石罅隙的光芒,彌足珍貴,饒有趣味。
	
	
 
草圖
	
	
 
公共空間分析圖
	
項目圖紙
	
	
 
總平面圖
	
	
 
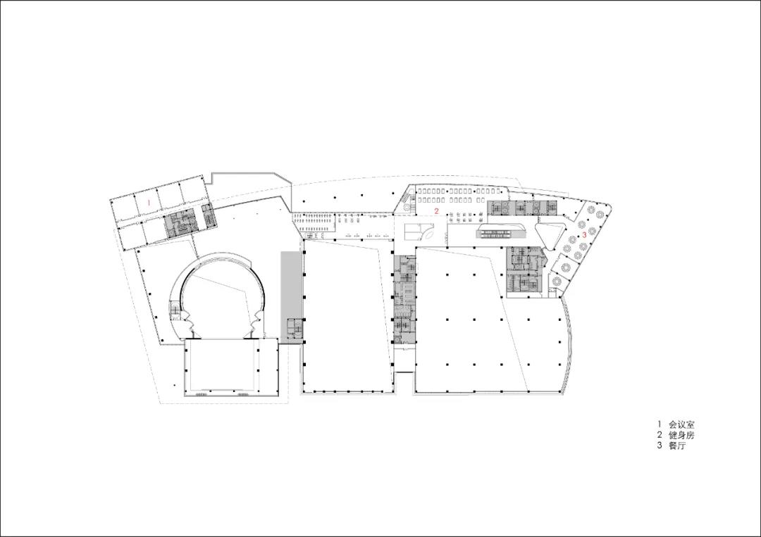
首層平面圖
	
	
 
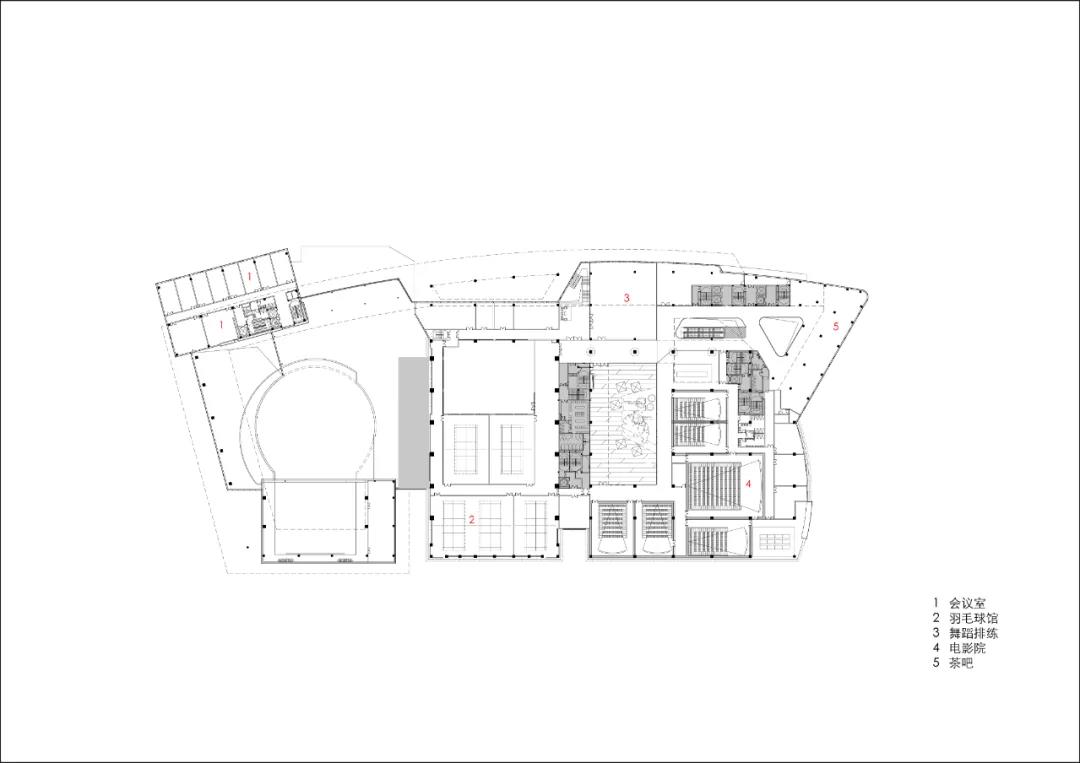
二層平面圖
	
	
 
三層平面圖
	
	
 
四層平面圖
	
	
 
五層平面圖
	
	
 
南立面圖
	
	
 
北立面圖
	
	
 
剖面圖
	
	
 
剖面圖
	
	
 
綠色肌理
	
	
 
綠色肌理
	
	
 
效果圖
	
	
 
項目信息
	
	
 
建筑師:上海實現建筑設計事務所
地址:長興中路與職中路交口,張家港市,中國
項目年份:2018
建筑面積:54999㎡
主創建筑師: 朱曉光,李洪
設計團隊: 鐘音,錢銓,梁璞,羅欽男,劉占兵,玉竹,王克文,趙樹聲
	
	
 
.END.
	
 
注:本文轉載自建日筑聞,版權歸原作者所有。
	
 
	
 
	
 
	
 
	
 
	
 
	
 
	
 
	
 
	
 
	
 
	
 
	
 
	
 
	
 
	
 
	
 
	
 
	
 
	
 
	
 
	
 
	
 
	
 
	
 
	
 

