迪卡幼兒園設計新作 | “萬物生長” - 天津和美嬰童國際幼兒園
作者:gooood谷德設計網 來源:gooood谷德設計網
	
	
	 
		 
			我們將以照片的形式將藏于心底的故事娓娓道來。
		 
			
		
	
	
	
	
	 
		施工前環境
	
	
	 
		此園所是基于現有的建筑物改造而成,由一個進出口貿易中心改造而來 —— 擁有清晰的規劃結構,簡單的建筑外觀,起初處于廢墟狀態。 經過漫長的實地勘察、測繪,等諸多信息,我們試圖呈現打破邊界,將自然的元素以一種非自然的形式表達,嘗試尋找關于此幼兒園的無限可能。
	 
		
	
	
	 
		
	
	
	
	
	 
		實施過程
	
	
	 
		和美嬰童國際幼兒園—中北園所坐落在天津市西青區中北鎮外環西路與芥園西道交口,輻射西青、南開、紅橋三區,交通便利,地理位置優越。園所建筑面積一萬五千平米,戶外活動場地九千平米,是天津市目前最大的國際幼兒園。
	 
		
	
	
	 
		
	
	
	▼概念分析
	
	 
		
	
	
	
	
	 
		項目概況
	
	
	 
		雖然整個幼兒園室外只使用了三種顏色 — 藍、黃、橙,但強烈的色彩對比和形狀沖突,讓幼兒園布局顯得設計概念感十足。此幼兒園室外的設計更是一場生活態度與藝術的邂逅,用無限想象力創造了一個無盡的空間。透過光影藝術表現對于美的無限幻想和無盡的創造之美。
	
	
	 
		▼幼兒園鳥瞰圖
	
	
	
	 
		▼鳥瞰局部,整個幼兒園室外只使用了藍、黃、橙三種顏色
	
	
	 
		▼兒童戶外游樂區,強烈的形狀沖突讓幼兒園布局顯得設計概念感十足 
	
	▼室外空間局部,一個承載著孩子們藝術愿景的空間
	
	 
		
	
	
	
	
	 
		建筑立面
	
	
	 
		培訓樓整體的規劃通過設計以大氣沉穩又極富層次感的線性設計打造,極為吸睛的標志性輪廓,借由這量體分割劃分出此空間的功能區域。讓步入空間的方式形成遞進、轉換層次的變化。
	
	
	 
		▼建筑立面
	
	
	
	 
		建筑側外觀
	
	
	 
		每一個窗子都代表了一個夢,此幼兒園的建筑外形,通過大大小小的、高高低低的窗子布局、讓一道道陽光透過窗子打進來,與大廳內象征太陽的造型設計遙相呼應,相得益彰,當孩子們站在樓頂俯瞰,建筑、人文、自然、都以不規則的多變形區域呈現,互相分離又緊密相依,這也是一所孩子們的精神棲所。
	 
		▼建筑側外觀,設置著一系列大大小小的、高高低低的窗子
	
	
	
	 
		 入口中庭空間
	
	
	 
		▼接待中庭區 
	
	
	
	 
		▼入口兒童游戲區
	
	
	
	 
		內外交融
	
	
	 
		透明性以及半透明感以模糊室內外邊界,使得幼兒園室內外空間交融對話。
	
	
	 
		▼透明的天窗模糊室內外邊界
	
	
	
	 
		▼室內走廊 
	
	
	
	
	 
		將幼兒園與自然美好的小事物集結在一起,簡單質樸的木質材料,寓意回歸自然本真的主題。回歸一切色彩的本源,本心出發,我們用無色之色,探尋幼兒園最原始的魅力,至純至性。
	
	
	 
		▼兒童運動游戲區,采用簡單質樸的木質材料 
	
	
	 
		▼兒童運動游戲區,設有階梯式休息空間 
	
	
	 
		▼大型游戲裝置,將幼兒園與自然美好的小事物集結在一起  
	
	
	 
		▼音樂教室
	
	
	 
		▼舞蹈教室
	
	
	 
		▼繪本體驗區 
	
	
	
	 
		摒棄以往幼兒園中常見的斑斕彩色,以白色為主基調,少許綠植作點綴,隱隱透著春天的氣息里,干凈而純粹的空間給予視野無限的放空與遐想。
	
	
	 
		▼廊道,以白色為主基調,少許綠植作點綴 
	
	
	 
		園區種植系統也可以稱為學校教給孩子們的一項課程。此區域也仍然是很好的裝飾物。一年中,種植區域將跟隨季節的推移、植物的選擇和生長周期的變化,發生巨大的改變。
	
	
	 
		▼園區種植系統 
	
	
	 
		▼設計生成 
	
	
	 
		▼室外空間布局圖
	
	
	 
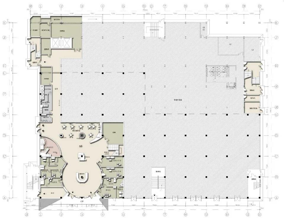
		▼一層空間布局圖
	
	
	
	 
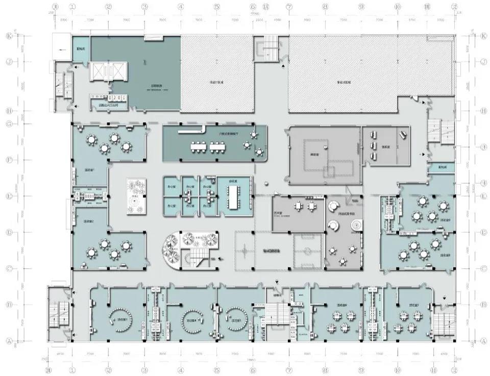
		▼二層空間布局圖
	
	
	
	 
		▼三層空間布局圖 
	
	
	
	 
		 
			建筑面積:8000㎡
		 
			 
			.END.
		 
			 
			注:本文轉載自gooood谷德設計網,版權歸原作者所有。
		 
			 
			
		
		
		
		
	
	
	
	
	
	
	
	
	
	
	
	
	
	
	
	
	
	
	
	
	
	
	
	
	
	
	
	
	
	
	
	
	
	
	
	
	
	
	
	
	
	
	
	
	
	
	
	
	
	
	
	
	
	
	
	
	
	
	
	
	
	
	
	
	
	
	
	
	
	
	
	
	
	
	
	
	
	
	
	

