黃城根小學昌平校區,取代傳統“教室+走廊”布局
作者:建日筑聞 來源:建日筑聞
	
	
	
	
	 
		黃城根小學昌平校區項目是一次將建筑理念與教育理想高度結合的設計實踐,也是北京市第一所被動房學校建筑。擁有百年歷史的黃城根小學與具備豐富的教育建筑設計經驗的和立建筑實踐事務所,一致希望突破公立學校在空間與形象上的瓶頸,建設一所“以學生為中心”的“二十一世紀的學校”。
	
	
	
	
	
	 
		演藝院子
	
	
	 
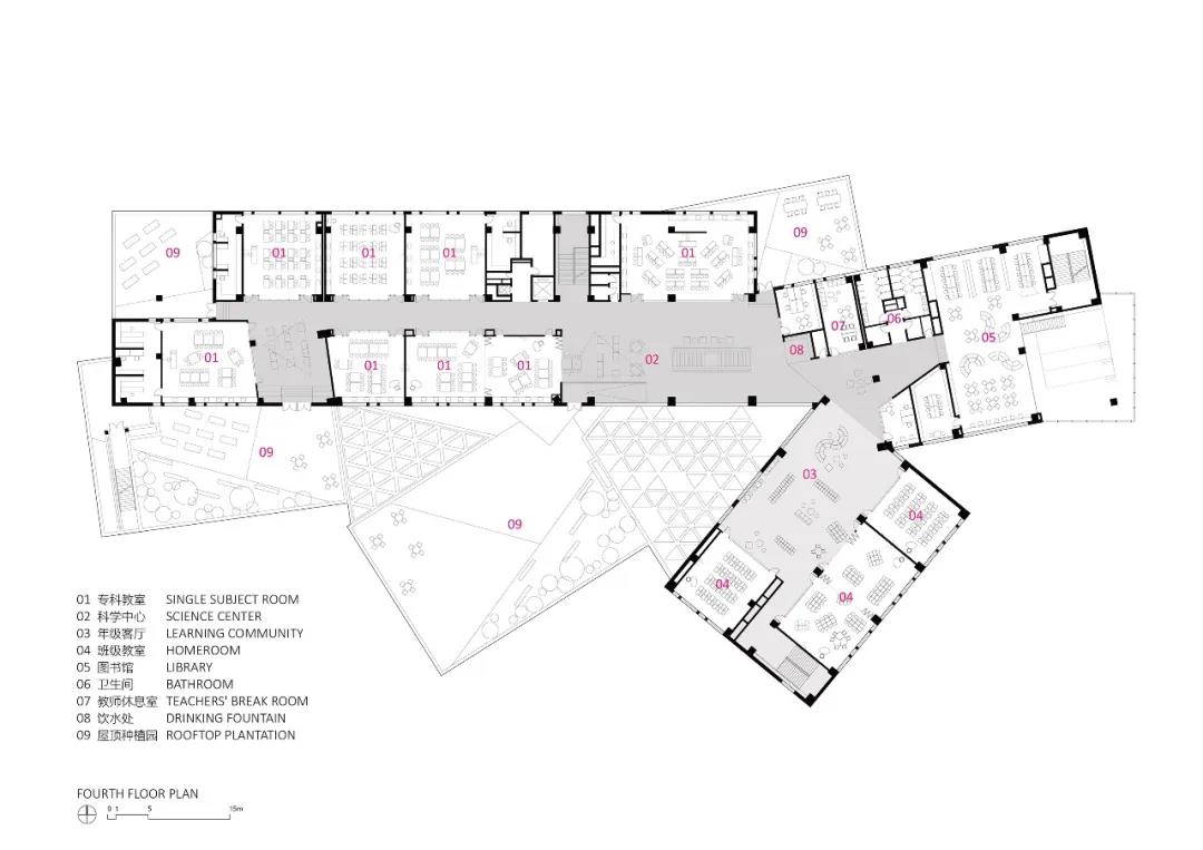
		學校的空間架構在多個層面上組成。首先,以“學習社區”取代傳統的“教室+走廊”布局,成為空間的基本單元。每個年級160名學生,恰好是一個孩子在一年時間內能夠認識的最多人數,因此學習社區又稱為“年級客廳”。年級客廳為孩子們提供了安全感和歸屬感,促進課堂的延伸和多學科的交叉。
	
	
	
	
	
	
	
	
	 
		年級客廳、專科教室、圖書館、多功能體育館、餐廳、報告廳形成了若干個“盒子”。為了提供充足的采光和通風,盒子在平面布局上扭轉,形成多個三角形院子。我們將整體空間格局命名為“盒子和院子的故事”。這個格局有效地縮小了建筑的尺度,極大地豐富了室內外的空間形態。
	
	
	
	 
		
		 
			連通教室&年級客廳 
		
	
	
	 
		連通教室&年級客廳 
	
	
	
	 
		年級客廳閱讀區
	
	
	
	 
		連通教室 
	
	
	
	 
		連通教室
	
	
	 
		最大的“院子”是位于建筑中央的三層通高的表演藝術中庭,功能等同小鎮中心;中庭與舞蹈戲劇教室以及“演藝院子”在室內外形成一系列的非正式演出和集會場所。“生活院子”則是室外下沉庭院,連接了餐廳、體育館和樂隊排練廳,是草地音樂會的理想空間。
	
	
	
	 
		表演藝術中庭
	
	
	
	 
		表演藝術中庭
	
	
	
	 
		表演藝術中庭
	
	
	 
		多個“盒子”銜接而界定的多邊形空間連接各類教室,形成了學生中心、創客空間、網絡咖啡、生活中心等主題學習場所,取代了傳統的走廊,為授課、演示、展陳、表演、項目學習等多種學習方式提供了多樣化的環境,實現了“處處可以學習”的教學理想。我們將這些公共空間稱為“智能中心”,這是著名教育家霍華德·加德納提出的“多元智能”理論的空間實踐。
	
	
	
	 
		以學生為中心的公共空間
	
	
	
	 
		以學生為中心的公共空間
	
	
	
	 
		創客空間
	
	
	
	
	 
		創客空間
	
	
	
	 
		創客空間
	
	
	
	 
		創客空間
	
	
	 
		室內外的主要飾面材料僅為環保涂料,色彩和形式幾乎成為空間之外唯一的設計手段。我們以黃城根校徽的藍色和******作為色板,以教室的矩形和公共空間的三角形作為形式語匯。墻面上深淺不一的色塊降低了盒子的硬度,三角形的鋪地和吊頂既保留了空間的通用性,又增加了靈動和愉悅感。
	
	
	
	 
		學生中心
	
	
	
	 
		學生中心
	
	
	
	 
		學生中心
	
	
	 
		同樣的形式語匯也運用到戶外景觀和標識設計中。校園內采用天然材料構成的豐富的地面肌理,靈感草坪、雨水花園、室外畫廊等場所為孩子們提供了戶外課堂和游戲空間。
	
	
	
	 
		年級客廳
	
	
	
	 
		3F公區 
	
	
	
	 
		B1公區
	
	
	 
		在整個設計過程中,設計團隊始終將空間理念植根于教育理念,將空間格局優先于人為的造型,從而創造性地營造出在通透性、開放度、互動性和空間尺度等方面高度多元化的學習場所,將一個建設資金有限、規范約束嚴格的公立學校建設成為真正意義上的“以學生為中心”的“二十一世紀的學校”。
	
	
	
	
	
	
	
	
	
	 
		項目圖紙
	
	
	
	 
		首層平面圖
	
	
	
	 
		二層平面圖
	
	
	
	 
		三層平面圖
	
	
	
	 
		四層平面圖
	
	
	
	 
		剖面圖
	
	
	
	 
		剖面圖
	
	
	
	 
		項目信息
	
	
	 
		建筑師:和立實踐
	 
		地址:翡翠公園, 北七家鎮, 昌平區, 北京, 中國
	 
		項目年份:2019
	 
		建筑面積:29098.0 平方米
	 
		主創建筑師:馬笑漪
	 
		設計團隊:孟超翊、陳鵬飛、夏妍、周雪嬌、明楊、王佳佳、趙越、朱仁政、吳越、梁杰群、包磊
	
	
.END.
	
注:本文轉載自建日筑聞,版權歸原作者所有。
	
	
	
	
	
	
	

