安徽省林散之書畫院,展示書法美學和建筑形式
作者:gooood谷德設計網 來源:gooood谷德設計網
	
 
	
 
南側鳥瞰
	
 
	
林散之,生于江蘇省南京市江浦縣,祖籍安徽省和縣烏江鎮。他“詩書畫”三絕,尤其草書飲譽世界,被稱為當代“草圣”。在林散之的祖籍地安徽和縣烏江鎮,為紀念他的藝術成就而設立了此次的安徽省林散之書畫院項目,包含了新建的書畫院和易地復建的九牧堂古建筑。
	
▼從西北側林散之廣場鳥瞰書畫院
 
	
	
千年文化傳承中的中國書法,是中國美學史的重要部分。在中國,書法和建筑在美學上是完全相通的。這次的設計,希望通過建筑語言來表達出林散之書法的一絲風骨和傳統文化的一些傳承。
	
總體布局以中國傳統書畫為原型,提取詩、書、畫、印四個主要構成元素,將公園與廣場視作“畫”,以林散之書畫院作為“詩”,選取了其名字中的“之”為載體,用“書法”的形式表現出來,而方正的九牧堂又恰好可擬作“印”,同其他三個元素構成完整的一幅古典長卷。
	
 
	
 
	
 
▼建筑與林散之公園
 
	
▼南側鳥瞰
 
	
▼東側鳥瞰
 
	
	
▼主館東側鳥瞰,在建筑形態上提煉了“之”游動的形態,結合坡屋頂的特征
 
	
	
 
在建筑形態上,提煉了“之”游動的形態,以及林散之書法瘦勁飄逸的特點,結合烏江老街延綿的粉墻黛瓦坡屋頂的特征,生成了黑白起伏的立面形態。
	
▼東側橋頭看主入口,書畫院具有黑白起伏的立面形態
	
	
▼主館東立面
 
	
▼主館東南角
	
▼主館入口
	
	
 
在空間上注重室內外的交融和內部空間的流動,也引入了傳統建筑中“廊”這一經典元素。在細部構圖中借用了“飛白”的墨法,不同的檐廊的邊界做了不同的造型設計,或是雙柱,或是四柱,又有寬窄不一的片墻組合。不同形態的柱廊完形了建筑體量,更使得建筑形態有了豐富的虛實關系和光影變幻的立面效果。
	
▼主館南立面,不同的檐廊的邊界做了不同的造型設計
	
▼南側庭院
	
▼大廳南入口
	
	
▼主館西立面,檐廊的邊界采用四柱的造型
	
▼主館西南端柱廊,使得建筑形態有了豐富的虛實關系和光影變幻的立面效果
	
	
 
書畫院采用了白墻黑瓦的古樸材質,避免額外裝飾,僅用簡練的幾何體量創造空間,與傳統徽派的九牧堂既對比又呼應。建成之后的觀感也基本符合我們的預期,低緩的輪廓,交錯的形體,多變的空間效果,加上景觀綠植的襯托,曲直錯落,光影變幻,黑白起伏,遠觀就像一幅山水畫卷。
	
▼主展廳南望
	
▼主館北庭院夜景
	
▼東立面夜景
	
	
 
項目圖紙
	
▼總平面圖
	
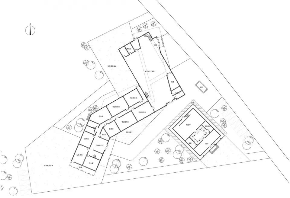
▼一層平面圖
	
	
 
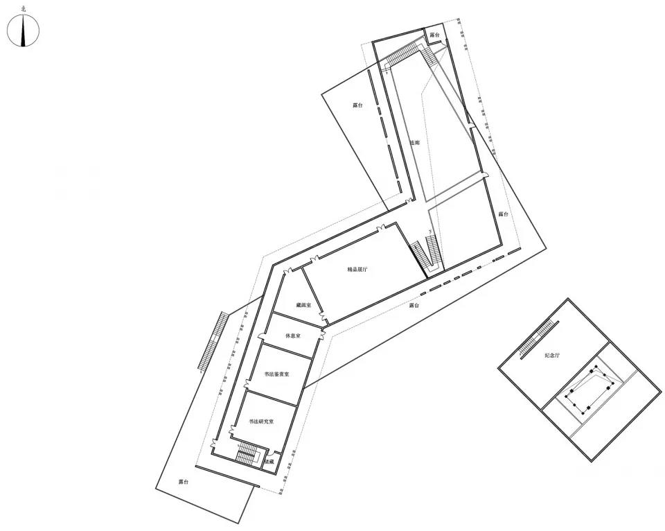
▼二層平面圖
	
 
	
	
 
▼北立面圖
	
▼南立面圖
	
▼東立面圖
	
	
 
▼西立面圖
 
	
	
	▼剖面圖
 
	
 
	
	
	
	
	
 
.END.
	
 
注:本文轉載自gooood谷德設計網,版權歸原作者所有。
	
 
	
 
	
 
	
 
	
 
	
 
	
 
	
 
	
 
	
 
	
 
	
 
	
 
	
 
	
 
	
 
	
 
	
 
	
 
	
 
	
 

