深圳寶安文化綜合體
作者:建日筑聞 來源:建日筑聞
	
 
青少年宮與文化藝術中心
	
 
青少年宮與文化藝術中心
寶安文化綜合體是深圳市全新的公共文化園區。它俯瞰著深圳的前海灣和南海,擁有得天獨厚的海濱景觀,同時也毗鄰密集的城市商業區。該項目占地達11萬平方米,包括圖書館、文化藝術中心和表演藝術中心。圖書館、青少年宮和文化藝術中心是第一期工程的一部分,現已竣工。而表演藝術中心則正在建設中,將于2020年完工。
	
 
總平面圖
	
 
草圖示意
整個文化園區的規劃將主體的三棟建筑配置在同一條軸線上,這條軸線從市中心一直延伸到海岸線。一系列的公共廣場交織在建筑之間,將整個園區凝聚為一個整體。廣場上的這些公共空間為市民們提供了親水的環境,同時也連接了城市與海濱。
	
 
青少年宮與文化藝術中心
	
 
圖書館
	
 
表演藝術中心(效果圖)
建筑立面的設計靈感來源于中國南方的傳統藝術:木雕和象牙雕刻。穿孔立面系統的應用保證了三棟建筑在視覺上的整體性。同時每個立面的細節處理又各不相同,使得三棟建筑又各具特色。
	
 
圖書館
	
 
圖書館
	
 
圖書館
	
 
圖書館
離廣場水體最近的是圖書館,這是一棟面積達31853平方米的建筑,里面有閱讀區、書庫、管理設施、博物館和展覽廳。一個20米高的豎向中庭將公共廣場景觀延伸至建筑內部,并在建筑中心提供了一個公共聚集的場所。
	
 
圖書館
	
 
圖書館
	
 
圖書館
	
 
圖書館
	
 
圖書館
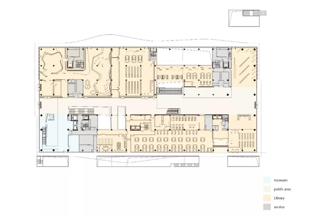
圖書館的一側是占地達11316平方米的青年少宮和文化藝術中心。該建筑被設計成兩個獨立的結構,兩個分隔的體量圍繞著中心的室外庭院和圓形劇場。青少年宮中設有各類的科技展廳和兒童藝術展廳;文化藝術中心則設有表演空間,藝術工作室和畫廊。中央庭院和圓形劇場連接著兩個側翼,并為它們引入自然采光和通風,并作為社交的核心空間。
	
 
青少年宮與文化藝術中心
	
 
青少年宮與文化藝術中心
	
 
青少年宮與文化藝術中心
	
 
青少年宮與文化藝術中心
	
 
青少年宮與文化藝術中心
	
 
青少年宮與文化藝術中心
	
 
青少年宮與文化藝術中心
目前正在建設中的表演藝術中心面積達20660平方米,位于園區的南側邊界,緊鄰海灣。建筑的底層設有零售商店和餐館,可以吸引大量人流,并將建筑與城市連接起來。一個巨大的樓梯延伸至二層,這里是一個1500座的表演廳。
	
 
表演藝術中心(效果圖)
	
 
表演藝術中心(效果圖)
	
 
表演藝術中心(效果圖)
該中心還包括一個較小的600個座位的場館,以及一個垂直傾斜15度的結構,為公眾提供了通向大型排練廳的公共通道,同時可以俯瞰海灣和更遠的視野。
	
表演藝術中心(效果圖)
	 
表演藝術中心(效果圖)
寶安區是深圳正在大力發展的海濱城市副中心。寶安文化綜合體的建筑體現了新的愿景和活力。擁有豐富功能的建筑和開放包容的公共廣場構成了一個整體,這里將為深圳提供新的文化內核,并激活整個片區。
	  
表演藝術中心(效果圖)
項目圖紙
	 
	項目區位
	 
		 
	
圖書館首層平面圖
	 
圖書館二層平面圖
	 
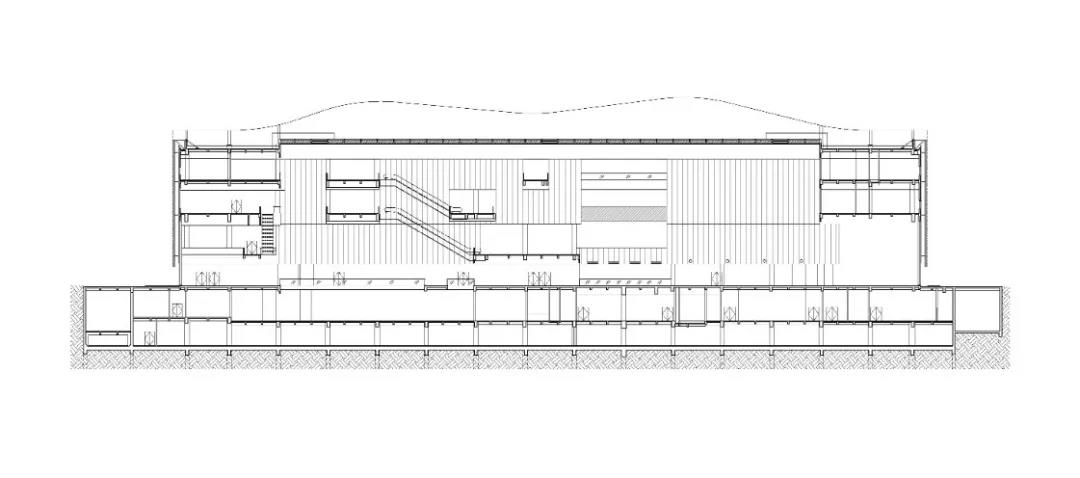
圖書館剖面圖
	
圖書館立面圖
	
青少年宮與文化藝術中心首層平面圖
	
青少年宮與文化藝術中心二層平面圖
	
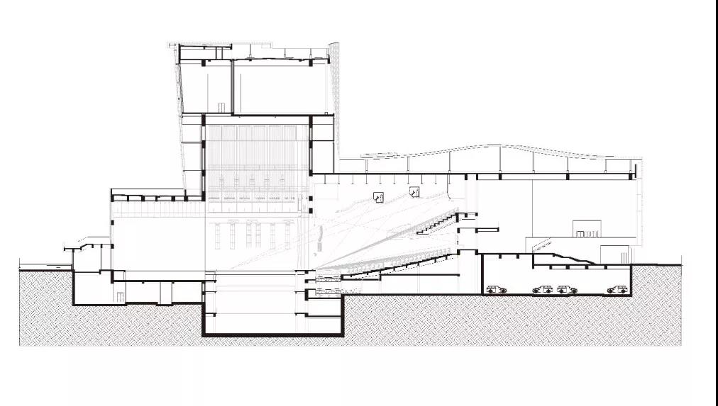
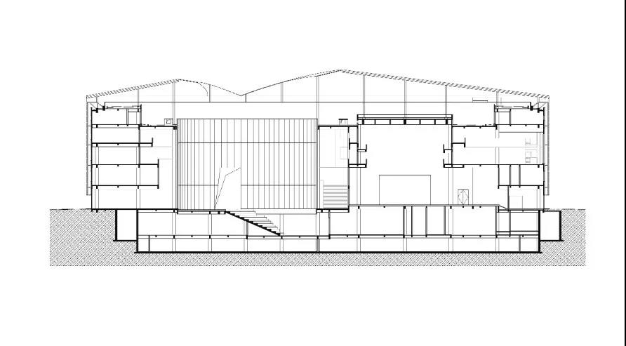
青少年宮與文化藝術中心剖面圖
	 
表演藝術中心首層平面圖
	
表演藝術中心二層平面圖
	
表演藝術中心剖面圖
項目信息
建筑師:嚴迅奇建筑師事務所
地址:寶安區,深圳市,中國
設計團隊:Rocco Yim , Derrick Tsang, William Tam, Herbert Hung ,Martin Fung, Lucia Cheung, Stephen Chan, Simon Ho, Calvin Chung, Ivy Yung, Zachary Wong , Zhu Yi, Seah lee, Jans Liang, Leo Zhou, Chen Lan, Amber Wang, Yang Shi Pei
建筑面積:110000.0 ㎡
項目年份:2020
.END.
注:本文轉載自建日筑聞,版權歸原作者所有。

