普利茲克獎得主包贊巴克中國首作落成 - 上音歌劇院
作者:gooood谷德設計網 來源:gooood谷德設計網
上音歌劇院位于汾陽路和淮海路的交匯處,以寬敞的公共入口敞開于原法租界的重要道路。不同于大型的單體建筑,這座歌劇院由一系列場館組成,與周圍建筑的步調保持了高度的一致。每個場館的色彩和肌理均受到了砌磚圖案的啟發。
▼鳥瞰圖
上音歌劇院隸屬于上海音樂學院,它將為學校的學生和教師提供實際的練習場地。作為最先進的公共音樂廳,上音歌劇院配置了最高標準的聲學設備以及國際標準的舞臺設備。
▼城市肌理
▼歌劇院由一系列場館組成
▼主入口立面
▼夜間視角
▼演員入口
▼建筑立面材料為UHPC外墻掛板和GRC掛板
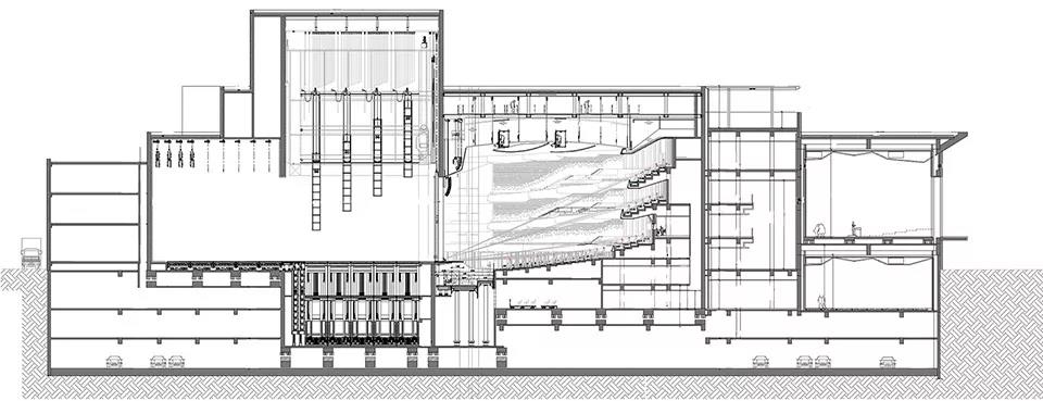
歌劇院本身就可以被視為一種樂器。其設計借鑒了古典歌劇院的馬蹄形(U型)空間,能夠有效地滿足聲學要求。多種混響時間能夠滿足從古典到浪漫的不同表演風格。同時,新式的設計使空間的每個角落都享有最佳視野。U型的平面為藝術家、樂團和聽眾創造了親密的關系。整個主廳能夠同時容納1200人就座。
▼主觀眾廳的設計借鑒了古典歌劇院的馬蹄形空間
▼天花視角
▼觀眾席
▼座位細部
歌劇院建筑為排練和藝術家的住宿提供了所有必要的設備,包括四間排練室,分別服務于管弦樂隊、傳統中國音樂、芭蕾舞團和合唱團。大廳空間被設計為室內外空間的緩沖區域,是一條通往音樂世界的過渡通道。大廳上方是兩條交疊的走廊,提供了通往觀眾廳露臺的路徑。大廳頂部的彩色體塊為空間賦予了獨特的韻律,仿佛在為空間中的音樂節奏做準備。
▼大廳
▼頂部的彩色體塊為空間賦予了獨特的韻律
▼表演廳
▼表演場景
▼天花板細部
▼樓梯
▼垂直交通空間
▼大廳樓梯
▼休息區
▼交流報告廳
▼墻面細部
作為教學設施和公共音樂表演場所,上音歌劇院被嵌入由音樂學院的其他建筑構成的城市體塊中。其靈活的功能與其他所有的教學設施形成了連接。在沒有表演的時候,學生們可以直接進入主要的排練室;而在舉辦大型音樂會時,整個建筑都為他們預留出來。
▼屋頂花園
▼臨街立面
▼立面色彩和肌理均受到了砌磚圖案的啟發
▼夜間的街道
▼嵌入城市體塊
項目圖紙
▼設計手繪
▼平面圖
▼剖面圖
業主:上海音樂學院
建筑方案設計單位:2Portzamparc
主創:克里斯蒂安·德·包贊巴克
合作設計單位:同濟大學建筑設計研究院(集團)有限公司
聲學設計:法國徐氏聲學
舞臺設計:英國劇場項目咨詢公司TPC
.END.
注:本文轉載自gooood谷德設計網,版權歸原作者所有。

