上海唐鎮新市鎮配套中學
作者:建日筑聞 來源:建日筑聞
唐城初中建筑面積約22763㎡,為32班中學。其中地上五層,地下一層,包括教學及輔助用房、辦公用房、生活用房等。項目設計采用圍合式建筑形態結合建筑內部多樣的共享空間,突破傳統學校的布局模式,是我們在現行規范限制下對學校設計的創新嘗試。
隨著現代教育理念的不斷變革與深化,多元化、多層次的教育形式已逐漸取代傳統單一化、單向性的教育形式,這對新時代的校園空間也提出了新的要求,其空間組織因此需要相應的重構。
我們本次設計從青少年的日常行為模式和生理、心理特點出發,力求打破傳統的課間空間,通過將零碎、局促的課間活動場所重組為立體、開敞的公共交流空間,創造出多層次開放的校園環境,為學校師生提供更多駐足、交流、思考的空間。
軸測分析圖
教學辦公綜合樓南北側教學組團與東西側辦公組團圍合形成的中央內庭院,是整個建筑中最活躍也是最重要的景觀節點,其通過教學樓西側平臺下的灰空間與運動場相連,更是在建筑一層形成開敞連續的室外活動場所。
庭院幾何式的景觀劃分是整體建筑形態的有機延續,引導學生在此開展豐富多彩的活動。庭院中的雨水花園、海綿城市展示等景觀設施則給學生提供了近距離親近自然的機會,精心搭配的植物品種也會隨著四季變化呈現出不同的校園景色。
我們在教學樓每層的不同部位設置了半室外的多功能共享空間,并通過變化的路徑將其串聯,實現了不同室外空間的滲透,打破了教學樓層與層之間的界限,形成了貫穿建筑的立體環繞路徑。
從下沉式圖書館到屋頂花園,靜態的空間不斷產生變化,也不斷引導使用者產生新的思索。空間場景的功能與學生行為的有機互動、相互滲透,鼓勵學生思維的發散,也成為學校特色教育的起點。
純粹的橫向線條是本項目建筑立面的主要組成,結合空間形態的線性穿插塑造出極具特色的純凈視覺效果。各單體之間通過平臺聯系形成整體,讓立面體塊呈現出光影秩序感的同時也充滿豐富的變化。
純粹的橫向線條是本項目建筑立面的主要組成,結合空間形態的線性穿插塑造出極具特色的純凈視覺效果。各單體之間通過平臺聯系形成整體,讓立面體塊呈現出光影秩序感的同時也充滿豐富的變化。
項目圖紙
總平面圖
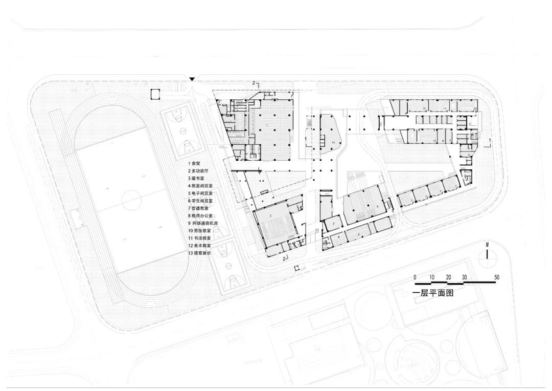
一層平面圖
負一層平面圖
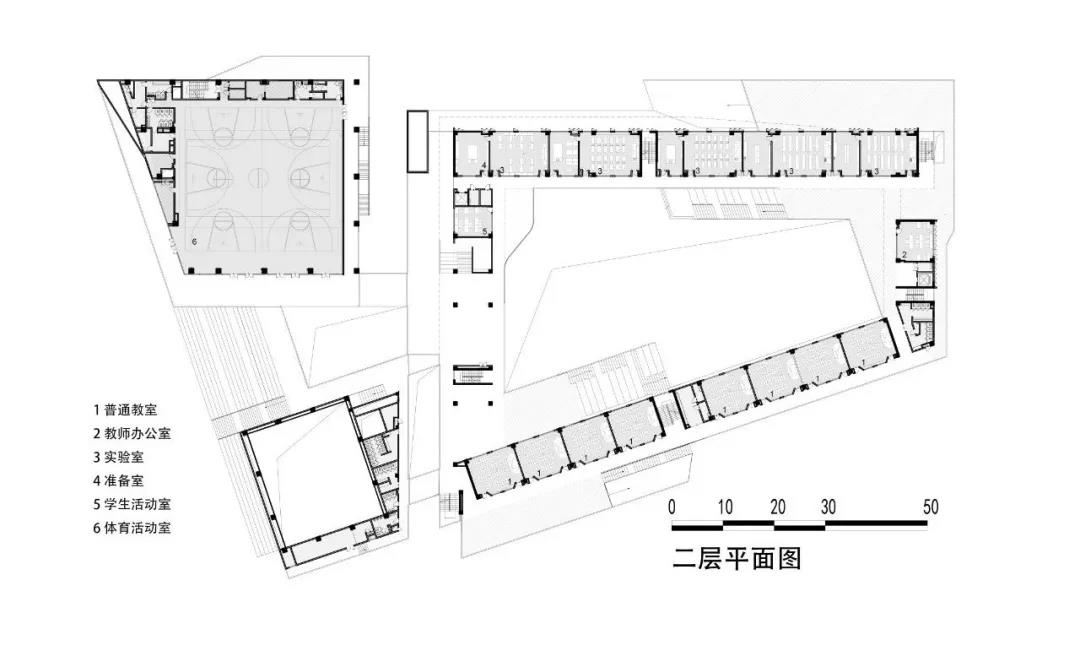
二層平面圖
三層平面圖
四層平面圖
五層平面圖
屋頂層平面圖
立面圖
剖面圖
剖******
剖******
墻身分析
墻身分析
墻身大樣圖
設計理念
設計理念
項目信息
建筑師:華建集團上海建筑設計研究院
地址:石門二路268號,靜安區,上海,中國
建筑面積:22763.0 ㎡
項目年份:2019
攝影師:ACF域圖視覺
主創建筑師:蘇昶、譚春暉、左雷
項目總監:袁建平
設計團隊:華建集團上海建筑設計研究院有限公司
.END.
注:本文轉載自建日筑聞,版權歸原作者所有。

