跨學科對話 - 北京理工大學良鄉校區文化體育中心
作者:gooood谷德設計網 來源:gooood谷德設計網
新北京理工大學體育中心位于北京衛星城良鄉,連同新的體育館,二者一起構筑了新校區的入口。體育中心為學校增添了約15700㎡的運動空間,包括3000個座位的籃球場、10條泳道的游泳館、健身房、武術空間以及拳擊室、跆拳道、乒乓球活動空間等。
▼項目概覽
▼建筑外觀
▼建筑遠景
▼建筑外觀
▼南側沿街立面
▼西立面圖
北京理工大學是一所長期專注于軍事科學的大學,在這個項目中,我們從萊奧納多·達·芬奇的飛行器以及軍事科學中廣泛應用的拋物線中汲取靈感,延續了達·芬奇關于科學、建筑和藝術之間的跨學科對話:在研究了相關學科的藝術和科學史之后,創造了三個漂浮在空中的相關聯的表面作為建筑物的屋頂,空間網架結構支撐起這些曲面構成的拓撲關聯體的屋面,直立鎖邊的金屬屋面系統和幕墻體系覆蓋整個屋面和立面。金屬大量使用于屋頂、天花板和立面上使建筑具有統一的金屬色調,呼應了軍事領域中的工業美學。
▼設計概念分析圖
▼北立面圖
▼東立面圖
▼南立面細部
▼建筑主入口
▼直立鎖邊的金屬屋面系統和幕墻體系覆蓋整個屋面和立面
▼從萊奧納多·達·芬奇的飛行器以及軍事科學中廣泛應用的拋物線中汲取靈感
▼金屬鋁大量使用于屋頂、天花板和立面上使建筑具有統一的金屬色調,呼應了軍事領域中的工業美學
▼屋頂及立面細部
▼屋頂及天窗
▼屋頂細部
正如達·芬奇所倡導的“文藝復興人”一樣,個體應該在身體和心智方面都表現出強大的優勢。北京理工大學體育中心旨在建立一個多維的開放的校園,同時培養學生的心智與身體,鼓勵學生的在校際之間開展對話。我們在城市、建筑兩個維度上希望能夠傳達出對話空間可能,主要是通過平面和剖面兩個層面上創造出空間的滲透性。
▼建筑剖面******圖
▼大廳
▼大廳一側可望向游泳館
▼通過平面和剖面兩個層面上創造出空間的滲透性
在城市維度上:籃球館位于建筑的東南角,將體育館與校園主要交通流線和街道生活融為一體;而西部的游泳池則與校園中心廣場相連。在建筑尺度上:由于籃球館的座位被抬高了一層,下方的空間在首層都是相通的,因而室內與室外也形成了很好的聯系——從街道到校園,在首層建立了一個新的地平線和視覺滲透;一條內置的入口長廊置于游泳池和籃球館之間,其南北兩個出口正好連接了此前分割的南北校區;在三樓的籃球座位頂部,有一個大窗戶,可以俯瞰入口長廊、大廳對面的游泳池以及游泳池一側的校園;在二樓、三樓和四樓,游泳池后面的運動室——跆拳道、乒乓球和測試中心——都有不同的路徑進入游泳池,并且共享來自游泳上方的天窗。由于擁有透明的空間界面,垂直的空間穿透是通過剖面上相互嵌套的功能得以實現。
▼室內流線分析圖
▼空間功能分析圖
▼籃球館
▼活動場地及看臺
▼游泳館
▼舞蹈教室
▼細部
▼走廊
項目圖紙
▼屋頂弧線分析圖
▼屋頂結構分析圖
▼水晶幾何體的表面反射分析圖
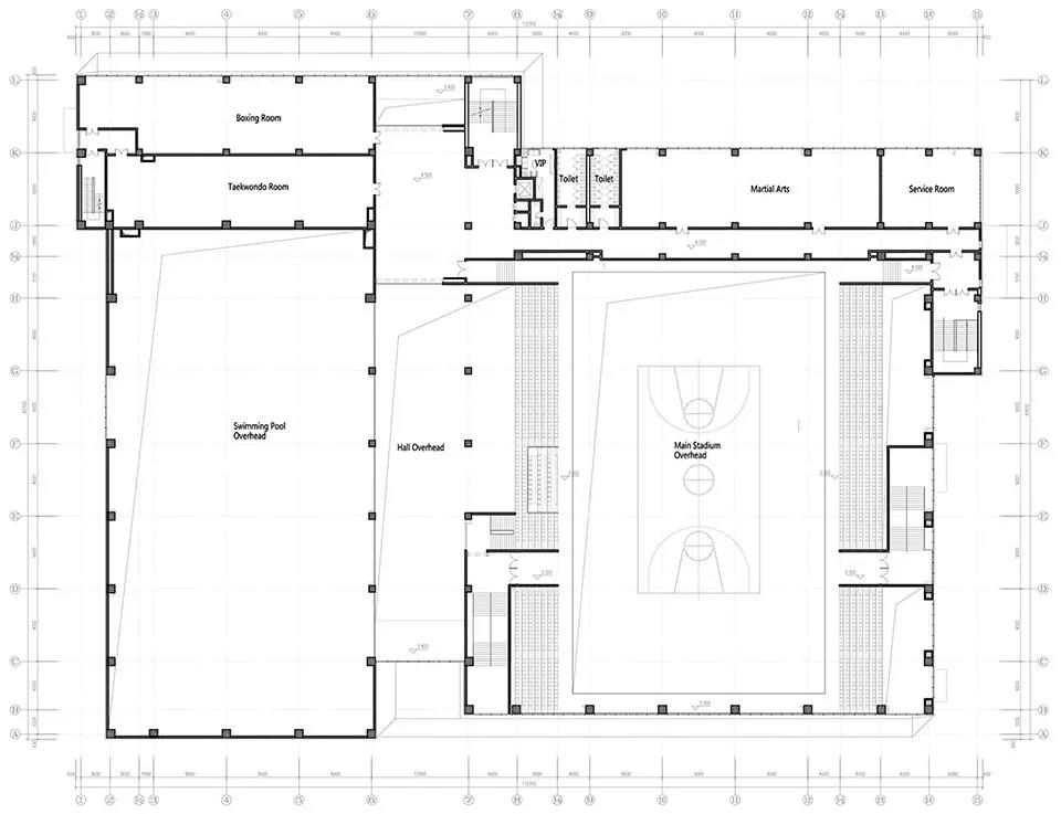
▼一層平面圖
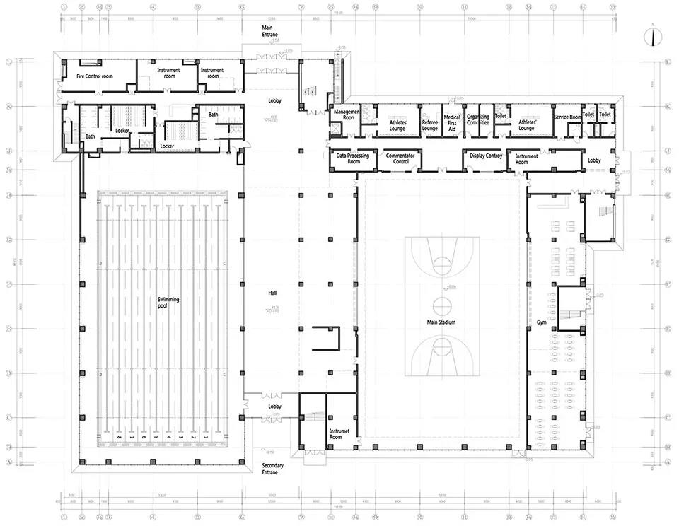
▼二層平面圖
▼剖面圖
業主:北京理工大學
位置:北京, 中國
類別:體育館
主創設計師:張繼元,卜驍駿
建筑設計團隊:李振偉, 覃凱, 蔣萍,黃瑋,劉同偉, 杜德虎,張家赫,顏然,鄭來榮,梅家銘,宋利東,趙瀟瀟,張晶石,韋必達
面積:15692平方米
工程竣工: 2019
.END.
注:本文轉載自gooood谷德設計網,版權歸原作者所有。

