新作 | 復旦大學新江灣第二附屬學校
作者:gooood谷德設計網 來源:gooood谷德設計網
復旦大學新江灣第二附屬學校項目位于上海新江灣北部,是一所72班九年制一貫制中小學校。東臨城市主干道淞滬路,北為綏芬河路,西為恒學路,南為復旦大學新江灣校區。用地38393㎡,總建筑面積49800㎡,按預制裝配式混凝土結構體系、綠色建筑二星建造。設計的難點在于:如何妥善解決較小的用地環境以及較低造價條件與高品質教育設施需求之間的矛盾,并合理布置具有不同功能的建筑體量;如何突破中小學校行列式布局的刻板印象,創造更多充滿活力的開放空間。
▼學校鳥瞰
集約化
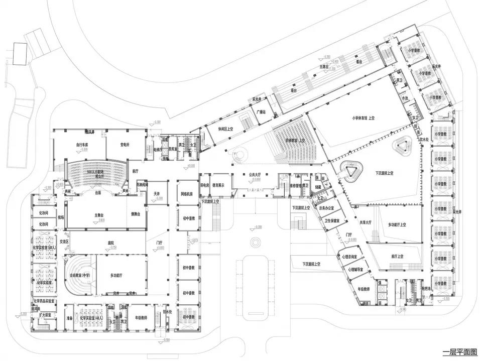
校區按東、西向分為運動區和教學區,以減少東側淞滬路的噪聲影響,并易接駁西側城市道路;按南、北向把建筑分為小學部、中學部,兩者通過中區的綜合部(辦公和公共實驗室)相連接。
▼形態生成圖解
學校對教育設施的數量和品質有較高要求,如設置500座劇場、300座報告廳、多功能教室、展廳、體育館、400米標準運動場等。為節約用地,與慣常手法如“軸線對稱、行列串聯”不同,項目因地制宜,采用“整體連貫、空間圍合”的“弓”形體量,用集約化手法使布局更加緊湊、各種設施密切聯系,形體富有節律,一氣呵成。
▼入口鳥瞰,建筑采用弓形體量,布局緊湊
圍合與多中心
連貫的“弓”形體量圍合3處空間:U形主入口區、北部廳院區和南部廳院區。在形態上,內院、中廳等公共空間與大空間功能用房相結合,形成各區域的的核心空間;在功能上,集中式、中廳式的布局,避免受天氣影響,高效利用教學設施,符合走班制模式及多樣化教育理念;在空間效果上,中庭、環廊、臺階等連接了不同高差的公共活動場所,形成了多中心、上下靈動的空間形態。
▼主入口
▼入口立面設有點陣圖案
▼U形入口空間
▼東立面面向體育場
▼連廊下設置面向體育場的看臺
▼室外看臺
空間與起伏
為提高用地效率,把建筑分為下部、上部空間,在豎向上創建多層次的“地面”場所。
▼建筑功能圖解
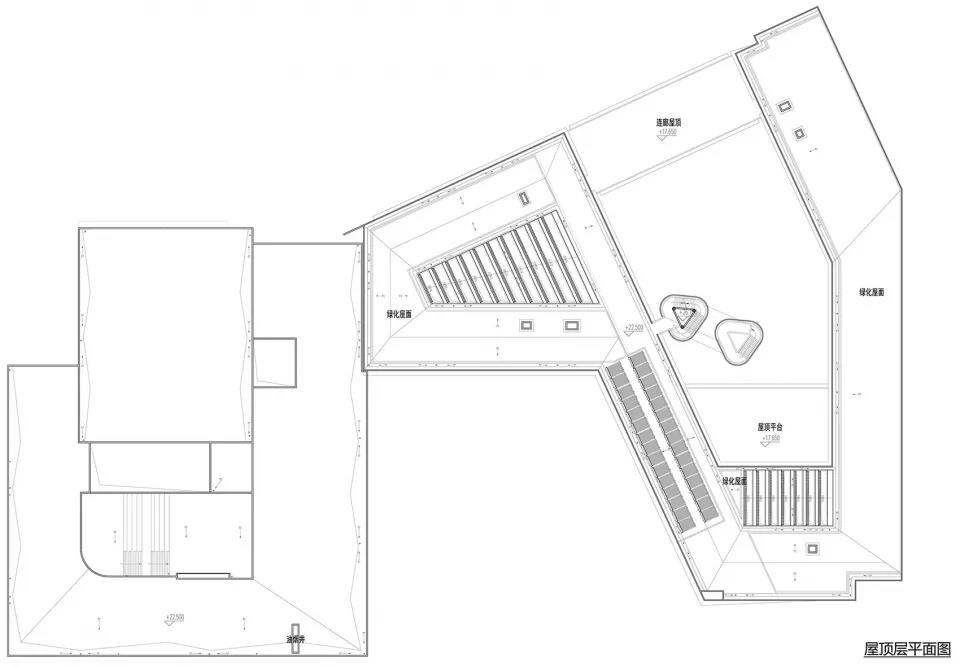
下部包含較大體量的體育館、報告廳、餐廳等,沉入地下弱化建筑體量,為爭取自然通風、疏散采光要求,嵌入了3處下沉庭院。上部則布置對日照需求較高的教室、實驗室和辦公室,并充分利用屋面場地。
▼圍合的下沉庭院
▼南側疊落的下沉庭院
這些新的“地面” 形成了流動型共享空間如采光中廳;高大型空間如體育館、閱覽室、多功能廳;圍合型的庭院空間;退臺型各層屋頂花園;觀演型空間如階梯教室、劇場、室外看臺。營造了多維度、自由的、活潑的校園環境。
▼主入口共享大廳
▼共享大廳一側的階梯空間
▼共享大廳采光環廊
▼仰望共享大廳中庭空間
▼旋轉樓梯
▼共享大廳邊的室內活動空間
▼南側小學部采光中廳
▼北側中學部采光中廳
▼閱覽室
▼合班教室
▼劇場
結構與立面
結構為預制裝配式混凝土體系(PC),重復的構件便于裝配化的實施。立面結合結構做法有3種形式:2種主立面設置水平遮陽構件,保證采光均勻性;東立面為鋸齒狀,兼顧遮陽與采光。立面材料為低價的仿石涂料,局部點綴鋁板幕墻,以“灰、紅”色調搭配。整體效果律動、明快且細膩,反映裝配式特點但不呆板,符合中小學建筑的特點。這是學校項目在預制裝配式混凝土結構體系發展方向的嘗試。
▼預制裝配式墻身主立面水平遮陽構件
▼預制裝配式墻身立面水平遮陽構件
▼兼顧遮陽與采光的鋸齒形東立面
結語
建筑師通過集約的總體布局來適應狹小的用地環境,采用更個性化的建筑空間以容納更豐富的教育設施,并創造更立體的、充滿活力的室內外環境來提升校園品質。在這種高密度的城市建設的條件下,復旦大學新江灣第二附屬學校是對基礎教育空間設計的一種發展和探索。
▼夜景
▼總平面圖
▼一層平面圖
▼屋頂平面圖
▼立面圖
▼剖面圖
項目名稱:復旦大學新江灣第二附屬學校
項目設計&完成年份:2017&2019
主創及設計團隊:王文勝、王輝、鐘強、程熠
項目地址:上海市楊浦區新江灣城
建筑面積:49800平方米
.END.
注:本文轉載自gooood谷德設計網,版權歸原作者所有。

