延安大學新校區規劃設計
作者:建日筑聞 來源:建日筑聞
延安大學全景
在延安這座革命老區,有著深厚歷史文化積淀的大學設計新校區是一個充滿挑戰的命題。既要連接過去又要通向未來,既要有“地域特色”又要體現”時代精神”,既要讓厚重的歷史感和榮耀感煥發出新的時代魅力,又要體現不忘初心的人文氣息,是設計者必須深入思考的問題。
延安大學新校區
延安大學全景
我們希望和以往的新校園設計范式產生區別,回歸初心,更深刻地挖掘這片土地的內涵,探尋出一條體現延安精神內涵及地域文化的大學之道。
圖書館、博物館、校史館總平面圖
圖書館近景
圖書館主入口
從圖書館拱廊看博物館
延安地域建筑特色鮮明,層層退臺的窯洞隨處可見。延安大學以長期以來最具標志性和延續性的建筑符號——退臺窯洞,作為新校區建筑設計源泉,以此來還原和連接過去,強化地域元素,傳承歷史文脈。
校史館拱廊望圖書館
校前區主要建筑體量均采用退臺變化,作為延大新校區的標志性特色元素。窯洞符號作為延安最具特色的建筑元素,貫穿于整個校園的設計之中。但不是簡單的模仿和照搬,而是跟校園文化和實際功能需求相結合,運用窯洞符號塑造拱廊空間,既作為建筑基座,增強厚重感。
圖書館北側中庭
圖書館南側中庭
圖書館南側中庭
圖書館三層中庭實景
室內
同時拱廊形成舒適的半室外空間,夏天遮陽、冬天擋雪,有效應對延安夏天暴曬、冬天氣候特點,為師生提供絕佳的交流場所,也作為聯系不同功能區的步行廊道。
連續的拱廊呈現出極其豐富的空間表情及光影變化
博物館
校前區中軸臺階及文匯講堂
延安大學新校區
項目圖紙
圖書館、博物館、校史館一層平面圖
圖書館、博物館、校史館二層平面圖
圖書館、博物館、校史館三層平面圖
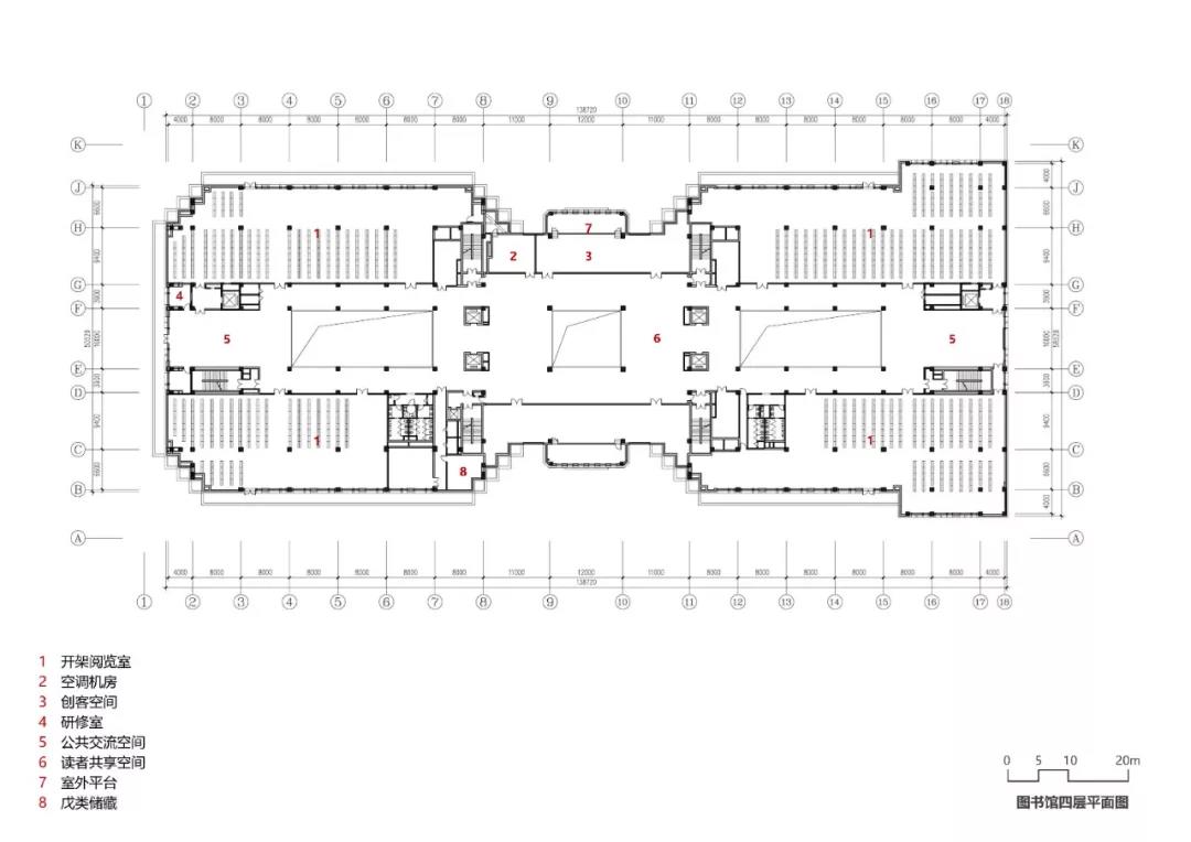
圖書館四層平面圖
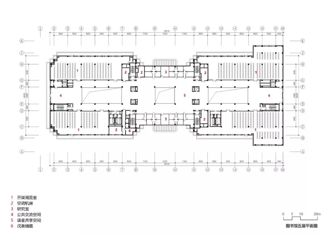
圖書館五層平面圖
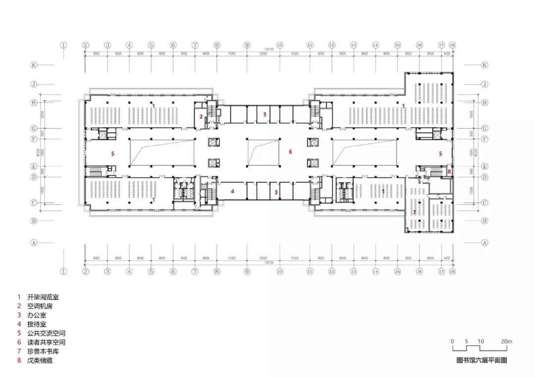
圖書館六層平面圖
圖書館東立面圖
圖書館南立面圖
博物館東立面圖
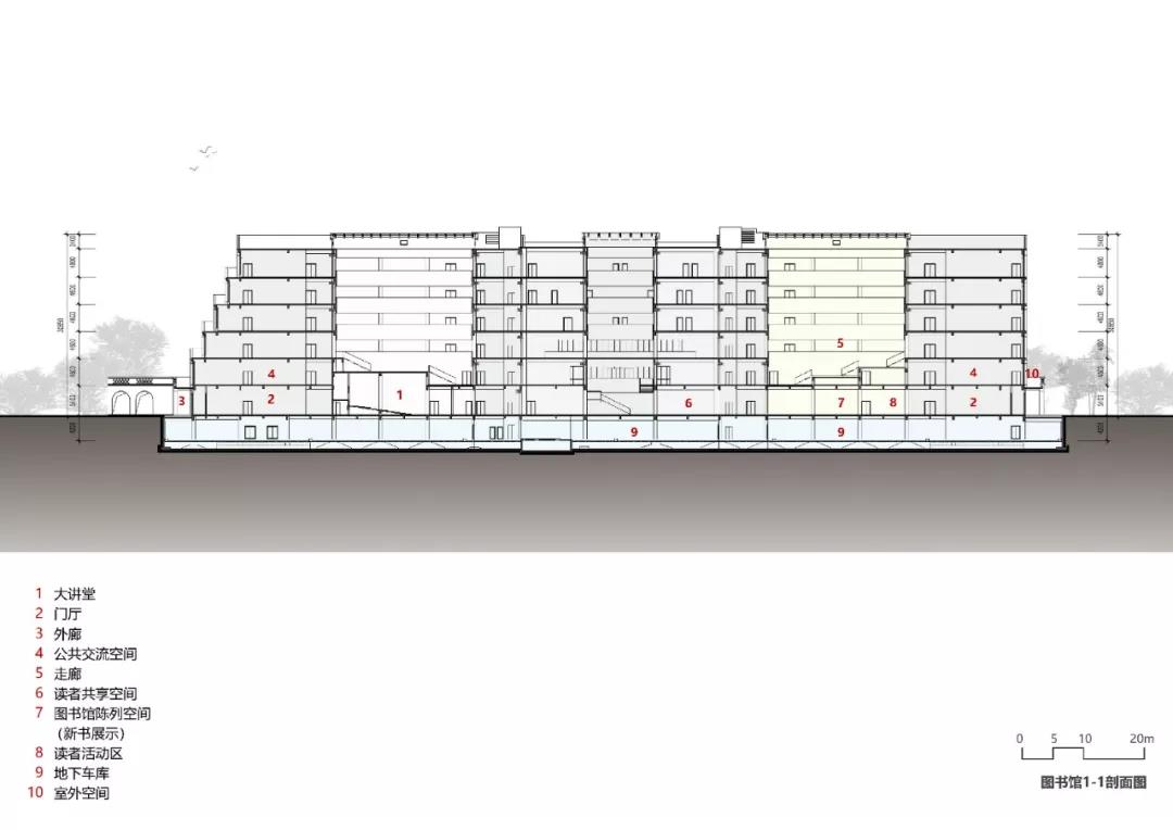
圖書館剖面圖
圖書館剖面圖
博物館剖面圖
校史館剖面圖
節點大樣
項目信息
建筑師:清華大學建筑設計研究院有限公司
項目年份: 2018
建筑面積: 57.5萬平方米
項目地址: 延安,陜西,中國
主創建筑師: 莊惟敏
設計團隊: 莊惟敏,李匡,唐鴻駿、盛文革、張翼、許騰飛、陳蓉子、丁浩、曾琳雯等
.END.
注:本文轉載自建日筑聞,版權歸原作者所有。

