合肥京東方醫院
作者:建日筑聞 來源:建日筑聞
合肥京東方醫院以簡約、高科技、療愈花園設計,注重患者體驗為設計理念,致力于為合肥創建出一所世界一流的智能化醫院。合肥京東方醫院從屋頂到地面的多處花園設計,以可持續場地連接了室內和室外空間,自然舒適的空間氛圍兼顧了患者、家屬和醫護人員的體驗。
應用循證設計,建筑師將空間功能和組織流線進行適當的融合與隔離,團隊致力于為病人及訪客營造出高品質的安全有效的醫療環境,同時也為醫護人員提供一個優良的工作環境。
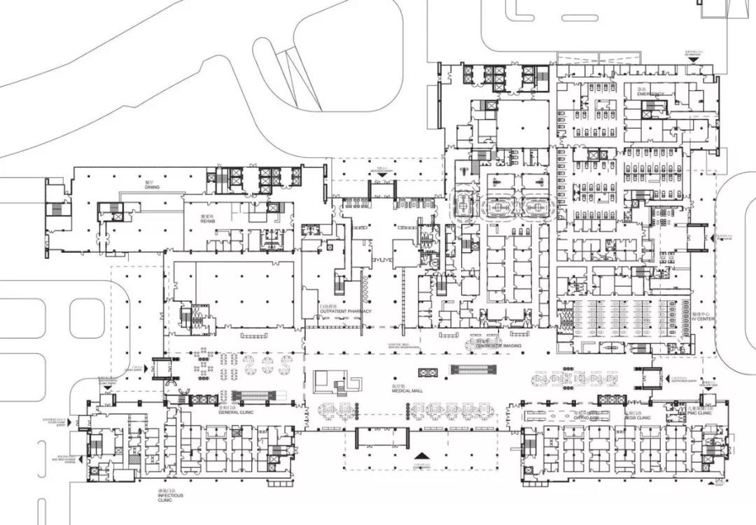
門診樓未來將會面臨整個醫院最大的人流量。因此,醫院主入口位于兩棟門診大樓之間,直達醫院內部公共街區-醫療街。 醫療街作為分流病人、家屬及醫護人員的空間樞紐,引導大量人流進入門診樓的東西翼, 連接從地下室到地面層的豎向交通, 提供醫院所需的商業功能,并且連接門診樓到醫院北側的醫技樓。
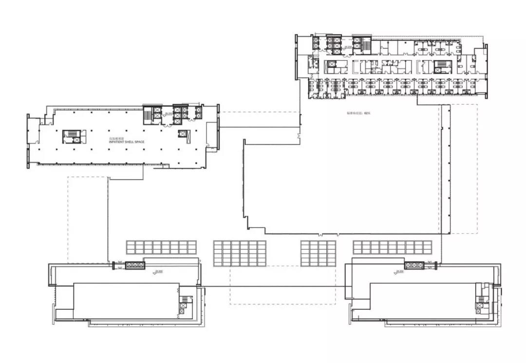
醫院的主要功能如急診部、放射科和手術部均位于醫技樓內。住院樓位于醫技樓上部以加強彼此之間的聯系。位于地塊北面的住院樓將北面的湖景盡收眼底,而位于住院樓南側的屋頂花園也為南向病房提供令人賞心悅目的屋頂綠化景觀。住院樓出入口位于兩棟住院樓之間,易于識別,方便病人到達任何一棟樓內。
建筑整體與立面造型以簡潔干凈,高科技感強烈的線條為主。地面層和較低樓層的墻面以天然石材為主,無論從色彩還是材質都給整個建筑帶來溫暖的感受。大面積玻璃作為主要立面設計元素,為建筑帶來了充足的自然采光,并將花園景觀滲透進建筑內。
大型金屬板用于雨篷和墻面支架以保護和強化此處的玻璃墻面,為建筑帶來輕盈和高科技感的細部設計。保護墻面玻璃的遮陽設施,不僅在白天抵擋了進入室內的強烈陽光,又可與LED夜景照明整體設計相結合,成為點綴與美化立面的美學構件。
項目圖紙
總平面圖
首層平面圖
標準層平面圖
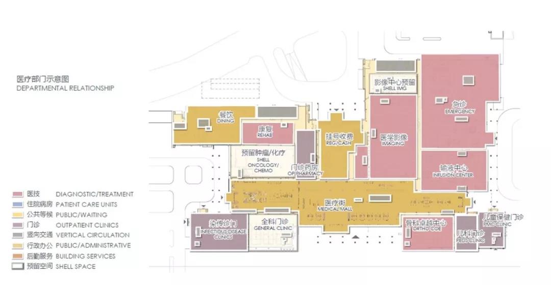
功能分區
項目信息
建筑師:HKS
地址:東方大道與文忠路交口,新站區,合肥市,安徽省,中國
主創建筑師:Alex Wang
設計團隊:Norio Tsuchiya,葉慶亞,許豪哲,余偉琪,宋海珍
建筑面積:193400.0 m2
項目年份:2019
.END.
注:本文轉載自建日筑聞,版權歸原作者所有。

