日本KO幼兒園,回歸孩子游戲的天性
作者:gooood谷德設計網 來源:gooood谷德設計網
這是愛媛縣松山市的新建幼兒園項目。近年,地方城市以車代步。孩子們上學放學由汽車迎送變得平常,孩子們在日常生活中活動身體的機會減少。由于手機游戲的普及室內游戲增多,孩子們自己在室外擁有豐富變化的環境中創造發現游戲的機會也被剝奪。在這樣的現狀下,以「通過游戲培育健康身體的園舍」為概念對KO幼兒園進行了改造計劃。
▼幼兒園外觀
設計故意將職員室和保育室等空間上下左右錯開,富含變化的空間設計使得新的空間被創造。以孩子們游戲的原風景「路邊」為形象,在園舍中設置了14個游戲場所。
在這個游戲場所中,融入了可鍛煉到山梨大學教育學部的中村和彥老師提倡的「跑」「跳」「堆」「端」這樣幼兒期很需要習得的36個基本動作。在游戲的過程中36個動作能自然而然得到鍛煉。
▼幼兒園入口,兩側墻壁開有不同幾何造型的門洞
▼一層中心位置的大型開放式游戲室
▼中央游戲室內設有兒童攀爬云梯和滑梯
▼孩子們在游戲室內跑跳
▼孩子們在游戲室內玩耍
由福井大學工學部的西本雅人老師發起進行的,根據KO幼兒園的舊園舍和新園舍中有關孩子們運動的比較研究,3-5歲孩子的步數平均增加了兩成。并且,在舊園舍中沒見過的「拋」「鉆」「爬」「騎」等動作在新園舍也得到了實現。
▼幼兒園中設有攀爬網和攀巖設施
▼孩子們抓著爬桿向下滑
▼幼兒園游戲室,孩子們順著爬桿向上爬(上),孩子們沿著梯子向上爬(下)
舊園舍平坦的庭院限制了活動和游戲,在擁有天然草坪和山丘的新園舍庭院,除了看到「滾」「攀」這樣的動作,因為花草蟲鳥聚集變化豐富,從未見過的游戲也由孩子們創造了出來。
▼幼兒園內的攀爬網設施
像這樣在園內外設置能引發身體做出相應動作的游戲場所,不僅孩子們的運動量自然而然增加,體力得到增強。這樣的空間還讓孩子們升起創造游戲的欲望,刺激好奇心,是孩子們能健壯成長的培育環境。
項目圖紙
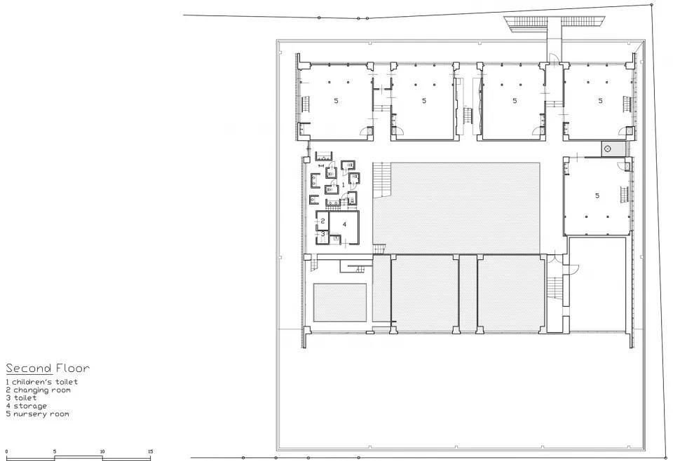
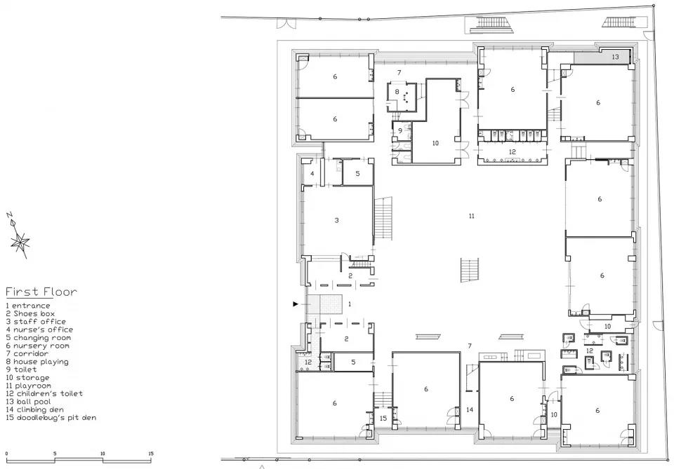
▼一層平面圖
▼二層平面圖
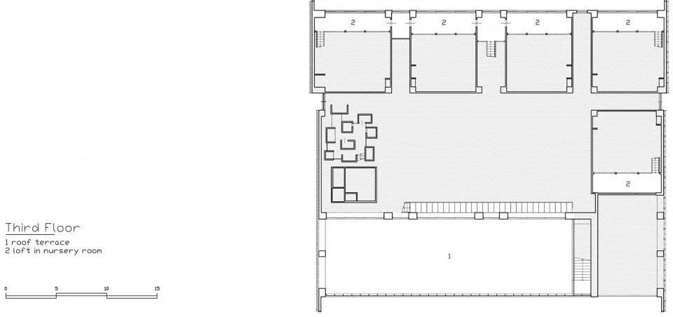
▼三層平面圖
▼立面圖(左),剖面圖(右)
項目名:KO Kindergarten
所在地:愛媛縣松山市
設計監理者:HIBINOSEKKEI + Youji no Shiro + KIDS DESIGN LABO
占地面積:5001.42㎡
建筑面積:2220.36㎡
使用面積:2710.00㎡
竣工:2019 年 4月
.END.
注:本文轉載自gooood谷德設計網,版權歸原作者所有。

