城市禮盒 - 義烏市文化廣場
作者:gooood谷德設計網 來源:gooood谷德設計網
義烏文化廣場選址于義烏經濟技術開發區義烏江畔,總建筑面積為82360平方米,是集文化娛樂、教育培訓、體育健身等多種功能為一體的大型文化綜合體。義烏以小商品而聞名于世界,這里中小企業密集,民營經濟高度發展,反映在城市建設上就是大量同質化小體量高密度的建筑彌漫,市民渴望標志性城市建筑以及開放的公共活動場所。
義烏被納入浙江中心城市規劃后,開始向發展成為國際化大城市邁出堅定的步伐,市政府希望以義烏文化中心建設為契機,為市民奉獻精彩的“城市禮盒”,向世人展示義烏城市新的形象,并宣示其面向國際面向未來的文化信心。
▼項目概覽
▼主入口
▼建筑立面
如何在大尺度的現代化建筑中,恰當地表達對地方文化的尊重,如何在表現現新興城市的現代化風貌和關照市民的傳統人文情懷之間找到平衡點和切入點是設計關注的重點問題。設計聚零為整,以極簡的建筑形體統籌復雜的建筑功能,以宏大的體量使之區別于城市中的普通建筑。
▼建筑沿街立面
▼建筑次入口
▼立面細部
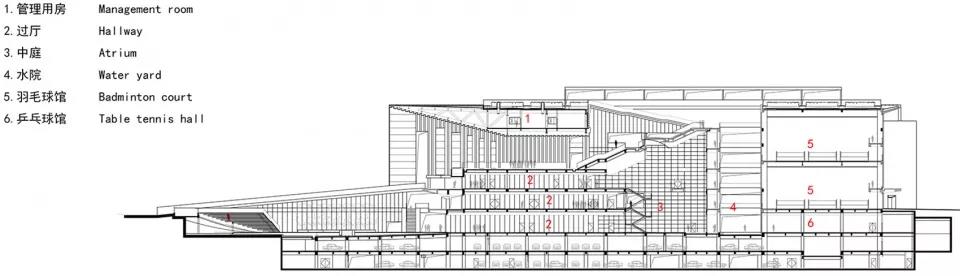
傳承中國傳統建筑中以庭院為中心的營造傳統,本項目中建筑的中心不是宏大的廳堂,而是由下沉廣場通過坡道、大臺階蜿蜒至屋頂花園的立體庭院,其中的空間與動線組織,起承轉合,步移景異,也是對中國傳統園林空間組織手法的學習和發揚。
劇院、健身中心、青少年宮三大功能區塊圍繞立體庭院呈合院展開,合院的第四面則是巨大的主入口空間。主入口巨大屋頂如云垂天際,入口下巨大的灰空間正是源于戲臺、祠堂等江南傳統的公共空間模式,十分適合江南地區的公共文化活動要求。
▼立體庭院鳥瞰
▼由大臺階望市民舞臺
大屋頂下的城市舞臺最為市民所喜愛,這里遮風避雨又視野良好,可同時欣賞到美麗的義烏江景與都市的繁華,每天清晨都有市民專程到此健身、運動、休憩。大屋頂檐下抽象的紅色疊澀造型,既像舞臺的帷幕又像宮殿的斗拱,體現出濃郁的東方文化氣息。
▼在市民舞臺晨練
紅色的金屬幻彩板是設計師為本項目特別定制的“義烏紅”,其特點是:平常為朱紅,在特定的光線角度下卻呈現出燦爛的金******。“義烏紅”隱喻著義烏可以為世界各地商旅提供發現財富、實現夢想的機會,到義烏文化廣場尋找那一抹“金色”,已經成為參觀者經常參與的趣事。
▼室內劇場
▼室內局部
下沉廣場結合觀演席設計,適合有中國特色的群眾文化活動的開展。攀登過漫長的大臺階可以到達屋頂天臺,那里有開闊的屋頂花園,登高望遠,義烏江、釣魚磯、獅子山的美景盡收眼底。極簡的沿江立面在夜幕降臨后可以變化成巨大的屏幕,變幻的屏幕在義烏江波光的倒影下更煥發出迷人光彩,成為城市的一道靚麗風景。
▼下沉廣場
▼下沉廣場大臺階
▼大屋檐下的下沉廣場
▼黃昏時分金屬板呈現燦爛的金色
▼夜景下的屋檐
▼夜景下的幕墻燈光效果
項目圖紙
▼一層平面圖
▼二層平面圖
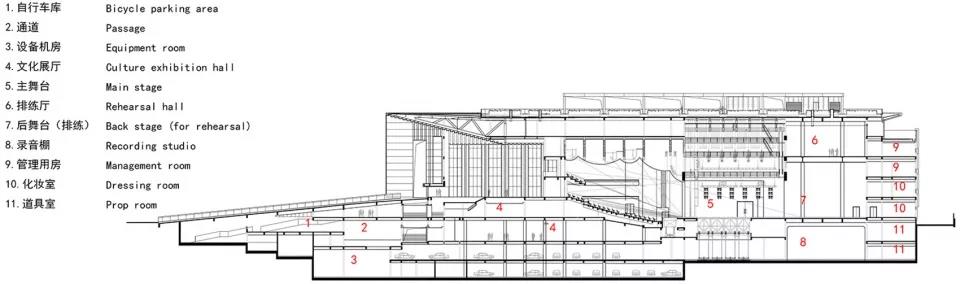
▼剖面圖(劇院)
▼剖面圖(下沉庭院)
項目地點:中國浙江省義烏市經濟技術開發區新科路與西江路的交叉口
場地面積:29362平方米
建筑面積:82360平方米
容積率:1.24
綠化率:16.4%
設計單位:浙江大學建筑設計研究院有限公司
建筑師:董丹申 邱文曉 陳瑜 鄭茂恩 章嘉琛
.END.
注:本文轉載自gooood谷德設計網,版權歸原作者所有。

