留守村莊的希望 - 碩集幼兒園
作者:gooood谷德設計網 來源:gooood谷德設計網
有句諺語大家都不陌生:It takes a village to raise a child(養育一個孩子需要整個村莊)。它既指舉全社區之力撫養孩子的社會習俗,也強調要讓兒童廣泛接觸社會、接受更加活潑真實的生活教育。然而在今天的中國鄉鎮,兒童留守或長期寄宿在校的現象日益普遍,孩子與家庭、社區和社會的親密聯結,常常被集中化的管理割裂開來。
▼鳥瞰圖
2015年,江蘇省阜寧縣政府力推基礎教育建設,委托Crossboundaries為其下轄的北沙村和碩集社區設計兩所公立幼兒園。
第一次走進碩集,我們就接觸到了空心化的社區、常年異地的家庭、無奈的陪讀母親和不安的留守兒童,還有不滿現狀的幼兒園老師。于是我們逐漸理解,這里需要的不僅僅是座幼兒園建筑,更是一種理念、一張藍圖,以喚醒整個社群對兒童的珍視——即便在一種不甚理想的社會和家庭格局下,也可以創造從前那種“老安少懷”的鄉村圖景里的教育氛圍。
▼田間視野
梳理環境,制造“山谷”
我們在北沙、碩集兩所幼兒園的設計上運用了相似的手法,又因地制宜,各具考量。與北沙村坐落于水鄉風景間、模擬村莊形態的幼兒園截然不同,碩集社區這座幼兒園,位于欣欣向榮的縣城核心區,被密集的商業街區、事業單位、鄉鎮企業,繁忙的鄉鎮公路和堆滿廢棄物的待建空地環繞,周邊不算開闊,景致也乏善可陳。
針對這種現狀,我們決定制造一個“群山環抱”的“谷地”:以多層建筑三面圍合出一個內向空間,為孩子們在園內生活、玩耍和學習時,阻隔來自外界的大部分嘈雜;同時,仍沿用組團形式,適度分解幼兒園的總建筑體量,將尺度降到不至于讓孩子感到壓迫的程度。
▼外形回應場地
▼設計示意圖
▼以多層建筑三面圍合出一個內向空間
▼建筑外觀
建筑風格尊重和延續了蘇中傳統,和當地民居呼應,并依各棟建筑的體量大小有所變型。建筑立面上,內庭的墻面主要由青磚砌成,外墻則一律是白色灰泥,在紛亂的縣城環境里脫穎而出,為孩子的世界保持一份純凈。立面上大小、高低不等的開窗,在保證日照的同時也形成通透、有趣的室內外關系。
▼操場視角
▼建筑風格和當地民居呼應
▼內庭墻面使用青磚砌成,外墻是白色灰泥
重構社群,自在學習
建筑的外觀呼應著全村合力呵護兒童的傳統;而其內部的空間布局,更為實踐“以兒童為本”的教育理念。如今的教育者越來越提倡,學齡前兒童通過大量玩耍來學習和鍛煉能力。所以在幼兒園內部,我們希望對孩子盡量減少約束,稍許放任他們的天性。
▼在戶外奔跑的孩子們
在布局上,“山谷”四周的建筑容納了不同功能,但各自獨立,我們特意將大部分交通空間挪到室外共享的大院里。這樣,孩子們在進出各個學習、娛樂或生活空間時,總要經過中庭,大大增加了他們進行戶外活動和自由交流的機會。
▼大部分交通空間位于共享的大院
▼二層平臺
我們不僅在庭院一層設置了兩片活動場;更在其上方架起貫通每棟建筑二層空間的大型露天平臺,將通行和活動的功能融為一體。兩片小活動場上方開敞,加上平臺不同方位都布置了戶外樓梯,從視覺和交通流線上都增強了上下層的通透性,為孩子們構建出一個立體的雙層戶外活動場,既有適合跑跑跳跳的開闊空地,又有引人探究的通幽曲徑。
▼立體的雙層戶外活動場
▼戶外樓梯
▼在二層平臺玩耍的孩子
孩子們初入園中,甚至可能會有點迷路,但又馬上被吸引,帶著好奇一點點展開探索。越復雜的空間,往往越能激發孩子們在其中創造、變換玩法,積累社交能力,并鍛煉他們的空間邏輯和方位感。
從情感的角度,我們更希望通過這個外部圍合、內部自在的空間,讓孩子們重新感受到群體的親密和聯結,適度緩解孤獨。
▼吸引孩子們展開探索的空間
建筑師能為教育公平做什么?
隨著中國城鎮化水平的提高,和國家對幼教事業的日益重視與支持,越來越多的鄉村幼兒園正在脫離“一棟樓加一片場”的傳統格局,也更加重視教學手段的優化。作為建筑師,我們力所能及的是通過適宜的空間設計,將“以兒童為核心”的教育理念在普通的鄉村幼教機構推廣。
無論在城市還是鄉村,教育的目的都應該是讓學生能夠自我發展,形成獨立的人格,以便在無法預料的未來做出有意義的選擇。我們希望有朝一日這種價值不只是都市中的“小眾精品”,它應該成為一個基于對孩子的愛的普適方法。
▼建筑近景
項目圖紙
▼軸測圖
▼一層平面圖
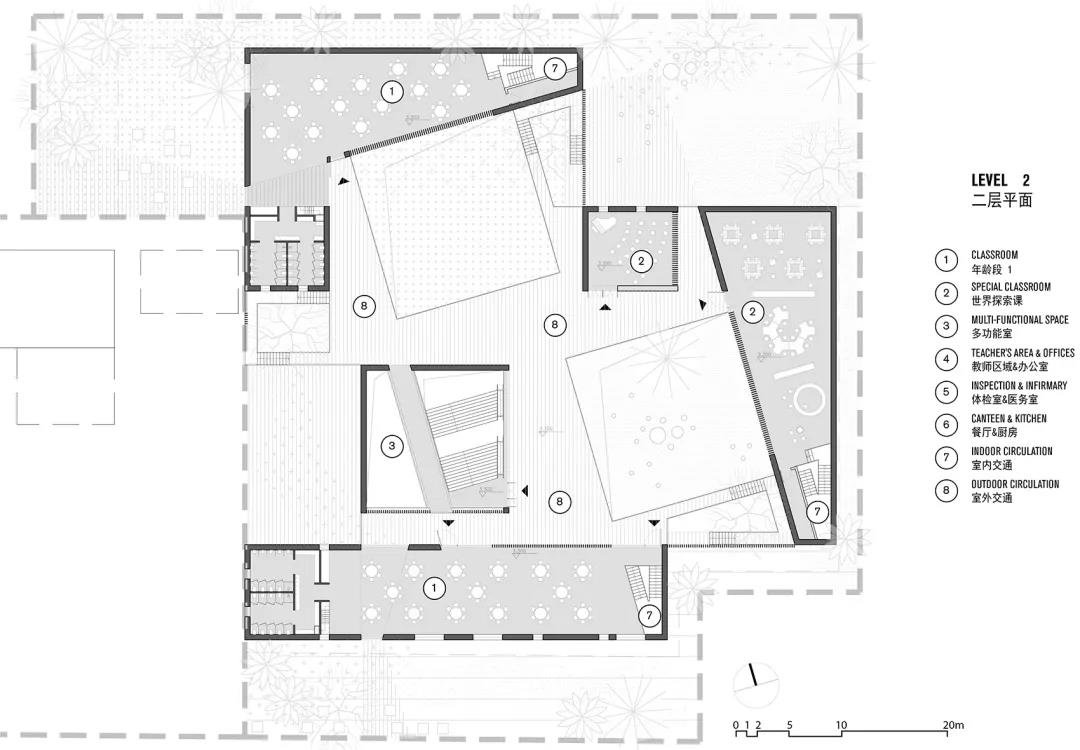
▼二層平面圖
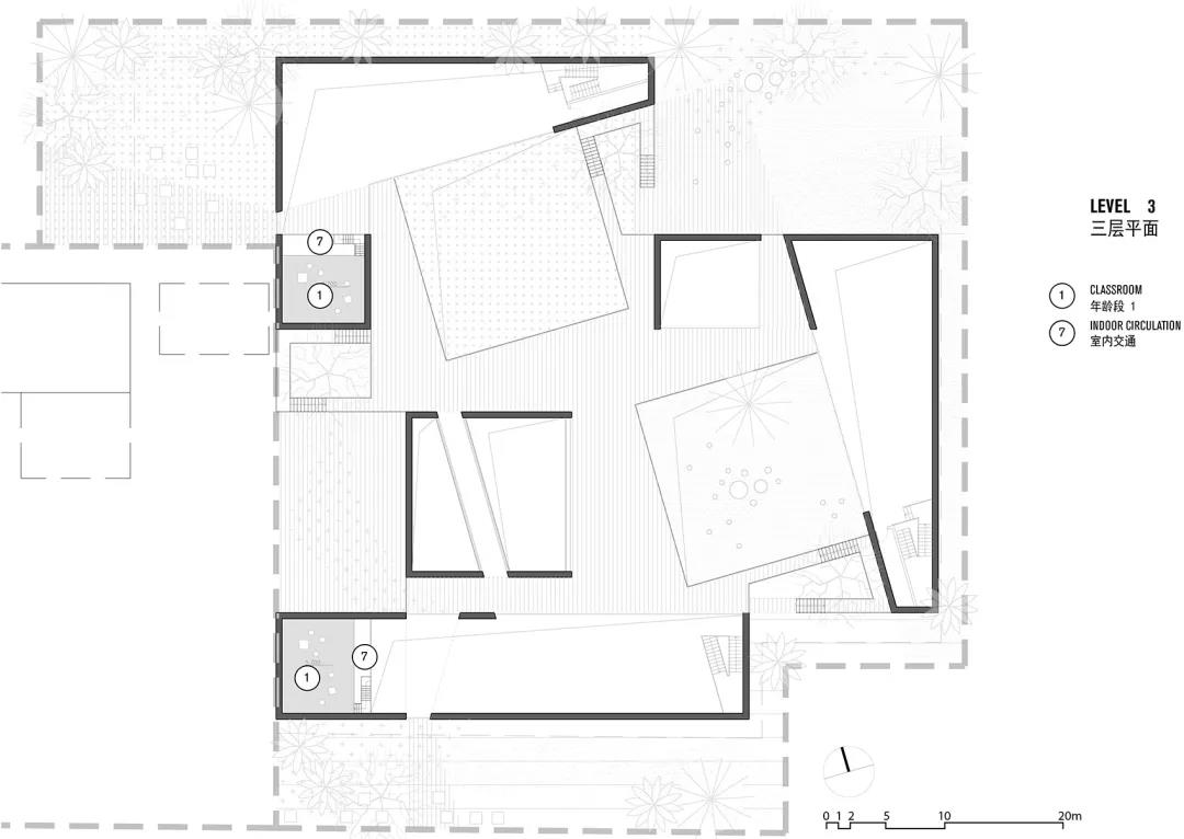
▼三層平面圖
▼立面圖
地點:中國,江蘇,阜寧縣,碩集社區
客戶:江蘇省阜寧縣教育局
總建筑面積:3141 平方米
學生人數:300人
設計周期:2015年12月至2016年9月
施工周期:2017年4月至2018年8月
完成時間:2018年8月
設計團隊:Tracey Loontjens ,Alan Chou(周業倫),Andra Ciocoiu,郝洪漪
.END.
注:本文轉載自gooood谷德設計網,版權歸原作者所有。

