BIG新作 | AARhus住宅綜合體
作者:gooood谷德設計網 來源:gooood谷德設計網
AARhus住宅綜合體位于奧胡斯?新城區?4人造島的端點。項目的位置在海灣與港口、城市與自然之間,因而享有獨特的雙重景觀。
▼項目概覽
▼海灣與港口、城市與自然之間
▼場地:建筑位于 ?4人造島的端點,三面環海
▼基于人造島的場地限制條件,建筑的外圍結構擁有4個不同高度的頂點
▼通過切割和抽出的方法,外圍結構的內部形成一個中央庭院
▼寬敞的屋頂平臺、連續的陽臺、綠色庭院以及視野極佳的公寓共同創造出理想的生活模式,同時為港口和城市的天際線增添了活力
BIG的設計方案將奧胡斯既有城市體塊中最主要的建筑類型融合在一起,最終形成一個兼具了庭院建筑、連排住宅和塔樓特征的項目。建筑的每個角落都擁有不同的高度:階梯式的屋頂景觀創造出寬敞的私人露臺,為不同的樓層帶來戶外活動空間。
▼一個兼具了庭院建筑、連排住宅和塔樓特征的項目
連續的陽臺環繞在建筑外沿,作為抬升的戶外空間的延伸。一些更小的陽臺朝向內部庭院,為每個居住單元提供了充足的戶外空間。庭院作為AARhus的綠色中心,為居民們提供了可以種植蔬菜和果樹的共享花園,需要時還可以作為舉辦社區露天宴會的場地。
▼階梯狀的屋頂平臺帶來了完美的戶外空間,并且可以從所有的屋頂住宅直接進入
▼屋頂平臺鳥瞰
▼更小的陽臺朝向內部庭院
▼陽臺景觀
▼陽臺細部
在街道層,建筑為私人的沿海休閑區以及商業區提供了一系列獨特的功能空間,支持著城市的蓬勃發展。東北側的雙層住宅朝向水面,可以直接通向游泳池區域。
▼雙層住宅和沿海商業空間位于底層的外圍,為附近的街道景觀賦予了活躍的氛圍
▼建筑從二層起是住宅單元,均享有優越的采光條件,以及朝向海面、港口和城市的壯觀視野
▼臨街立面
▼海景陽臺
建筑的西南角是共享的社區空間,通過前方的寬闊露臺與城市空間相連接。這一多功能的空間在街道上創造了一個活躍的立面,同時將停車場隱藏在建筑的中央基座內。
▼停車場被隱藏在中央基座的前兩層以及地下一層,擁有極高的便捷度
▼庭院內景
▼朝向庭院的立面
▼住宅單元內部
從本質上看,AARhus項目充分尊重并融入了丹麥第二大城市的建筑環境,同時也為港口和城市的天際線注入了新的活力。
▼從BIG設計的奧胡斯海濱浴場望向AARhus綜合體
▼港口概覽
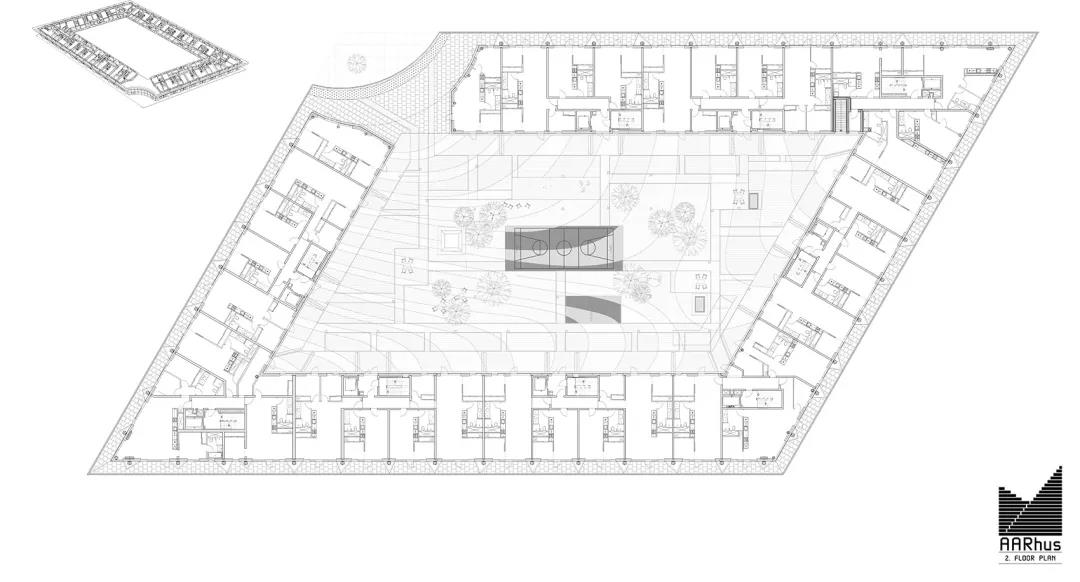
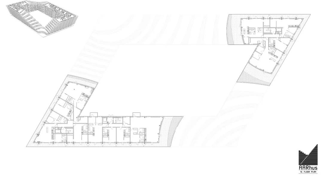
項目圖紙
▼屋頂平面圖
▼三層平面圖
▼十一層平面圖
▼東北立面圖
▼西南立面圖
▼剖面圖AA
.END.
注:本文轉載自gooood谷德設計網,版權歸原作者所有。

