創造適應未來的教學環境 - Tiunda小學,瑞典
作者:gooood谷德設計網 來源:gooood谷德設計網
該項目旨在設計一所現代、安全、有吸引力和包容性的小學及預備學校,以創造能夠適應未來的教學環境。
▼校園概覽
Tiunda學校接收從學前班至9年級的兒童,擁有簡潔而堅固的體量。磚墻立面連接了場地曾經作為舊磚廠的歷史。室內設計呼應了簡單而穩固的結構,同時帶來娛樂和啟發性的空間。
▼簡潔而堅固的體量
▼由Anton Alvarez設計的樹狀黏土雕塑
▼磚墻立面連接了場地曾經作為舊磚廠的歷史
▼立面細部
首層的公共區域結合了小餐館、廣場、主樓梯和一些共享學習空間,有助于提高學生們的社區感和集體自豪感。C.F. M?ller事務所與學校建造專家Anna T?rnqvist緊密合作,為Tiunda學校創造了一系列靈活且面向未來的學習環境。
▼共享大廳
▼主樓梯和共享學習空間
空間設計在充分迎合常規布局的同時也創造了許多新的機會,例如更加多樣化的教學空間和座位布局等。
▼休息室
▼公共空間
▼多樣化的學習空間
新建筑中還包括了備餐廚房、課后俱樂部和一間全新的體育館。學校和校園充滿了熱情、有趣和富有吸引力的氛圍,在提高社交活躍度的同時也能夠保障學生們的安全感。
▼體育館
▼體育館樓梯細部
▼體育館更衣區
▼室內細部
基于密切的溝通及合作,該項目確保了高質量的結果,為學校賦予了開放性和認知度。整個項目包括既有學校的拆除和新Tiunda學校的建造。
▼從草坪望向教學樓
▼街道視角
項目圖紙
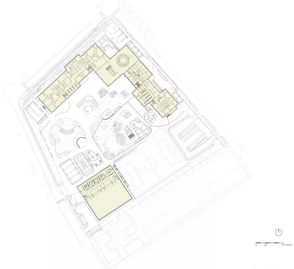
▼場地平面圖
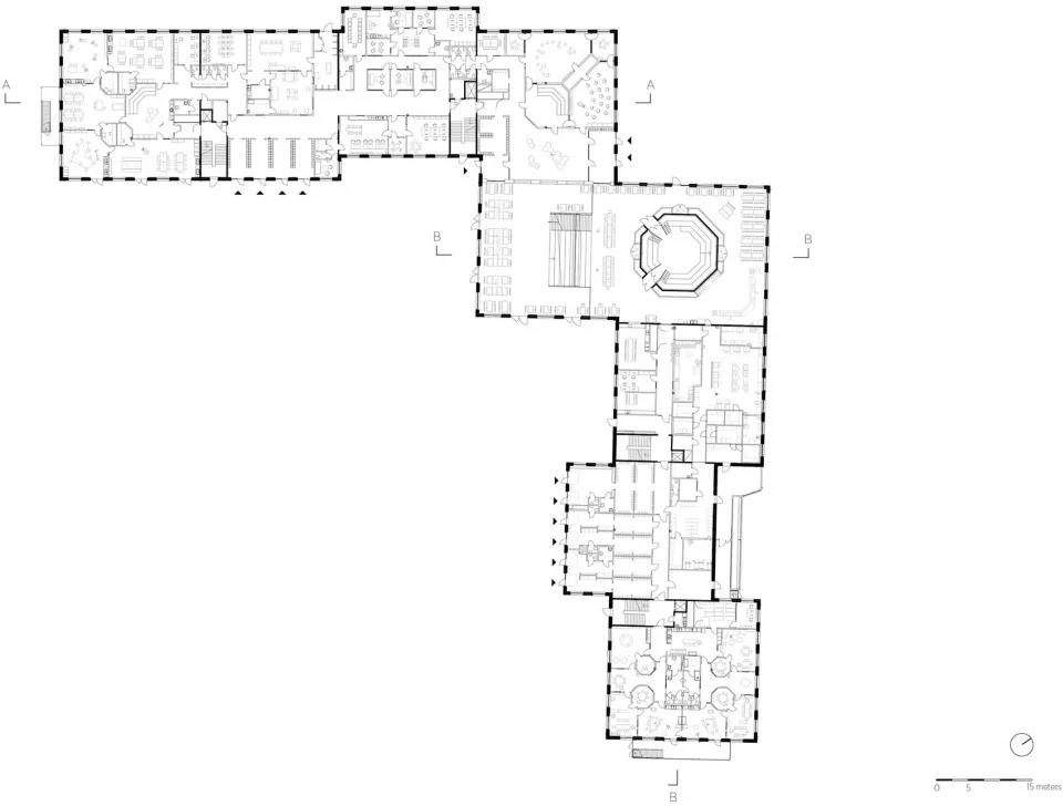
▼一層平面圖
▼立面圖
▼剖面圖
.END.
注:本文轉載自gooood谷德設計網,版權歸原作者所有。

