高容積率下的流動院落:深圳前海三小
作者:建日筑聞 來源:建日筑聞
沿街立面 ©吳清山
近年來,隨著深圳城市快速發展,城市建設用地高度集約,城市空間密度的日益加??;同時在一系列政策刺激下,城市人口規模迅速膨脹,學位需求急劇擴增。而面向未來教育的多元化建筑功能需求,也催生了校園空間硬件指標的進一步提升,因此為了適應城市土地、人口規模、教育理念的時代背景發展,高容積率高密度(簡稱高容高密)的校園已成了近年來深圳中小學設計的熱點和面臨的挑戰。
沿運動場****** ©吳清山
前海三?。ìF更名為深圳南山實驗教育集團荔灣小學)坐落于深圳南山區大南山腳下,位于月亮灣大道以東,前海路以西,港前路以北,基地北側緊鄰居住小區。校園總用地面積13048平㎡,在起初的公開招投標中,辦學規模要求是24班的小學,由于周邊學位數量的嚴重緊缺,最后班級數量調整至不小于36個,因此最終總建筑面積33200㎡,容積率1.7。與深標規定的合理的小學容積率0.8相比,在如此高的容積率條件下,如何營造健康輕松、舒適開放的立體校園空間成了設計的關鍵。
校園西北角****** ©吳清山
校園從西往東看 ©吳清山
布局策略
設計首先從學校與周邊城市關系入手,總體布局形成了東西縱向的“教學辦公+生活運動” 功能模式,動靜分區明確。設計將運動場布置在用地西側,有效隔離月亮灣大道城市主干道貨柜車等車行噪音;將風雨操場面向南側港前路且緊鄰運動場布置,方便學生使用的同時也減少與教學樓的干擾;主要教學樓布置在基地安靜的南北兩側,東側中部布置非正式、半正式的功能教學空間;教工宿舍、學生食堂等生活區布置在西北側,與運動場緊鄰,形成了相對獨立的生活運動區。
功能分區
三個庭院
基于高容積率的特殊性,為了土地集約高效,校園建筑以“金角銀邊”的原則沿邊展開布置,同時將300人的多功能報告廳置于地下,釋放更大的庭院地面空間,使得每棟建筑單體享有良好采光、自然通風和優越的視線與日照間距。
庭院看風雨操場©吳清山
教學庭院©吳清山
多重庭院
各個不同的建筑單體以場地的適應性,形成了三個不同尺度和功能的庭院空間:
第一庭院空間:由校門、風雨操場、東側教學樓界定了半圍合校園主入口廣場,為學校與城市提供了緩沖空間,同時在風雨操場首層設置家長接待、等候、交流的多功能室,此庭院空間成了校園與外界接觸的對外展示空間。
第一庭院©羅凱星
第二庭院空間:以校園入口中軸線對應的一棵樹“鳳凰木”為庭院場域中心,在東西向上強化了庭院與運動場空間的延伸和聯系。庭院的界面通過教學樓外廊、風雨操場架空底部和二層平臺與景觀休閑臺階、食堂的首層架空和連續樓梯,構建了庭院的橫向立體的空間層次感和流動感。
第二庭院©吳清山
第三庭院空間:通過中部非正式功能空間的錯疊并置,與南北教學樓共同形成了內向型圍合式教學疊院。中部功能聯系體底部兩層架空,并與地下多功能廳的下沉庭院,構成了地上、地面、地下多重空間連續和流動;錯落的功能盒子局部架空形成的空中活動平臺,為每層學生提供了寶貴課間十分鐘的活動和交流場所,引發孩子們互動玩耍、學習交流的熱情。
穿透的庭院©吳清山
第三庭院往西看©吳清山
第三庭院的立體連通©吳清山
第三庭院©吳清山
功能教室之間的非正式空間,生態開放,恬靜安逸,既可引導東南風進入庭院,又可遙望東側大南山,構成了景觀視線互動。第三庭院空間通過立體的疊置,建立豎向空間層次感和流動感。
第三庭院空間©吳清山
第三庭院連廊與平臺 ©吳清山
通過三個差異化庭院空間在不同維度的延伸、疊加、交互、滲透,結合建筑底部架空、下沉庭院、景觀綠化、廊橋平臺,構建了立體、連續、流動、通透的公共空間系統,營造了一個生動、開放、活力的校園庭院內界面。
第三庭院疊臺 ©吳清山
多重路徑
建筑首層局部架空,并以連廊聯接,結合學生的行為路徑構成了流線型的庭院景觀邊界。
首層架空連廊©吳清山
首層架空為校園提供一個符合南方地域氣候特征的連續性遮陽避雨的場所,也可供雨天體育活動課。
架空連廊的滲透與流動©吳清山
中間聯系體將面向庭院的教學辦公區的外部走廊與非正式空間通過一系列的活動路徑串聯起來,活動路徑在室內外、上下層之間相互交疊,促進交往、交流的發生,同時強化了分層的模糊性、垂直空間滲透性和便捷的交通聯系。
地下交通疏導中心架空下沉庭院©吳清山
內院©吳清山
地下設置交通疏導中心,在緊張的校園用地情況下為家長提供了接送孩子的空間,接送車流通過地下坡道入口進入地下環形交通島的下沉庭院學生等候處,學生可選擇直跑樓梯或電梯直上首層地面再至各個教室。
多功能廳下沉庭院©吳清山
場所情感
環境對于個性和才能的發展具有決定性的影響。我們希望學習空間無處不在,更多的多功能開放空間取代由單一長廊,不同樓層留白的空間為學生、老師提供了手工、書畫、閱讀的可能。
教學樓外廊©吳清山
六年學程,在價值觀的塑造和回憶的年華中,是濃墨重彩的一筆。大樹下,是課間的偷閑;大臺階,為校運動員助威;圖書館,記載多少人對外面世界的探索;庭院鳳凰花開花謝,一季緣來,一季緣散,是畢業的惜別。
體育館休閑臺階©羅凱星
建筑營造出的空間,不止于合理性的滿足,同樣能傳達出正向的態度。當下多元化的思想環境,學子不再拘于室內苦讀,寬敞的連廊是所有人都能互相交流的場所;量體錯落下神秘的留白空間,是轉角偶遇新面孔的契機;明亮的大片白墻,從童心滿滿的彩色門窗開始示范,預想了未來涂鴉、展覽的場景,白墻雖不含感情,可也最包容。
圖書館室內©吳清山
這些難以具象的體驗,潛移默化地在學子懵懂的世界觀中,撒下關于美、包容、探索的種子,也承載著老師、社會,對這些初生太陽的期盼。
沿街東南角******©吳清山
項目圖紙
總平面圖
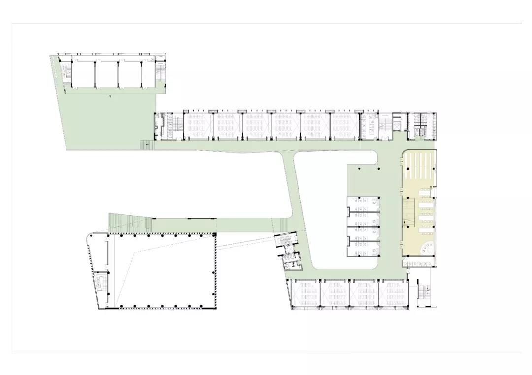
首層平面圖
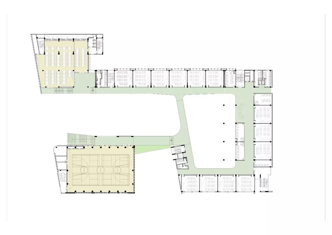
二層平面圖
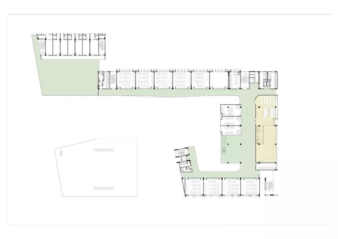
三層平面圖
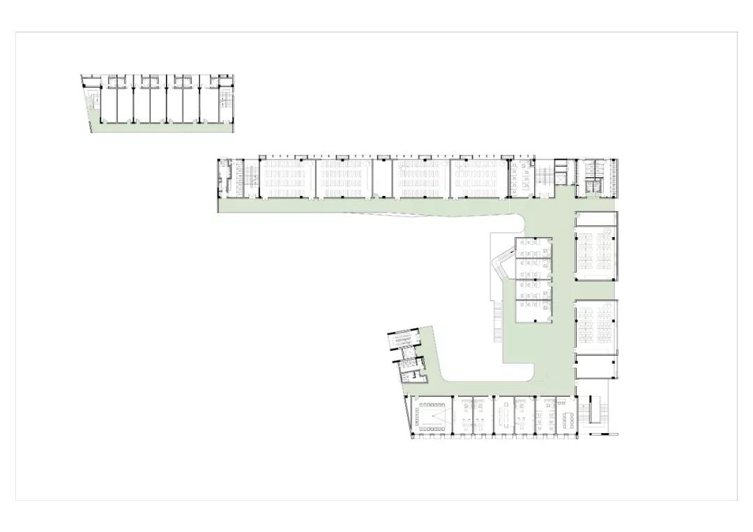
四層平面圖
五層平面圖
六層平面圖
地下室平面圖
立面圖
剖面圖
項目信息
建筑師:深圳大學建筑設計研究院有限公司
地址:深圳南山區前海路
建筑面積:33200平米
項目年份:2018年
主創建筑師:蔡瑞定
建筑方案與室內、景觀團隊:蔡瑞定、魏哲、黃潤通、吳曉龍、魏曉晨、楊春平、李山薇、何偉勇
施工圖團隊:馬越、曾小娜、劉暢、劉中平、韓國元、謝蓉、唐進
建設單位:深圳南山區建筑工務署
攝影師:吳清山、羅凱星
.END.
注:本文轉載自建日筑聞,版權歸原作者所有。

