湖南大學天馬新校區建筑群
作者:建日筑聞 來源:建日筑聞
研究生院
湖南大學天馬新校區位于岳麓山大學科技園,總用地18.96h㎡。場地北臨湖南大學老校區,東倚天馬山,往西隔麓山南路與岳麓山相望,南面為阜埠河路和天馬學生公寓,自然景觀和人文氣息濃厚。校區規劃建設肇始于2003年,其后歷盡波折,到2016年方得以全部建成。新校區毗鄰老校區,是它的延伸、擴展和補充。
設計整體引入群構的思想,按照學科屬性進行組織,建構出相應的秩序和邏輯,保證了功能使用的高效和便捷,如將物理樓、微電樓和數學樓整合為一個群組。與此同時,在大的分區原則下,設計也注重不同學科的交流融合,如將藝術設計學院和軟件學院置入到一棟樓內,以期產生跨學科思想碰撞的靈感火花。
207畝整體軸側圖
整體模型
湖南大學研究生院
近些年來地方工作室研究了湖南傳統民居吊腳樓、風雨橋、曬樓、吞口屋、天井等形式,剝離外在語匯顯現特征,提煉和還原出各種基本空間類型,成為指導設計的原型語言并通過一定的轉化衍生在實踐(包括在湖南大學原有校區的設計)中大量運用。
研究生院
研究生院樓采用了院落、天井、臺地、狹縫等地域空間類型對兩萬平方米的龐大體量在不同向度進行切割和鏤空,消解了建筑對城市空間的壓迫,并被塑形成為了一個實體組合感強烈的建筑“雕塑”和內部充滿著空隙的呼吸體,這也與湖南大學的建筑原點——岳麓書院的各種空間形態衍生呼應,由此有效地應對了該地點的歷史文化、氣候環境以及場地特征等各種復雜的制約條件。
研究生院
研究生院
在形態處理上,設計不過多著墨于單體的形構特異性和自身屬性的強力彰顯,謹防校區成為個性化建筑的雜燴拼盤。通過采用單元衍生的構成策略,在各單體之間以及單體各部位之間形成對位、呼應、相似、穿插的關系,保證了它們在尺度上的協調和形態上的劃一,加之以外墻對水刷石材料的純粹使用,讓各個建筑集聚為整體。
研究生院
研究生院
通過對形體連接、抬升、擠壓、切割、退進的操作,留出了基座、平臺、院落、廊橋、巷道、天井等空間。這些空間散布各處,成了促進人際交流和激發更多創意的場所,它們突破本有的功能定義,形成了新的意義延伸。另一方面,這些空間同時產生了陰影區和風道,也是對本土地域氣候的一種積極回應。
研究生院形體生成
研究生院
一些局部的處理也繼續強化了校園儀式化的氛圍,例如: 通過狹縫空間雕琢出的線狀天光表達具有未知感的陰影領域;保留原生的兩棵大樹形成局部空間領域的指向中心;一些非理性挑出的實體成為了“布道臺”。
研究生院中庭分析圖
研究生院
研究生院
基地西側毗鄰喧囂繁華的商業街,極具開放性。設計希望建構一個與城市關系若即若離、相對獨立的空間場所。新校園應是修心的道場,有著自己的風骨,我們刻意塑造出如契里柯“形而上”作品的氣氛——畫面靜寂而悠遠,房屋封閉而光影濃烈。
研究生院
墻面采用水刷石材料有著歷史文化傳承的考量——老校區充滿著使用這種材料的新舊建筑,但更多的是對石子自身特有屬性對塑造氛圍所起作用的認識。上墻的天然卵石子是從湘江中淘出,并經過人力的多次篩選而來的。如果仔細辨識,可以發現每顆石子形狀各有不同,顏色在同一色系下也千差萬別,石子之間甚至可以看到嵌入的貝殼、生物殘骸和沙礫等雜質。這無數差異化的微表情在光線的沐浴下顯現成一種濃烈的暖調,強化了建筑的棱角和體塊,彌散在校園的場所中,人們都被籠罩其中,還原了契里柯的畫意。
研究生院
湖南大學游泳館
群構的理念中暗含了地景的思想。各個建筑本體與大地、山體之間是一種彼此嵌入的關系。建筑從大地中生長,大地是建筑的延展,由此消弭了建筑與景觀的清晰分界,形成了一種原始粗獷的審美意義。
游泳館
游泳館
以游泳館為例,項目位于天馬山麓坡地與平地的交界處,形體順應地形坡起關系,在主入口區域的建筑形體依山就勢,層層疊疊似一片片的巖石架設于坡地之上,結合大尺度室外臺階的運用,自然地形成空間場所行為導向,明確建筑與周圍環境的地景響應關系,同時也提供了一個容納各種公共活動行為的平臺。建筑場館主體凌空架設,成為整體構型的重心,好似一個從山體中伸出的方盒,凸顯了自身,與周圍形成一種對比和襯托,充分展現體育建筑的張力。
游泳館形態生成
游泳館
湖南大學理工樓
模型推導:改變以功能板塊組合的慣常模式,而以類型單元為基礎,研究其空間內在的結構關聯,形成包含了城市空間、教學組團、單元空間、交通步道體系、視域廊道的群構整合,從而使功能關系組合轉為結構關系建構,并以連續單元體強化線性空間特質,強化出契里柯式的“深景******”的效果,以達到加大景深層次的效果。
理工樓形體生成
理工樓
設計在樓與樓之間重構了契里柯繪畫里深景******的街景,找尋中間“空”的況味,通過簡單的排列邏輯進行組合,產生深邃的、具有某種歷史場景感的東西。其中最典型的是理工樓群的設計,A 樓與B 樓(物理與微電子科學學院樓)面面相對的部分都采用了單元體交錯并置的方式,仿佛端坐在兩側的石像彼此之間的緘默對望,中間夾著一條綿長甬道,指向著這條軸線的遠端的收口——C 樓(數學學院樓)端部如同彎曲手臂一樣的奇怪懸挑。
理工樓
理工樓
項目圖紙
總平面圖
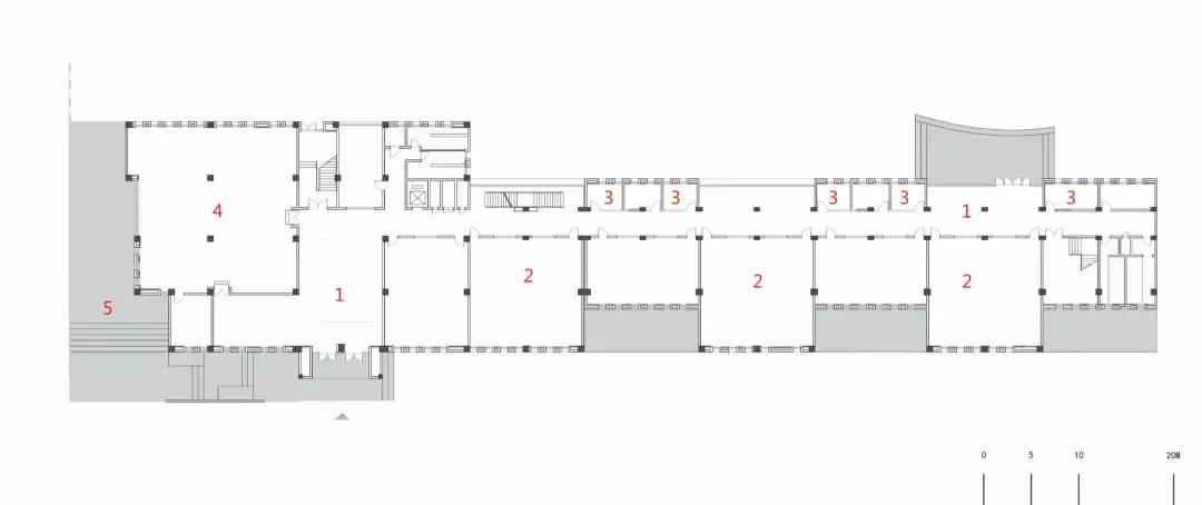
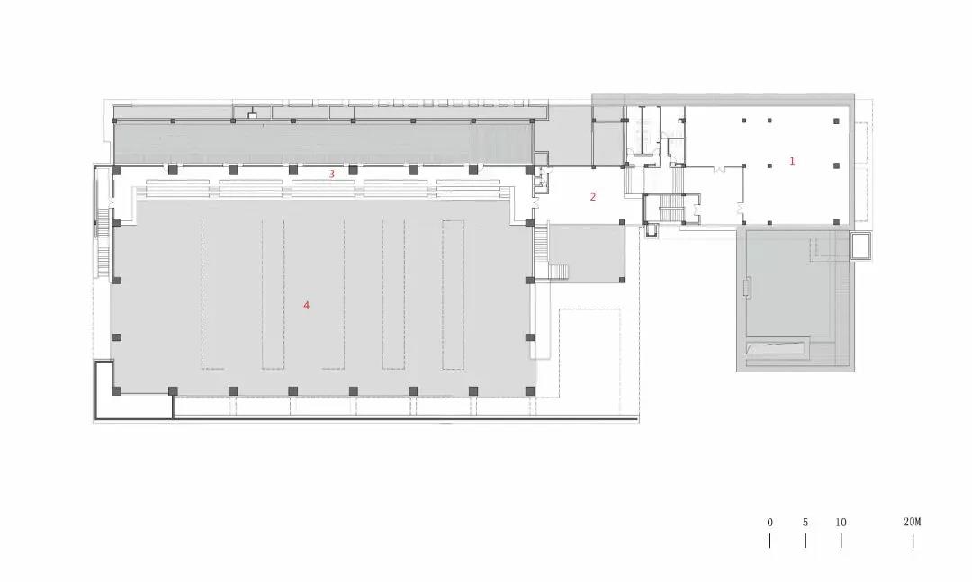
研究生院一層平面圖
研究生院二層平面圖
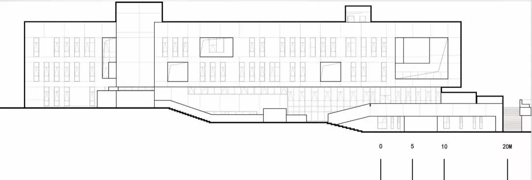
研究生院東西立面圖
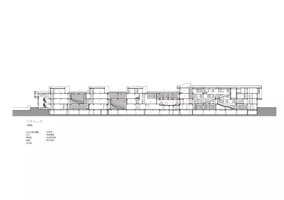
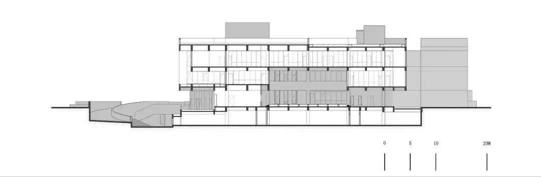
研究生院剖面圖
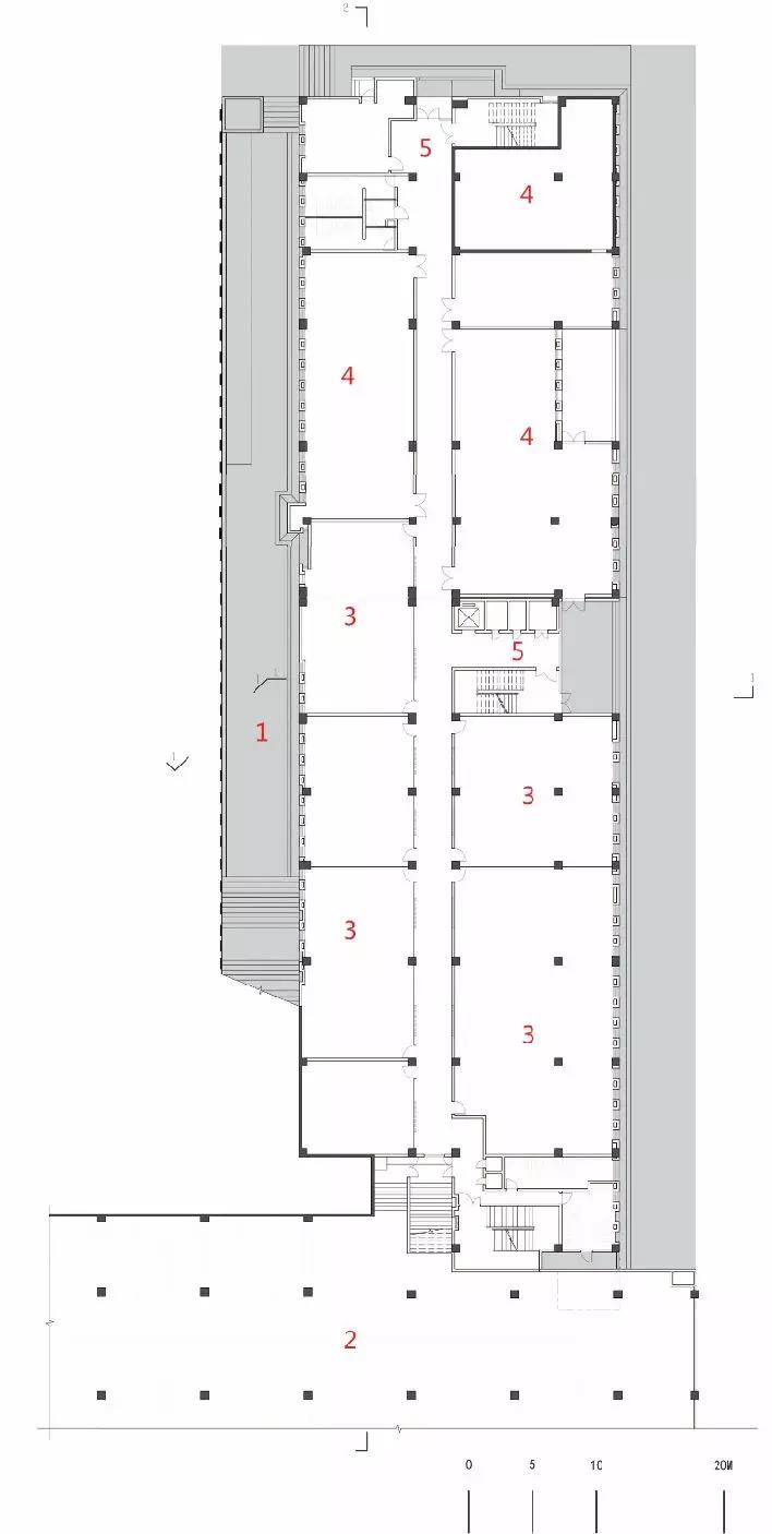
理工樓A 棟平面圖
理工樓A 棟立面圖
理工樓A 棟剖面圖
理工樓B 棟平面圖
理工樓B 棟立面圖
理工樓C 棟平面圖
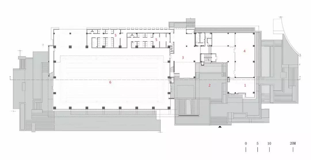
游泳館一層平面圖
游泳館二層平面圖
游泳館立面圖
游泳館剖面圖
項目信息
建筑師:地方工作室
地址:長沙市,湖南省,中國
研究生院設計團隊:魏春雨、李煦、伍帥、劉海力、陳天意、覃麗伊、盧晶、劉鏡淇、付超云、王記成
理工樓設計團隊:魏春雨、宋明星、李煦、張光、沈昕、歐陽素淑、李雅俠、熊丹丹、張文雅
游泳館設計團隊:魏春雨、黃斌、顧紫薇、彭軍、呂昌、周瑞、蔣康寧
景觀設計:熊勁彬
建筑面積:29012.1 平方米
項目年份:2016
.END.
注:本文轉載自建日筑聞,版權歸原作者所有。

