世界最大懸索結構展廳: 石家莊國際會展中心
作者:建日筑聞 來源:建日筑聞
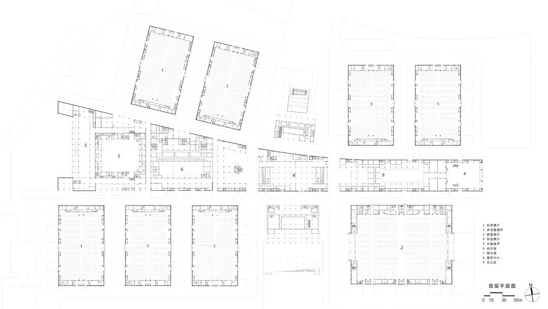
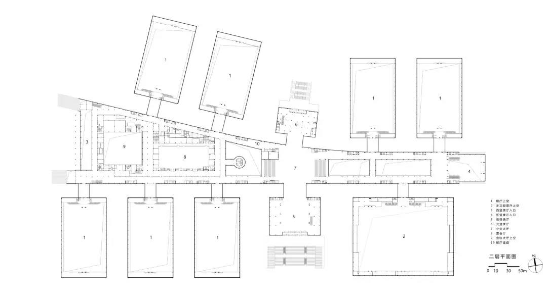
石家莊國際會展中心位于石家莊市正定新區,總用地面積64.4公頃。項目總建筑面積35.9萬平方米,其中地上22.9萬平方米。由中央樞紐區串聯會議和展覽各個部分,呈魚骨式展開。多標高步行系統實現人、車、貨分流。展覽部分包含七個面積1.1萬平方米標準展廳和一個面積2.6萬平方米的大型多功能展廳。總體展覽建筑面積達11萬平方米,是目前建成的世界最大懸索結構展廳。
標準展廳
根據對我國一系列展覽建筑進行使用后調研報告顯示,場館建設方運營方的問題集中反饋在以下幾個方面:(1)會展建筑大體量對城市的空間割裂;(2)部分場館登錄廳少展館組合少,難以應對市場需求。展館功能單一,商業價值挖掘不足。部分場館缺乏相對獨立大空間面積2-3萬m2左右的多功能展廳,無法舉辦商業演出、歌友會、企業年會等活動。(3)部分場館建筑結構與造型契合度不夠,為造型而造型造成不必要的結構浪費。(4)部分場館空間細部缺乏文化內涵,地域特征不突出。(5)建筑能耗較大。外圍護結構玻璃幕墻比例較高,部分中央大廳過大過高能耗驚人,過渡季展廳缺乏空氣對流,缺乏智能用電管理系統等。
標準展廳
標準展廳
針對后評估匯總的五個問題,我們提以下若干設計策略:
1、圍繞會展建筑的開放城市空間。場地不設圍墻市民可以自由出入,靠近城市干道界面多設置近人尺度景觀小品,鼓勵與外部互動與交往。同時將原規劃貫穿東側綠地的地面車道改為地下車道,將北側園博園到南側滹沱河公共綠地休閑步行通道連為一體,為市民創造豐富、連續、宜人的公共開放空間。
多標高流線示意圖
標準展廳室外細部
標準展廳室外細部
標準展廳室內
2、靈活高效的功能組合。建筑設置多標高平臺系統,供貨線路與人行流線互不交叉。展廳沿樞紐區魚骨式生長,兩三成組。既能保持整體運營的連貫性,又相對成組團獨立對外經營。設置一個相對獨立的2.6萬m2多功能展廳,承擔包括展覽、會議、演藝、賽事等功能。大觀演廳采用無固定坐席布置,后排設置少量活動座椅,可根據需要分隔成2-4個小廳。約3000m2大宴會廳也可以分隔為3個小廳獨立運營。
功能布局
多功能展廳
多功能展廳
多功能展廳室內
3、結合會展建筑大跨度空間的需要,應用懸索結構實現功能要求同時實現富有韻律感的連續屋面。石家莊國際會展中心的7個標準展廳全部采用全球罕見雙向懸索結構,較桁架結構約節約一半用鋼量。懸索結構展廳屋面連綿起伏錯落有致,展廳大跨度屋蓋,主承重結構最大跨度105米,次承重結構最大跨度108米。
展廳索結構施工順序示意圖
屋頂
南登錄廳
南登錄廳
南登錄廳室內
4、由懸索結構自然形成的大屋面形成對傳統建筑的強烈映射,同時在展廳山墻面細部抽取借鑒正定縣隆興寺摩尼殿歇山抱廈意象,用新材料新技術呈現幾何力學和建筑美學的統一,也進一步提升了參觀者對建筑在地性的認同度。
運貨通道
5、為實現建筑性能的綠色可持續,從策劃設計啟動階段,就引入綠色三星的相關設計要求,從建筑全壽命周期角度考慮設計策略的組合。
北登錄廳室內
會議入口大廳
石家莊國際會展中心立足于“前策劃—后評估”研究合理規劃空間布局,結合造型巧妙運用懸索結構大大降低了鋼材用量,發掘正定地域特色并抽象表達,以前置綠色目標導向引導設計。該項目建成后取得了良好的社會、經濟、環境效益。
觀演廳
展廳懸索細節
展廳連廊
項目圖紙
總平面圖
首層平面圖
二層平面圖
南立面
大展廳剖面圖
結構大樣詳圖
標準展廳剖面
項目信息
建筑單位:THAD 清華建筑設計研究院
地點:石家莊,中國
主持設計師:莊惟敏
設計團隊:莊惟敏、張維、張葵、張紅、梁增賢、章宇賁、王禹、王威、龔佳振、張嘯乾、于航、李璞、李向苡、張懷萍、吳雪、等(建筑);
場地面積:64.4 公頃
總建筑面積:35.9 萬平方米
設計時間:2016.11-2017.05
竣工時間:2018.04
.END.
注:本文轉載自建日筑聞,版權歸原作者所有。

