深業上城 LOFT, 從‘大實’到‘小虛’
作者:建日筑聞 來源:建日筑聞
© 曾天培
© 曾天培
基地為包含6棟超高層辦公、酒店及商務公寓的高端綜合體,毗鄰深圳CBD核心圈,位于兩大城市中心公園之間。都市實踐的設計任務是在其占地逾6萬平方米的大型購物中心頂部,建造10萬平方米的居住及辦公 LOFT。
© 曾天培
© 曾天培
為消解地塊自身的超高層垂直向的巨大壓力,我們利用面積較大的居住 LOFT和辦公LOFT營造出兩座人工山形體量,回應超高層塔樓的巨大尺度,并呼應周邊的蓮花山和筆架山。
總平面圖
形式策略
© 曾天培
© 曾天培
同時向內圍合出一個安靜的空間,以細致的步行街道聯結3-4層的高密度的辦公 LOFT,排列出一個高低錯落,空間變化豐富的小鎮,其中納入LOFT劇場、展示交易中心等公共活動空間,從外圍的“大”和“實”逐漸過渡到內部“小”而“虛”非常有活力的區域。讓商業、辦公與住宅人流在同一街區活動,創造了一種居住、辦公、商業與文化空間融合的聚落式街道生活新模式。
分析圖
西南側外觀 © 曾天培
西南向街景 © 曾天培
A區居住LOFT主體標準層高9米,可靈活劃分使用;于南北兩側設置外廊,通風防曬良好;戶戶擁有私家庭院,鄰里之間既有交流,又保證了私密空間。立面以灰白色“擰麻花”的格柵樣式力求將材料本身的性能發揮到極致。
© 曾天培
A區南立面 © 曾天培
A區外走廊 © 曾天培
B區酒店及辦公 LOFT以兩棟建筑圍合出一個內院,中央設置“黑盒子”小劇場激活未來區域文化活動,外立面灰白色陶板,粗糙的質感,帶給人返樸歸真的感受。
剖******圖
C區LOFT辦公由二十多棟3~4層的小型建筑組合成“村落”,建筑呈組團式排列,每個組團自成院落,內部小巷寬4~6m,而組團之間為開放廣場,街道寬度為8~15m,組團建筑體量穿插組合,形成架空通道、露臺、庭院、陽臺、過廊等豐富的空間形態。辦公與商業平臺之間以豎向交通連接,辦公人群下樓即可漫步商業街,上樓又可繼續工作,往北A區可居住,往南去往D區可看展覽,深業上城 LOFT以新的建筑空間模式創造了多維度的生活方式。
© 曾天培
© 曾天培
內街 © 曾天培
內街 © 曾天培
內街 © 曾天培
D區是位于基地南側與A區相望的另一座“山體”,作為還建政府的部分,它的功能最初被設定為總部辦公。建筑體量的進深較大,有26m至56m不等,通過在建筑立面設置貫通的大洞,在不同區域設置內天井,端頭與商業結合的位置設置架空平臺,極大的豐富了室內外空間的層次,建筑內中走道辦公空間,串聯了多個內院、休息廳,室外架空平臺等多個不同層次的空間,形成豐富的空間體驗。
西南側外觀 © 曾天培
D區平臺 © 曾天培
D區平臺 © 曾天培
項目圖紙
區位圖
區位分析圖
區位鳥瞰示意
區位圖
手繪草圖(“環”概念)
手繪草圖(“村落”概念)
研究過程模型
設計生成
軸測圖
軸測圖
四、五層平面圖
A區戶型分解軸測圖
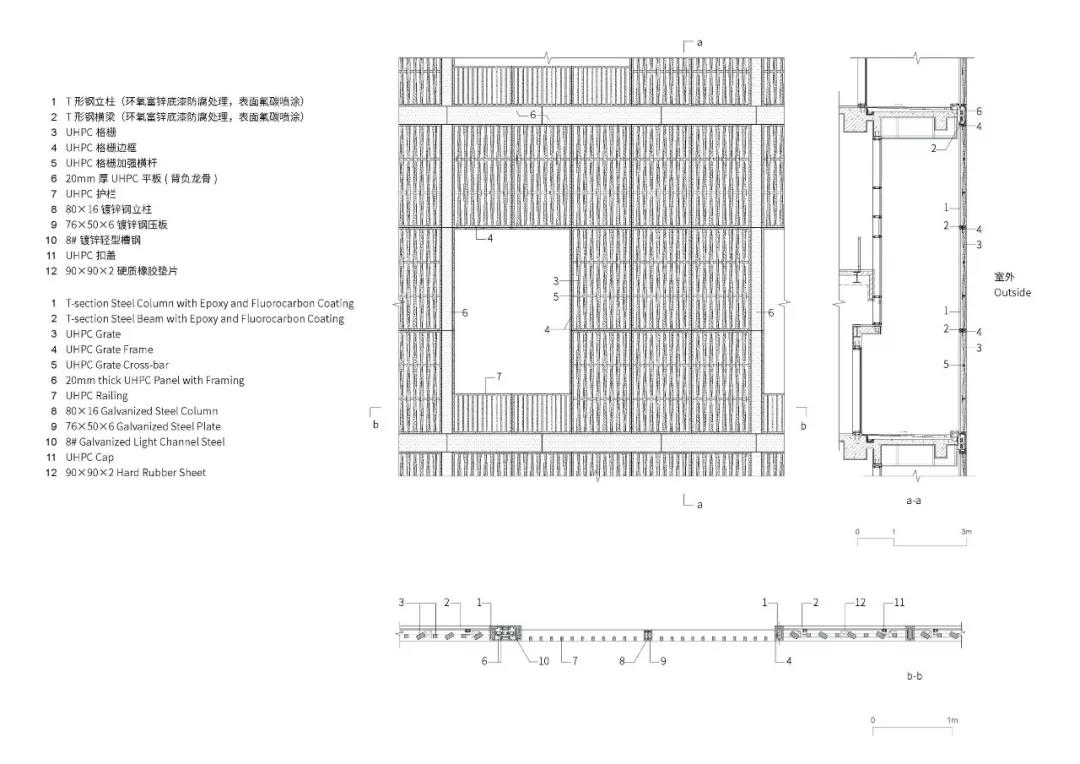
A區南立面格柵詳圖
A區南北立面單元軸測圖
項目信息
建設單位:深圳市科之谷投資有限公司
設計:URBANUS都市實踐
地點:深圳,中國
設計時間:2012-2013
建設時間:2012-2018
用地面積:64,000 m2 (大型購物中心頂部)
建筑面積:105,000 m2
設計層數:3~14層
建筑高度:36.45-67.5m
主持建筑師:孟巖、劉曉都、王輝(室內)
項目建筑師:趙佳、TravisBunt、Juliana Kei(建筑)、鄭娜(室內)、魏志姣 (景觀)
.END.
注:本文轉載自建日筑聞,版權歸原作者所有。

