混合開放與整體 – 儀征綜合體育館建筑設計,江蘇
作者:gooood谷德設計網 來源:gooood谷德設計網
項目位于江蘇省儀征市東部區域,周邊是大型沿河城市體育公園,四面與城市道路連接,用地內有一保留的古運河及東西向貫穿水系。
▼項目整體鳥瞰
▼體育館外觀
以場地中原有的水系及古運河為界,場地被自然劃分出南北兩個區域:以高效利用為原則、硬質場地為主導的北側體育場館區,和以順應自然為原則、景觀地景為立意的南側室外運動區。
▼場地劃分為硬質場地為主導的北側體育場館區,和以順應自然為原則、景觀地景為立意的南側室外運動區
位于北側的主體建筑組合了體育館(含主副館)與會議中心兩大功能,通過互通的公共平臺及一體化的立面形式,建立相對獨立而又不失整體的兼容互補關系。南側區域的水面以帶狀為主,作為城市體育公園水系的延伸。公共人流滲透,漫步、輕跑、籃足球運動、觀水游憩等各種市民活動在這里得到展開。
▼北側的主體建筑組合了體育館(含主副館)與會議中心兩大功能,南側區域的水面以帶狀為主,作為城市體育公園水系的延伸
將復雜混合的功能組合在一起,創造一個內部空間組織合理、公共空間變化豐富的綜合場館;從場所設計的開放性,延續到建筑設計的開放性,是建筑創作的核心宗旨。
▼生成分析圖
方正大氣的主體建筑以洋紅色陶棍為立面主材,原創的構造方式、精細的施工工藝以及多次1:1樣板推敲,創造了通透的帷幕效果和獨特溫暖的禮盒形象,把復合的功能簡潔整體地蘊含于其中。通過對主入口、主對景等部位的立面開放處理、公共交往空間與透過陶棍的自然光線的交織融合,整個立面在城市界面相對完整,在內景界面相對開放,賦予了儀征市文體產業 “拉開序幕” 的寓意和“正趨朝霞”的未來憧憬。
▼方正大氣的主體建筑以洋紅色陶棍為立面主材
▼原創的構造方式、精細的施工工藝以及多次1:1樣板推敲,創造了通透的帷幕效果和獨特溫暖的禮盒形象
▼建筑立面陶棍格柵細
將多種功能復合為一個主體建筑整體,以混合開放的空間構想、方正簡約而極富力度的形體設計,輔以自然流暢的景觀配置,融運動性復合性與藝術性于一體,打破傳統體育建筑形象印記,使之成為場地中的核心、區域中的標志。
▼主體建筑室內灰空間光影效果
▼空間細節
▼體育場內部
通過城市公共建筑節點的一體化與復合性營造,為城市提供混合性與開放性的活力樣板,并納入整個城市公共建筑體系規劃的系統中,是項目設計的出發點和目標所在。
▼夜景
▼區位
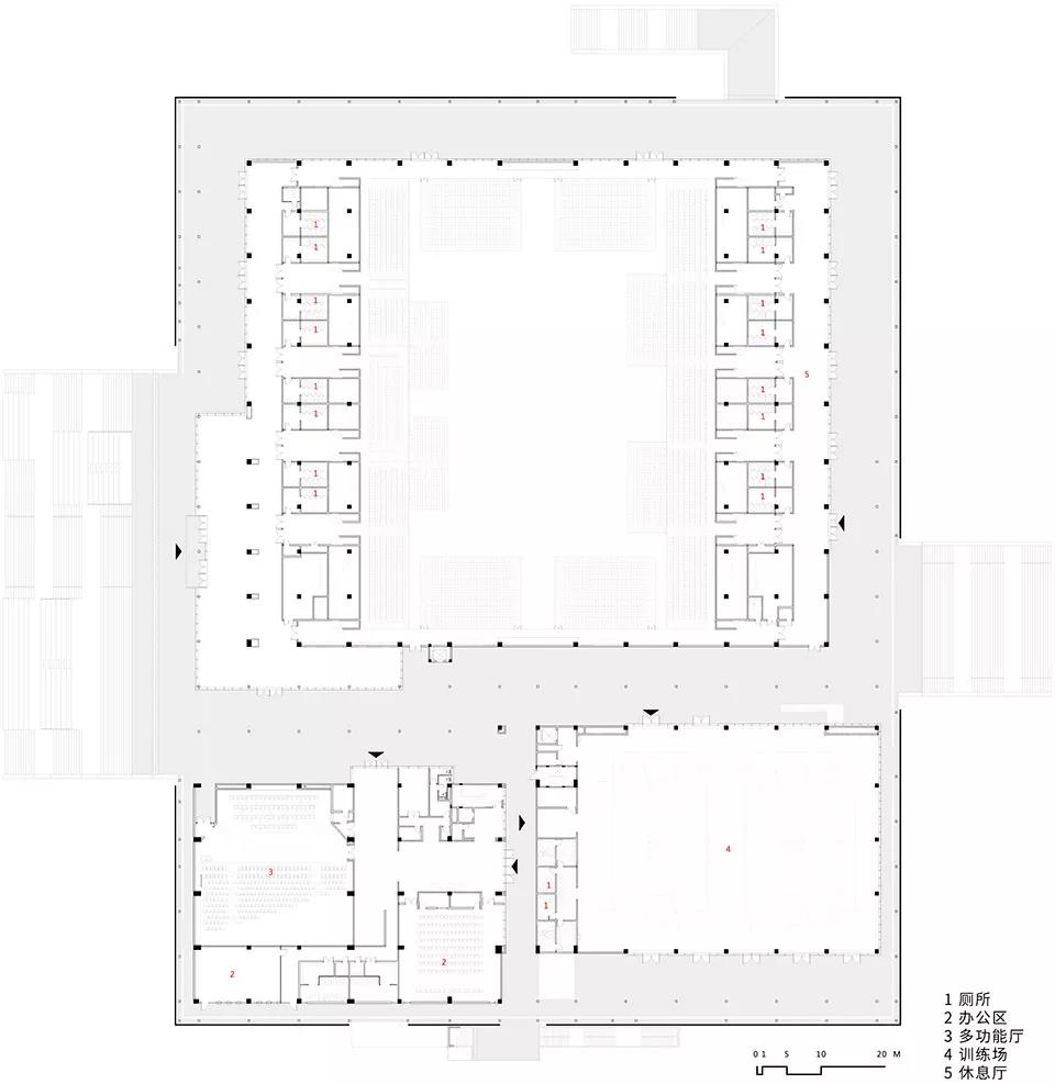
項目圖紙
▼主體建筑一層平面圖
▼主體建筑二層平面圖
▼西立面圖
▼剖面圖
▼建筑立面陶棍格柵細部
項目名稱:儀征市綜合體育館
建筑公司:浙江大學建筑設計研究院有限公司
項目設計:2016.01-2016.08
完成年份: 2019
主創建筑師:胡慧峰,顏慧,彭榮斌
設計團隊:呂寧,呂曉峰,張子權,周建爐,趙國興,蔡朋程,胡波,曹志毅,張楠,陳凱,汪奕貝,刁岳峰,寧太剛,孫彪,陳海俊,馮百樂,楊文征,朱繼承,王小冬,王杭,代雷雷,林華,袁曉男,方寅,章震遠,姜浩,盛超赟,陳圣賢,王奇,池萬剛等
項目地址: 江蘇省儀征市
建筑面積(平方米):37378.40㎡(地上35400.32㎡,地下1978.08㎡)
.END.
注:本文轉載自gooood谷德設計網,版權歸原作者所有。

