重慶房地產職業學院圖書館設計
作者:建日筑聞 來源:建日筑聞
©香港湃昂國際設計事務所
圖書館位于重慶大學城重慶房地產職業學院校園內南北中軸線上,是完善校園構架的重要一環。在校園中的核心位置以及其建筑體量,決定了它是校園中的最重要地標。總平面設計注重強調建筑與校園環境的友好性,充分考慮建筑的整體形象,將建筑與校園路網自然銜接,創造符合圖書館建筑應具備的文化功能屬性:建筑北側作為校園軸線上周恩來雕像的背景,南側面向運動場充分考慮建筑的展示性,東側靠近宿舍區,考慮形象及噪音的干擾,西側面對科技館創造通透的視線對景。
©香港湃昂國際設計事務所
在建筑北側和西南側設置圖書館入口,東側設置貨運入口,空間組織注重建筑空間的趣味性,在建筑的西南側設置下沉廣場,有效的利用了地下空間,巧妙的解決了地下空間出入口問題。
總平面圖
建筑外觀設計
圖書館形態源自燈籠花優雅的外形,北側和東側以實體墻面為主,宛若花朵枝葉包裹;西側和南側是如燈籠花瓣晶瑩剔透的玻璃幕墻。幾條流動的曲面勾勒出花朵的動感形態,與其周圍教學樓、宿舍樓相映成趣,成為整個校園的地標和視覺焦點。
概念分析圖
圖書館通過玻璃幕墻、穿孔金屬板相結合,形成各立面的特色:北立面面向主軸線和周恩來雕像,運用中國古典建筑“影壁”的概念形成進入圖書館的“過渡空間”,同時成為周恩來塑像的背景,起到更好的烘托作用。
©香港湃昂國際設計事務所
北側圖書館主入口作為校園中軸線終點的背景,與校園肌理完美結合。在圖書館中心是層層退進的橢圓形主中庭,通過特色旋轉樓梯宛若燈籠花蕊,成為整個建筑的核心。
©香港湃昂國際設計事務所
©香港湃昂國際設計事務所
圖書館通過玻璃幕墻、穿孔金屬板相結合,形成各立面的特色:北立面面向主軸線和周恩來雕像,運用中國古典建筑“影壁”的概念形成進入圖書館的“過渡空間”,同時成為周恩來塑像的背景,起到更好的烘托作用。南立面正開闊的運動場,西側以穿孔版和玻璃為主,形成水平向的包裹效果,同時提供較好的視線廊道。
屋頂洞口投射隨時間流逝產生不同的投影
西立面面向科技館,功能以閱覽空間為主,通過玻璃幕墻和穿孔鋁板條形成水平向的變化,起到遮蔽直射光的作用;穿孔鋁板密度從北向南由疏變密;屋頂造型舒展有利,形成起伏的特色。東立面面向學生宿舍,功能為圖書館服務盒,通過鋁板和條形窗形成簡潔的立面效果。
校園規劃分析圖
平面設計與功能布局
圖書館地下一層地上四層總高24米。功能布局在垂直方向遵循“底層動區、高層靜區”的原則;在水平方向遵循“西南通透,東側閉合”的原則。在平面布局時結合建筑外墻采光面的方位條件,采用多樣化的平面布置,在滿足功能的前提下盡可能使圖書館各部分有良好的自然采光條件。
入口大堂 ©香港湃昂國際設計事務所
各層功能分布充分考慮現代圖書館的開放和高效性特點及新技術、新管理方式的采用。圖書館平面布局緊湊而有條理,交通組織便捷通暢,在分布藏書區、藏閱一體區、閱讀區、休閑閱讀區、私密閱讀區、交流探討區時,考慮到各功能分區之間的關聯、管理和查閱的便捷與高效性。
北側入口室內 ©香港湃昂國際設計事務所
空間設計
主入口空間
北側是圖書館主入口空間,通過高聳的竹林營造從室外到室內的過渡空間靜謐空間。陽光透過屋頂橢圓形的洞口投射在影壁上,隨著時間流逝移動,讓簡潔的墻壁表情更加豐富。
北側主入口 ©香港湃昂國際設計事務所
中庭空間
"現在生活形態已完全不同了,跨界的理念已融入幾乎所有生活和行為形式中。商業中有圖書館畫廊,圖書館中也有商業。”作為一個精通商業空間創造的設計事務所,PHA在本項目中引入了類似商業中庭及餐飲服務空間的設計。
中庭樓梯分析圖
層層錯落的中庭與螺旋樓梯結合在一起,形成了極富動感的中庭空間。不同于傳統圖書館單一的知識傳播,現代圖書館更加強調空間的共享和信息的交流,沿著室內中庭螺旋上升的樓梯串聯起各層空間。
中庭樓梯實景 ©香港湃昂國際設計事務所
室內設計
室內設計將建筑設計元素和“書”圖形元素相結合,豐富其內涵,把建筑設計語言延伸至室內空間,達到融合和統一,營造輕松愉悅、溫馨舒適的閱讀和交流空間。北側主入口大廳高18米,用簡約的線條勾勒出優美的曲線,紅色膜結構“燈籠”突出空間的視覺引導和焦點。
入口大堂 ©香港湃昂國際設計事務所
功能區室內設計考慮日照和景觀對閱讀的影響,閱讀區域均保證相應的私密性。根據每層閱讀區域特點,良好的空間分割能有效避免閱讀時的不利因素。開架閱讀結合沿窗閱讀,保證個人隱私,避免與他人過多交叉;休閑閱覽區,豐富閱覽體驗,通過設置不同尺度的小組討論室和個人學習室,提供不同的家具組合方式,體現出現代學術與社交活動的交叉互動,滿足多種不同方式的工作和學習需求。
屋蓋實景 ©香港湃昂國際設計事務所
屋蓋設計
北側屋蓋外部全采用鋁板的材質,每塊鋁板都是平行四邊形,通過平面上角度的變化形成鋸齒形的平面效果,在陽光下形成豐富的光影變化。細節設計上,在每兩組鋁板相交的陽角處設置長短不一的LED燈帶,兩塊鋁板交接處預留豁口,豁口處設置透明亞克力板內藏LED燈帶。夜晚形成如瀑布般的效果。
屋蓋內側頂面鋁板分布
大屋蓋的內部,我們采用“星空”的概念來隱喻辛辛學子探索未知世界。屋頂的橢圓形洞口如同星系的中心,星光環繞中心形成星系的圖案,越靠近洞口星光越密集。為了完成這樣的設計意圖,我們采用“花瓣”和“圓形”的母題,通過疏密的變化,設計了四種圖案在穿孔鋁板上面,通過精心的設計布置,形成了“星云”般的圖案。所有鋁板都是以2000mmX1200mm的長寬尺寸作為標準件進行拼接,其中包括四種圖案的穿孔鋁板與一種不開孔的實面鋁板,共五種圖案組成北側屋蓋內表面的圖案。
屋蓋內側頂面鋁板分布
四種穿孔板圖案按照開孔率的疏密程度分為ABCD四種圖案。在此基礎上又設置A’B’C’D’四種圖案相應旋轉180度的穿孔鋁板,共計9種鋁板進行分布。燈光的布置上面,盡量均布在穿孔板背后,穿孔率越高的鋁板,背后設置的燈珠越多。在施工重,我們讓工人隨機將每一款穿孔鋁板按正排或者轉180°排布,避免了大量的重復圖案對視覺的影響,得以在夜晚燈光亮起的時候自然的形成星光傾斜而下的效果。
©香港湃昂國際設計事務所
項目圖紙
北側空間概念分析圖
主入口分析圖
首層平面圖
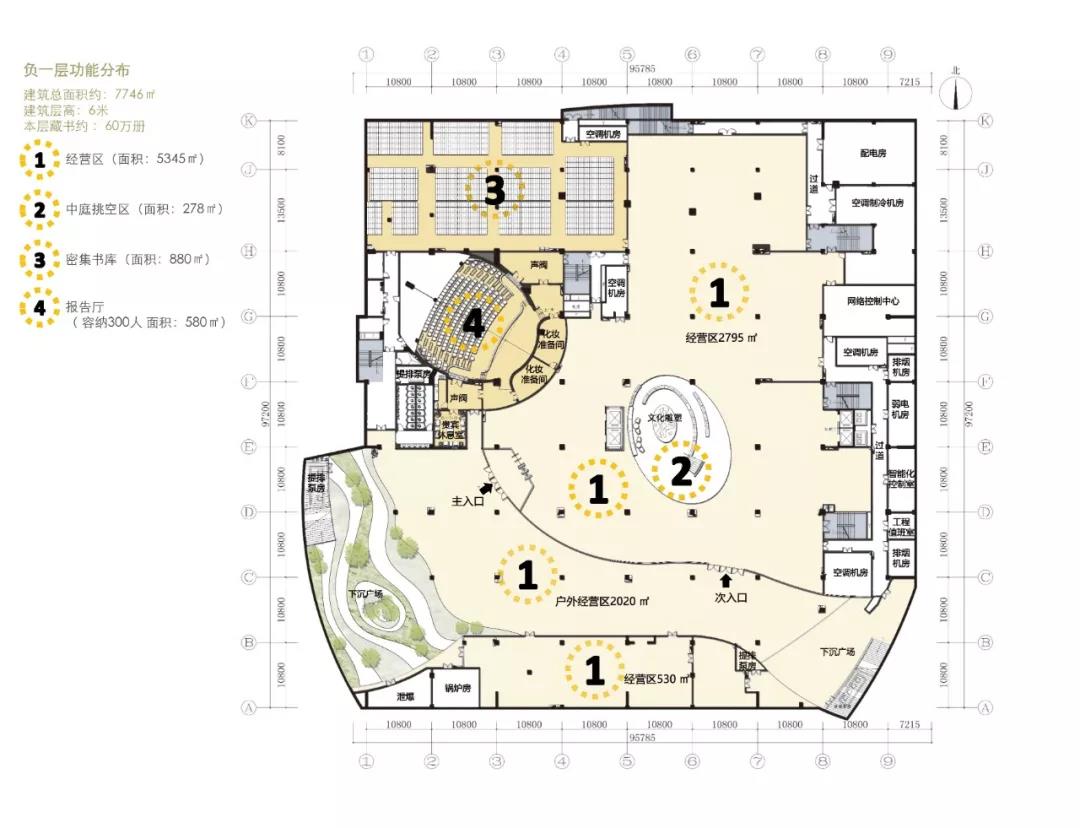
負一層平面圖
一層平面圖
二層平面圖
三層平面圖
四層平面圖
北立面和南立面圖
東立面和西立面圖
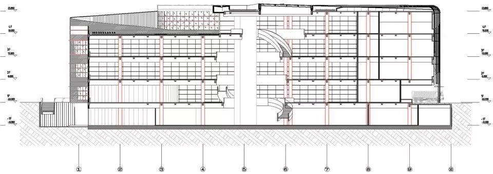
剖面圖
剖面圖
屋蓋立面圖
項目信息
建筑師:湃昂國際建筑設計顧問
地址:重慶市大學城,重慶,中國
主創建筑師:徐子蘋
設計團隊:徐子蘋,吳劍釗,李煦,羅磊鑫,王佳晨,向鈞達
建筑面積:28064.29 平方米
項目年份:2015
建筑層數:地上4層, 地下1層
.END.
注:本文轉載自建日筑聞,版權歸原作者所有。

