神秘樂園 - 村莊里的“村莊” – 北沙幼兒園,江蘇
作者:gooood谷德設計網 來源:gooood谷德設計網
近年來,江蘇省率先開始在全省推動高質量學前教育的發展,包括教育資源一度欠缺的鄉村地區。2015年,阜寧縣政府委托Crossboundaries為其下轄的北沙村設計一所中心幼兒園,以緩解當地幼教資源不足的問題。
▼幼兒園呼應了江蘇平原鄉村的原生肌理 ©Wu Qingshan 吳清山
阜寧縣背倚蘇北平原,面臨蘇中水網,自古崇文重教、尊道厚德,素有“江淮樂地”之稱。如今,四時變化的農事仍是當地人主要的生產、生活內容之一。廣闊的沃野托舉起其上星羅棋布的房屋和其他人工建造物。
▼農田環境之中的幼兒園 ©Wu Qingshan 吳清山(1); ©Hao Hongyi 郝洪漪(2)
前往北沙的一路上,窗外是一望無際的豐饒平原,薄霧籠罩的地平線偶爾被成排的樹木和房屋中斷。這就是江蘇農村大體的面貌:平坦、無邊的風景,正如其上的天空一樣廣袤無垠。
而一旦你步入村中,一馬平川的感覺立時就被消解。隨處可見的高大樹木將天空與田野切割成拼貼畫般的背景;通過這些天然“柱廊”走向村中房舍時,會有桃源探秘般的新奇感。村莊周邊的林木,同那些坡頂、磚墻的兩三層農舍搭配起來,是那么和諧。如此景致,就成為Crossboundaries設計的北沙幼兒園生長、扎根的微觀環境。
▼列車窗外典型的江蘇鄉村肌理 ©Hao Hongyi 郝洪漪
“迷你村莊”
本次設計的關鍵點,是對尺度的把控。我們設計的組團式建筑,用若干“小屋式”結構分解了幼兒園所需的總建筑體量,并以一片多功能的戶外活動場將每棟“小屋”集結在一起。這種室內外密切銜接、高度混合的空間關系,不僅呼應了鄉村的原生肌理,對兒童早期教育而言更是十分重要的場所環境。
正如“中國現代幼教之父”陳鶴琴所言:“大自然、大社會都是活教材”,兒童需要在與自然和社會的直接接觸中、在親身觀察中獲取經驗和知識。而空間的設計者要為孩子們營造這種環境,創造這些機會。
▼軸測圖
▼用若干“小屋式”結構分解總建筑體量 ©Hao Hongyi 郝洪漪
▼設計塑造兒童與自然親密接觸的空間 ©Wu Qingshan 吳清山
在附近村鎮考察時,我們也曾見到很多典型的“教學樓式”幼兒園——隔絕環境、局限視野的大體量高層立方體,以及高度重復的單調立面,將一種相對孤立的“都市邏輯”植入了鄉村既有的空間語境,像個外來的闖入者,而不是令孩子們感到熟稔、自在和溫暖的“第二家園”。當地眾多留守兒童的父母同當今全國各地的鄉村青壯年一樣,選擇季節性地外出打工,錯過了自己孩子成長的大部分時光。所以對于這些孩子而言,幼兒園確實就是他們的第二個家。
▼設計理念
▼建筑成為令孩子們感到熟稔、自在和溫暖的“第二家園” ©Mini Liu 劉敏玲(1); ©Wu Qingshan 吳清山(2)
這座“小屋式”幼兒園更像縮小版的村莊,親切的尺度帶給孩子們自小熟悉的感覺;趣味的空間關系又帶來新奇感,鼓勵孩子好奇探索。來到幼兒園,他們或許首先會注意到中央的主活動場;隨后,當他們漫步到“小屋”之間,就會發現房前屋后到處都是小小的神秘樂園,可以自由自在地學知識或捉迷藏,就像在村里一樣。
▼房前屋后到處都可以學知識或捉迷藏,就像在村里一樣 ©Wu Qingshan 吳清山
▼幼兒園不僅是孩子的樂土,也成為村民喜歡的社交場所 ©Hao Hongyi 郝洪漪
探索之樂
立面材料選用了本地隨處可得的老青磚和白色灰泥,每棟“小屋”的面貌都不盡相同。在房屋的底層開設了多處相互對望的方窗,為每棟建筑與每處小庭院之間建立起視覺聯系,移步換景,將別處的活動引入視野,形成通透、有趣的室內外關系。
▼組團空間概念
▼立面材料選用了本地隨處可得的老青磚和白色灰泥,每棟“小屋”的面貌都不盡相同 ©Hao Hongyi 郝洪漪
▼每棟“小屋”底層開設了多處相互對望的方窗,形成通透、有趣的室內外關系 ©Mini Liu 劉敏玲
二層步道的功能,不僅連通著各個區域,也是孩子們的活動平臺。上到二層平臺,孩子們的目光會立刻被起伏的坡屋頂吸引,忽有置身山谷的感覺,樹冠也幾乎觸手可及。視角的小小轉變,就能使孩子們換一個角度去觀察自己周圍的一切,拓展他們日常的空間體驗。
▼起伏的屋頂如置身山谷,讓孩子們換一個角度去觀察周圍 ©Wu Qingshan 吳清山
▼起伏的坡屋頂 ©Hao Hongyi 郝洪漪
▼屋脊層疊 ©Hao Hongyi 郝洪漪
▼室內空間 ©Wu Qingshan 吳清山
自2018年建成以來,這兩座幼兒園不僅是孩子們的樂土,亦成為村中居民喜歡的社交場所。父母或祖父母們聚集在此,在接送孩子之余,有了更多融洽的交流。
▼晚霞掩映下的幼兒園 ©Wu Qingshan 吳清山
▼夜景 ©Mini Liu 劉敏玲(1); ©Wu Qingshan 吳清山(2)
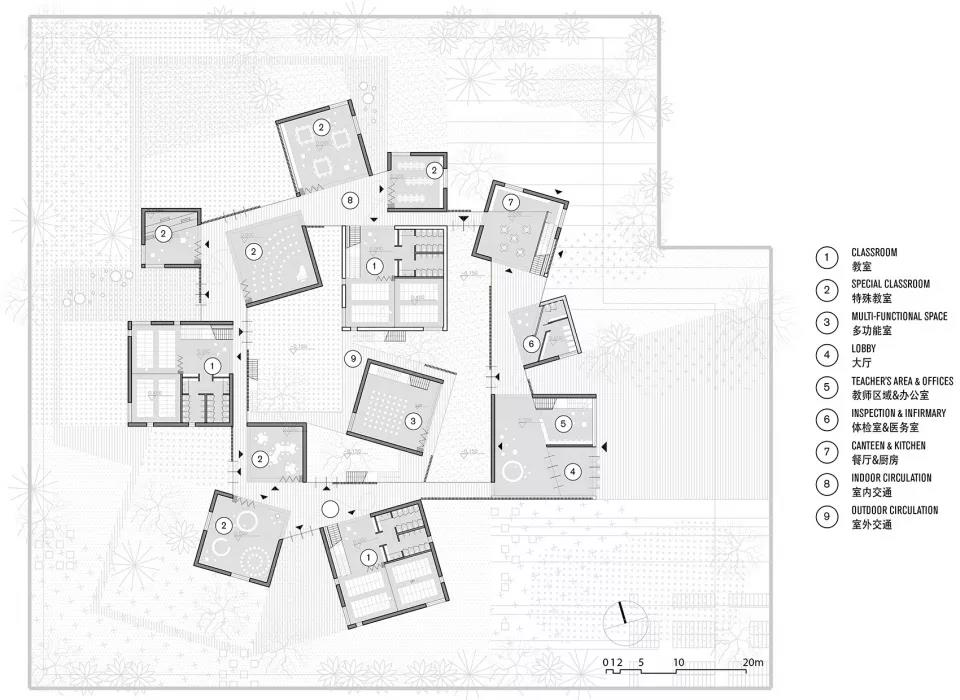
項目圖紙
▼一層平面圖
▼二層平面圖
項目名稱:江蘇省北沙幼兒園
設計方:Crossboundaries,北京
完成時間:2018年8月
項目負責人: 藍冰可(Binke Lenhardt),董灝
設計團隊:Tracey Loontjens,Alan Chou(周業倫),Andra Ciocoiu,郝洪漪
項目地址:江蘇省,阜寧縣
建筑面積:2815.4 平方米
.END.
注:本文轉載自gooood谷德設計網,版權歸原作者所有。

