回歸的理由 - 藍田縣九間房鎮油坊坪村景觀設計,西安
作者:gooood谷德設計網 來源:gooood谷德設計網
油坊坪村隸屬藍田縣九間房鎮,與玉山隔灞水相望。地處秦嶺北麓,七十二峪之流域。依群山相夾之勢,附流域水畔。村落地處山區,每年盛夏時節,在此聚集了大量周邊市縣前來避暑的人群,常日卻鮮有問津。村內以留守人群為主,勞動力流失嚴重。
2017年,我院為響應國家扶貧攻堅工作,在西安市政府、藍田縣政府與中國建筑西北區域總部的共同帶領下,以技術扶貧的方式,嘗試探討景觀這一手法對于大秦嶺地區鄉土景觀的傳承與新解。
項目概覽-溪臺
項目概覽-長亭區域
回歸的理由——竹影人家起炊煙
村落內各類資源呈現單一、無序的組織方式,傳統風貌和旅游資源亟待有效挖掘。究其原因,村域衰落問題的本質正是人的問題。缺乏回歸的動力與就業機會是造成村落活力缺乏的誘因。因此,同時給予村民回歸的理由與游客鄉愁的記憶,成為了本次設計的初衷。
原有風貌及施工過程
以回歸的理由為契機,首先應提供文化傳承與延續記憶的實物載體,即:可供聚集與交流的功能空間。設計以具有通透性的半室內場所,形成具有限定感的公共場所,并形成可以引導視線的觀山界面。
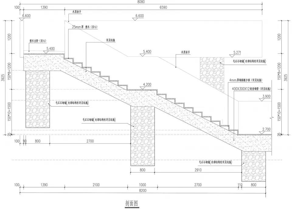
長亭立面以質樸的石材砌筑,植根于秦嶺山間的原始與粗獷風貌。長亭一側的扶梯則構成亭廊與田地的聯系,形成忠于傳統生活與勞作方式之間互通的空間結構。
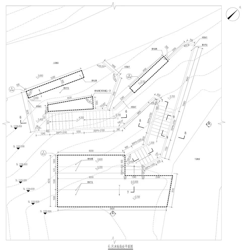
景觀設計平面
與景觀融為一體的長亭
四季長亭景色,雪景
四季長亭景色,夏景
空間的重塑——疏林外一點炊煙
原村委會廣場是村落內唯一的開敞空間,但功能單一,幾乎沒有村民在此停留。且原有坡道存在極大的安全隱患。設計中,將村域主入口的形象展示結合人群活動功能共同考慮,首先設置引導性擋墻,形成形象鮮明的入口空間,承接外來人流。并豎立村標,提供從各個方向均可輕易識別的村落標識。
新建亭廊,為村民嘮嗑的舊習提供更為舒適的空間。并以臺階結合樹池化解原場地的陡坎。這一地形與亭廊的銜接,形成了變化豐富,參與性強的集約空間。另外,保留部分原場地的記憶,提供了更多的空間可能性。
村標的設計來源于油坊坪村常見的煙囪,以“炊煙裊裊”的深山村落意向,呈現出一副典型的農耕文明鄉風俚俗畫,靜的是百年老屋,動的是炊煙升騰,尤顯薪火相傳萬家燈火,正是萬古流傳的寧靜溫馨的生活常態。
長亭、臺階、樹池、村落標識設計分析
臺階結合樹池化解原場地的陡坎
地形與亭廊的銜接,形成了變化豐富,參與性強的集約空間
竹窗、木格柵與毛石砌墻
臺階及樹池細節
長亭內部空間
場地的新解——山回路轉不見君
村落原有兩條鄉道之間的分流點高差較大,人行不便。故以曲折回廊的形式設計下行步道,使用與踏步相統一的護欄,在極度野生自然的語境下,置入一處利落穩健的現代筆觸。
山間幽徑,以平臺銜接一側的山溪,形成具有差異化體驗的人行步道和觀景平臺。山中生活,在途中偶遇一灘溪水,這種片刻的停留,是人與山之間最為平和真實的相處之道。
油坊坪村的探索與實踐,其目的不僅僅是針對村落衰敗現狀而解決問題,更試圖想以人文關懷乃至社會學的角度來解析村落文化與空間關系,并重塑符合文脈傳承所需求的解答。
以曲折回廊的形式設計下行步道
長亭區域夜景
模型
效果圖
溪臺平面
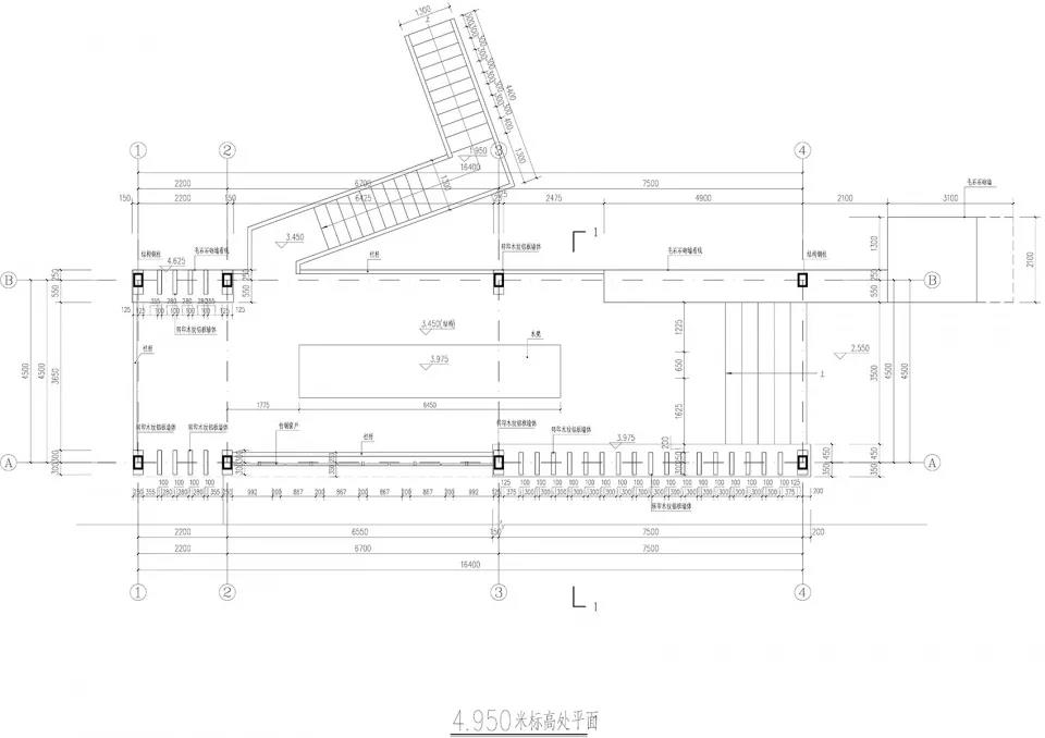
長亭平面
溪臺立面
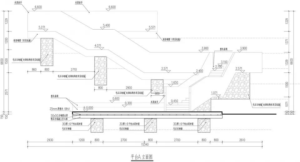
長亭立面
溪臺剖面
臺階平面
項目名稱:藍田縣九間房鎮油坊坪村景觀設計
項目位置:中國陜西省西安市藍田縣九間房鎮
設計時間:2017.12
項目規模:5000 m2(入口區)
項目狀態:在建
項目業主:西安市政府、中國建筑西北區域總部(中建絲路投資集團
設計單位:中國建筑西北設計研究院有限公司 建筑裝飾與環境藝術工程設計院
景觀主創設計師:佟陽
景觀設計團隊:夏飛、劉鈺昀、任紫嫣、李佳陽、趙曉靜、鄒林諭、張藝馨、郭文昊、王潔玨、程璇、吳雨堯、趙強、鞏得強、雷思聰、白東昊、武越、閆更、楊建飛
.END.
注:本文轉載自gooood谷德設計網,版權歸原作者所有。

