景景相連 - 中集智谷集裝箱總部辦公樓,東莞
作者:gooood谷德設計網 來源:gooood谷德設計網
中集集裝箱總部辦公樓位于東莞市松山湖國家級高新開發區南部區,中集智谷西南部,緊臨松山湖及公共綠地,自然條件優越。地塊東側緊鄰南山路,南側靠近青田路,是城市道路的交叉口的重要空間節點。
基地西側不遠處為松山湖景,風景資源特征明顯?;馗卟铒@著,植被良好,呈現東高西低的地形變化特征??偛繕瞧訄@區一隅。建筑形態呈指狀,西側打開,有效延長建筑長度,最大限度吸收松山湖的自然景觀,也使得建筑成為自然的“對景”, 所謂“景”上添花。
中集集裝箱總部辦公樓概覽 ©張超
建筑形態呈指狀,西側打開,最大限度吸收松山湖的自然景觀 ©方健
建筑緊臨松山湖及公共綠地,自然條件優越 ©方健
如何梳理地形?
解決建筑如何落地。
概念生成
東南側建筑體量集中,嵌入高差地形,縫合場地高差;北側量體完全架空,使得延綿起伏的地面景觀延伸進架空區域,與東南側首層建筑量體融為一體;西側場地放置大小不一,高低錯落的“建筑物體”,既是結構的支撐,有效區分場地空間領域,同時為區域人員提供了有頂遮陽、開放的南方公共空間。
東南側建筑體量集中嵌入高差地形,北側量體完全架空 ©張超
開放通透的體量 ©張超
穿插體量形成不同的過渡空間 ©張超
延綿起伏的地面景觀延伸進架空區域 ©張超
高低錯落的“建筑物體”是結構的支撐,有效區分場地空間領域 ©張超
建筑為區域人員提供了有頂遮陽、開放的南方公共空間 ©張超
如何與風景建立關聯?
使得看與被看都能成為“風景”。
功能組織
設計控制14米進深的“辦公島”為單元,設置內開啟扇,保證建筑良好的通風采光效果;各個與辦公相關的配套功能與垂直交通一并形成“活力核心”,串聯各個“辦公島”量體。
折疊幕墻分析
立面保持建筑良好的通風采光效果 ©張超
項目圖紙
場地平面圖
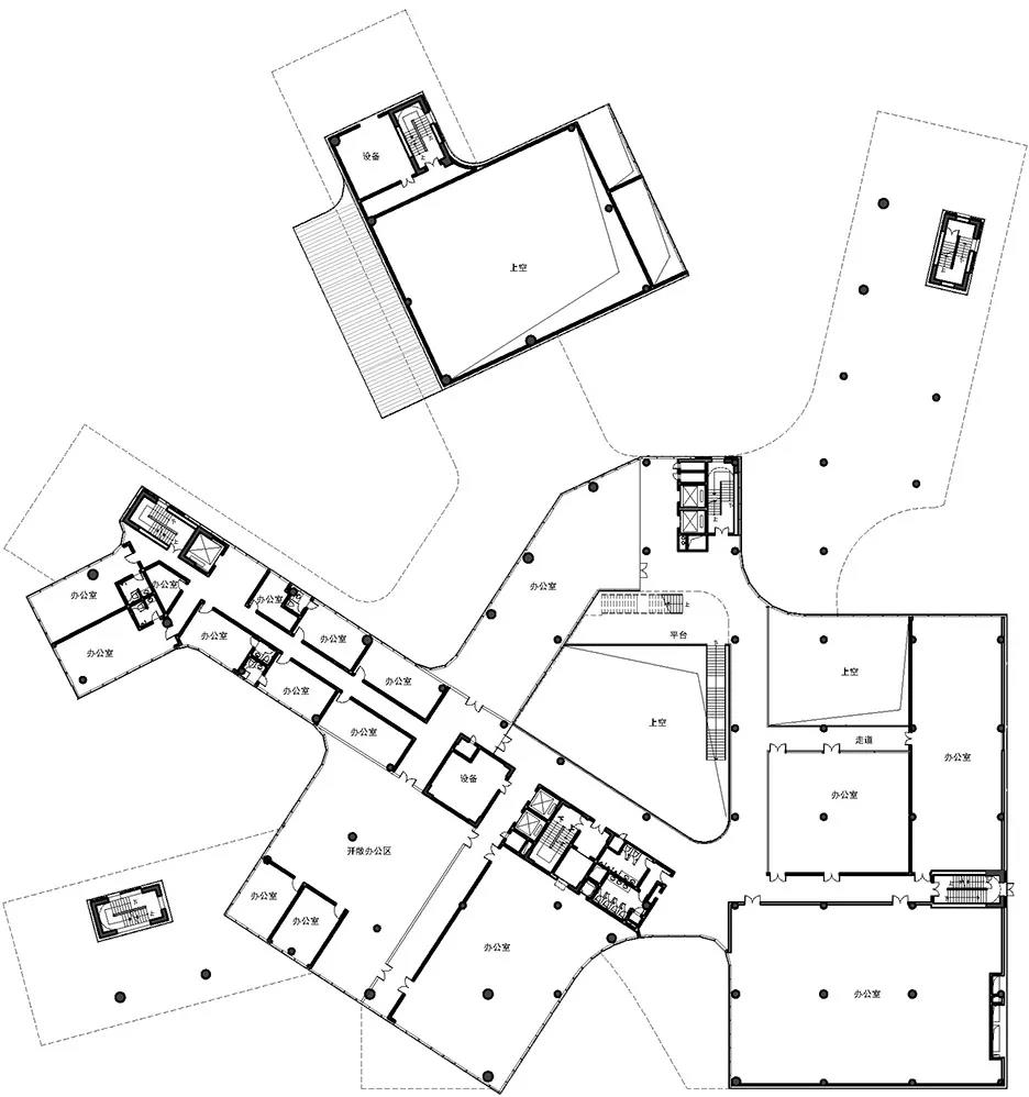
一層平面圖
二層平面圖
屋頂平面圖
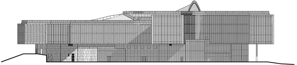
立面圖
剖面圖
項目名稱:中集智谷集裝箱總部辦公樓
項目設計 & 完成年份:2013~2015
主創:朱雄毅
團隊成員:李昕、黃虹、李璐瑛、陳潔、葉子菁、黃薇、吳玉華、吳文杰
項目地址:中國、廣東、東莞、松山湖
建筑面積:2.85萬平方米
攝影版權:張超、方健
客戶:東莞中集創新產業園發展有限公司
.END.
注:本文轉載自gooood谷德設計網,版權歸原作者所有。

