扎哈為南京打造的地標雙塔 - 南京國際青年文化中心 / Zaha Hadid Architects
作者:gooood谷德設計網 來源:gooood谷德設計網
南京國際青年文化中心位于南京市城市中軸線與長江江岸的交界處,優越的地理位置四通八達, 連接起城市商業中心與自然景觀;這座地標性建筑包括兩座總面積為258,500平方米的塔樓、一座106,500平方米的會議中心、100,000平方米的地下室區域、一個公共廣場和一座步行橋,無論從哪個方向看,自然景觀總相宜。
以單一線條入手,打造出流暢的線狀結構特征,貫穿青年文化中心位于中央商務區的始發點與江心洲休閑區,二者儼然“一脈相承 ”。
建筑概覽 ©Hufton+Crow
南京國際青年文化中心占地5.2公頃,建筑面積為46.5萬平方米。兩座塔樓中,較高的一座高度為315米(68層),包含了辦公區域和Jumeirah酒店。較低的一座高度為255米(59層),包含了一家四星級的酒店。
這兩座塔樓共同享有一個5層高的多功能裙樓,文化中心便坐落在此。文化中心包括四個獨立的體量(會議廳、禮堂、多功能廳和訪客區),并圍繞著中央庭院布局。會議廳可容納2100人,同時配有多功能舞臺,可用于舉辦會議和文化活動。禮堂可以容納500位觀眾,其設計在聲學效果方面進行了優化,能夠為管弦樂演奏和各類表演提供高質量的環境。
兩座塔樓共同享有一個5層高的裙樓,文化中心便坐落在其內部
©Hufton+Crow, courtesy of Jumeirah
Hotel
河岸遠景 ©Hufton+Crow
從步行橋望向建筑©Hufton+Crow
文化中心圍繞著中央庭院布局 ©Hufton+Crow
入口廣場©Hufton+Crow
首層中庭空間 ©Hufton+Crow
文化中心大廳 ©Hufton+Crow
大堂接待區©Hufton+Crow
會議廳 ©Hufton+Crow
禮堂 ©Hufton+Crow
屋頂泳池 ©Jumeirah Hotel
本項目流線型設計的靈感來自迄今已有近1,600年歷史起源于南京的中國傳統提花絲織工藝品,云錦。云錦以其“妝金,妝銀”以金線、銀線織造而享譽盛名。而南京國際青年文化中心總平面規劃正是受到這一織物靈動、流暢與交織特色的觸動,在這一地標性建筑中采用了類似的建筑語言,以一單程線條連接起中央商務區(CBD)周邊的建筑、青奧村、濱江公園以及江心洲 ,呈現出一 幅連續、開放和動態的青奧會背景卷軸。整座建筑的語匯富含依傍和動態模式,象征著流水的靈動與河沙的沉淀,而河西新城也正在在此自然環境中崛起。
流線型設計的靈感來自起源于南京的傳統提花絲織工藝品云錦 ©Hufton+Crow
立面細部 ©Hufton+Crow
南京國際青年文化中心是中國首個以“從上至下/從下至上”(上下兩個方向同時施工)的方式完成的塔樓項目。本項目時間周期之緊迫,對完成質量的要求之高以及設計語言之復雜,決定了在此過程中始終堅持參數化設計,并運用軟件工程工具是達成上述要求并且及時交付本項目的重中之重。
該建筑幾何形體外表皮的達成正是展現這一設計工具優勢的最好佐證:復雜的曲面造型和蜂窩式凹進開啟扇遍布整個建筑幕墻,僅會議中心就擁有 85,000 平方米的外表皮,涉及 12,500 塊獨立板塊和 3,400 個窗戶,沒有參數化設計是很難想象的。基于BIM(建筑信息模型)方面的專業知識和豐富的施工和管理經驗,整個項目的周期被縮短至34個月,而現場施工僅花費了18個月的時間。
復雜的曲面造型和蜂窩式凹進開啟扇遍布整個建筑幕墻 ©Hufton+Crow
由纖維混凝土板構成的長菱形網格結構在為立面賦予動感的同時也為室內提供了采光 ©Hufton+Crow
街道視角 ©Hufton+Crow
技術圖紙
建筑信息模型示意 ©Zaha Hadid Architects
3D整體模型 ©Zaha Hadid Architects
3d模型細部 ©Zaha Hadid Architects
一級鋼結構模型 ©Zaha Hadid Architects
剖面模型 ©Zaha Hadid Architects
3d剖面模型 ©Zaha Hadid Architects
總平面圖 ©Zaha Hadid Architects
首層平面圖 ©Zaha Hadid Architects
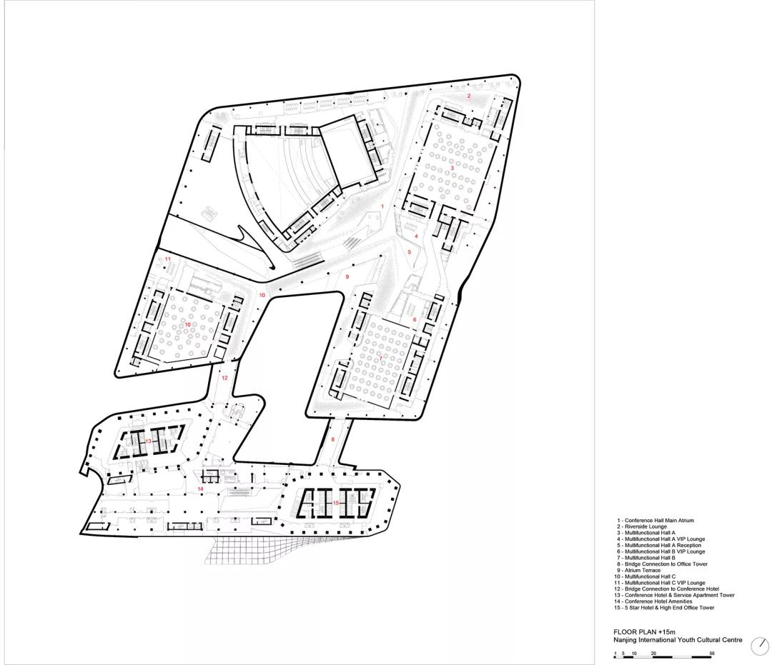
+15層平面圖 ©Zaha Hadid Architects
南立面圖 ©Zaha Hadid Architects
東立面圖 ©Zaha Hadid Architects
會議中心西立面圖 ©Zaha Hadid Architects
剖面圖 ©Zaha Hadid Architects
Architects: Zaha Hadid
Architects
Design: Zaha Hadid, Patrik Schumacher
ZHA Project Director: Nils-Peter Fischer
ZHA Consulting Associate: Cristiano Ceccato
ZHA Project Architect: Shao-Wei Huang
ZHA Lead Facades & Envelope: Shao-wei Huang, Lydia Kim
ZHA Lead Conference Centre: Melike Altinisik
ZHA Lead Towers & Podium: Garin O
’Aivazian
ZHA Lead Interiors: May-Jinqui Qin
ZHA Lead Landscape & Urbanism: Carolina Lopez-Blanco
ZHA Lead Site Supervision: Ed Gaskin
ZHA Competition Team: Garin O’
Aivazian, Jalal El-Ali,
Kyla Farrell, Maria Tsironi, Matthew Richardson, Melike Altinisik, Meng Chan
Tang, Mirco Becker, Mostafa El Sayed, Paolo Gamba, Saman Saffarian, Shajay
Bhooshan, Shao-wei Huang, Shyamala Duraisingam, Spyridon Kaprinis, Suryansh
Chandra, Yevgeniya Pozigun
ZHA Project Team: Alexandros Kallegias, Ashwin Shah, Carlos Michel-Medina,
Carlos Piles Puig, Chao Wei, Charbel Chagoury, Christy Yin, David Doody, Duarte
Reino, Elena Scripelliti, Emma Chen, Ermis Chalvatzis, Eugene Leung, Frenji
Koshy, George Frenji, Ho-Ping Hsia, Hongdi Li, Igor Pantic, Jamie Mann, John
Randle, Julia McLeod, Katharina Hieger, Konstantinos Mouratidis, Leonid
Krykhtin, Leo Wu, Mattia Gambardella, Michael Grau, Michael Sims, Mostafa El
Sayed, Mu Ren, Nassim Eshaghi, Natassa Lianou, Nicholette Chan, Niqui
Berkowski, Patryk Ruszkowski, Sebastian Andia, Shajay Bhooshan, Soomeen Hahm,
Spyridon Kaprinis, Vincent Nowak, Yuchen Zhang, Yue Shi, Yun Zhang
ZHA Site Supervision Team: Juan Liu, David Chen, Liyuan Zhang, Vincenzo
Cocomero, Xi Wang, Xin Ji, Yan Geng
Consultants:
Architect of Record: China Architecture Design and Research Group
Structural Engineer: BuroHappold Engineering, China Architecture Design and
Research Group
MEP Engineer: BuroHappold Engineering, China Architecture Design and Research
Group
Vertical Transportation Consultant: Dunbar and Boardman
Fa?ade Engineer: BuroHappold Engineering
Landscape Architect: SWA Group
Lighting Consultant: Brandston Partnership Ltd
Acoustics Consultant: Zhejiang University, China
Theatre Consultant: China Art and Technology Institute
Main Contractor: China State Construction Engineering Corporation Division 8,
China State Construction Engineering Corporation Division 3
Data:
Tower1:255 m
Tower 2: 315 m
Conference Hall: seats 2,100
Auditorium: seats 500
Hotels: 136,000 m2
Conference Centre: 106,500 m2
Offces: 122,500 m2
Basement: 100,000 m
.END.
注:本文轉載自gooood谷德設計網,版權歸原作者所有。

