荷蘭UTRECHT應用科學大學教學樓 / SHL
作者:gooood谷德設計網 來源:gooood谷德設計網
荷蘭烏特勒支應用科學大學(HU)成立于1995年,由幾所先前相互獨立的機構合并而成,截止至四年前,學校廣泛分布在荷蘭烏特勒支(Utrecht)境內的30多座建筑中。如今,學校十分希望在Utrecht科學園校區建造五所相鄰的建筑,為各個學科創造一個集中交流的機會。
而Schmidt Hammer Lassen Architects所設計的這座教學樓,便是這五棟即將建成的教學樓中的最后一棟。HU15號教學樓總建筑面積22,310平方米,包括了經濟學、管理學、信息通信技術、以及媒體傳播等八個學院。
項目概況
“HU教學樓設計項目實際上是一個空間設計,但這個空間設計充滿了挑戰,因為每天有超過5800位師生和游客穿梭在這座占地面積3000平方米的大樓中,這給我們帶來了難題,” Schmidt Hammer Lassen Architects位于荷蘭的合作伙伴兼設計總監Kristian Ahlmark如是說。
“為了建造一個社交空間,并使自然光新能夠照進建筑中心的最深處,我們將會議室和自習室繞著中央中庭設置。這種設計方式使教學樓好似一個一層連接著城市廣場的垂直城市空間。隨后,這部分空間與大尺度的電梯連接成一個整體,各個樓層之間川流不息的人群也成為了空間體驗的一部分。
鳥瞰圖
建筑外觀
顏色連接空間
室內設計采用白色、灰白色和木質色調。三個橫跨了中庭的黃綠色扶梯不僅豐富了室內的顏色,更突出了其空間的干凈和淡雅。Schmidt Hammer Lassen Architects對顏色的創新運用還表現在建筑的外立面上——外立面采用中性色的陽極氧化鋁表皮,展現出一種顏色相互融合的效果,給人一種柔和的拼貼空間之感。各種顏色逐漸的相互融合也代表了室內布局的交織設計,從而使學校的八大院系能夠在室內相互交叉。
外立面采用中性色的陽極氧化鋁表皮,給人一種柔和的拼貼空間之感
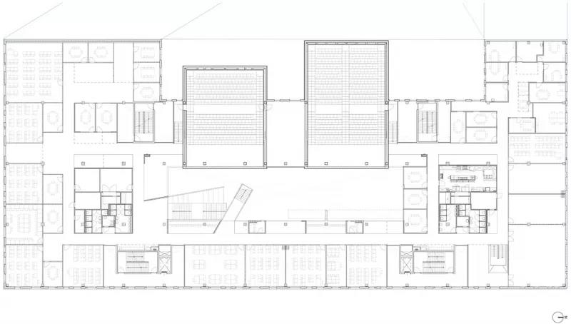
建筑東側沿著Bolognalaan大街布置,從這里看向教學樓,可以發現幾處大面積的不透明建筑表皮,這些空間包含著兩個可容納90人的階梯教室、一個傳媒學院的高級電視工作室和一個會議中心。而在建筑的西側,建筑師設計了一個全新的室內庭院,朝向鄰近的學生住宅區。這部分體量逐漸向東立面延伸,使其自身四通八達,最終與現有建筑相連。位于二層的兩個大型報告廳突出于外墻并延伸至庭院內部,為其下方的自行車停放區提供了遮擋。
立面的不透明建筑表皮處包含著階梯教室、電視工作室和一個會議中心
報告廳延伸至庭院內部,為其下方的自行車停放區提供了遮擋
建筑師還在外立面和室內樓梯中使用了鋁合金覆層的云紋圖。這些云紋圖不僅豐富了建筑材料,還連接了室內外空間。樓梯上的多孔板對空間有著聲學意義,其板面下是吸音材料,可以降低教學樓中人來人往的噪聲。建筑采用種植屋面,并設置露臺,為學生、教職工和游客提供了一個室外休息空間。
建筑師在外立面上使用了鋁合金覆層的云紋圖
立面細部
開放的學習空間
從主入口進入建筑,一個清新明快的垂直空間便展現在眼前。四通八達的樓梯、扶梯和室內天橋交織成網,橫亙在頭頂上。
從主入口進入建筑,一個清新明快的垂直空間展現在眼前
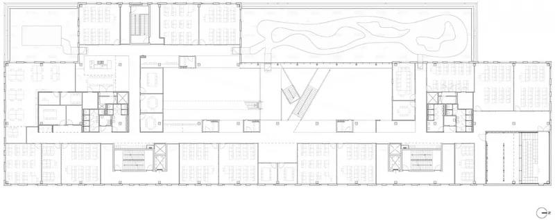
在建筑的首層,整面的玻璃墻向來往的人流展示了教育活動,消除了室內外的邊界。同時,這種通透性設計也被運用在了首層兩個報告大廳的設計中。這兩個報告大廳分別可以容納200和260人,由整片的玻璃墻和類似車庫門的伸縮墻限定而成,伸縮墻可以完全打開,加強了其與主入口大廳之間的聯系。首層平面還包含了一間由學生運營的咖啡廳、其他餐飲場所、位于南側的技術設備用房,以及內部設有充足座位的非正式會議空間等。
建筑首層的玻璃墻消除了室內外的邊界
室內設計采用白色、灰白色和木質色調
樓梯、扶梯和室內天橋在中庭交織成網,橫亙在頭頂上
沿著中庭向上走,每個學院都設有一個專門的學生和教職工中心,分布在上部的六層空間內。這些辦公中心是每個學院的核心,內部均設有學院的專屬空間和設施,以便教職工和學生碰面和交流。
橫跨了中庭的黃綠色扶梯強調了室內色調
這座教學樓里還分布著超過60間的教室,以及兩個均可容納90人的小型階梯教室和20間小組討論室,上述空間皆由所有學院共享。沿著中庭布置的木質方盒子空間則是集中工作間,適于一到兩人交流和學習使用。桌面位于??粗型サ膲Ρ诤竺?,整個設計展示了空間的高效利用。
沿著中庭布置的木質方盒子空間是集中工作間,適于一到兩人交流和學習使用
從教室內部向外看中庭
這座外觀簡潔的八層教學樓不僅模糊了建筑與周邊環境之間的實際邊界,同時用大膽的圖案線條勾勒出一個醒目的建筑體量。為了方便2018年的秋季教學活動,HU15號教學樓已于9月3日正式向師生開放。
樓梯******
室內仰視******
技術圖紙
總平面
首層平面圖
二層平面圖
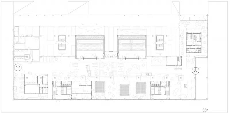
六層平面圖
屋頂平面圖
B-B剖面圖
手繪草圖
Client: HU University of
Applied Sciences
Lead Architect: Schmidt Hammer Lassen Architects
Architectural Engineering: k-support
Contractor: Strukton Workshphere & Besix
Structural Engineer: IMd
M&E: Deerns, W4Y
Acoustics and Fire Safety: Peutz
Sustainability: W4Y
Building Area: 22,310 m2
Competition: 1st prize in an international competition, 2015
Status: Complete, 2018
Photography: Adam M?rk
.END.
注:本文轉載自gooood谷德設計網,版權歸原作者所有。

