夯土磚墻幼兒園 / Brenas Doucerain Architectes
作者:ArchitectureDaily 來源:ArchitectureDaily
© studio erick saillet
© studio erick saillet
項目地址位于市中心的密集城市肌理中,是現有學校組團的院落。為兒童預留的室外場地被現存的L形的朱爾·費里(Jules Ferry)的建筑限定,場地中有兩株優美的懸鈴木。
© studio erick saillet
© studio erick saillet
當地的傳統鄉土建筑是由夯土建造而成。沿著死路一側,現在已經被拆除的外墻面就是用這種當地材料建造的。學校組團可追溯至19世紀,為石造建筑,與市政廳隔街相望。新的幼兒園輕柔的嵌入夯土磚墻和懸鈴木之間,融入現存的密集城市肌理。
© studio erick saillet
© studio erick saillet
幼兒園輕微偏斜避讓院落中的懸鈴木。沿死路一側建造的夯土墻形成建筑的基座,墻體利用了現場的粘土和黃土資源,與古老墻體的材料建立對話。
© studio erick saillet
©studio erick saillet
在院落一側,單層的木結構背靠夯土結構,提供了首層的有頂空間和二層平臺額外的戶外場地,在這里兒童可以在教師的陪同和監督進行各種教育活動。這也有助于緩解兒童休息時間里院落內的擁擠狀況。在兩棵懸鈴木的位置,建筑變形以避讓根系,同時又延伸入樹冠之下以享受樹蔭。建筑應用當地的實木,結構原則簡明,構件相互堆放,并置,疊加,如同兒童的搭建游戲,東側立面的豎向木構件發揮著遮陽板的作用。
© studio erick saillet
© studio erick saillet
空間依托自由伸展的長條形體量進行組織,封閉了院落的北側邊界,同時盡可能少地遮擋自身表面積。內部功能的單向布置原則使流線空間可以獲得自然采光。教室和活動區依據產生噪音的大小相互疊加;更衣室在食堂之上,圖書館在教室之上,大班在小班之上,休息室則在最上部。
© studio erick saillet
© studio erick saillet
效果圖
總平面圖
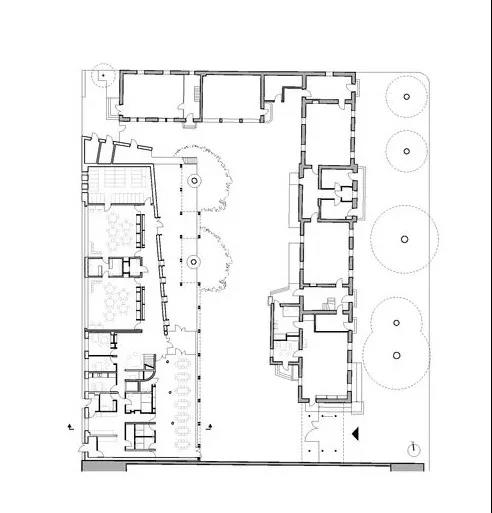
地面平面圖
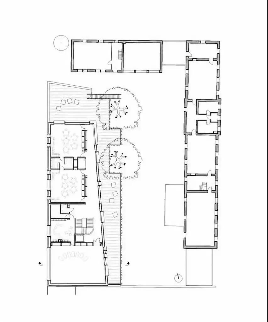
一層平面圖
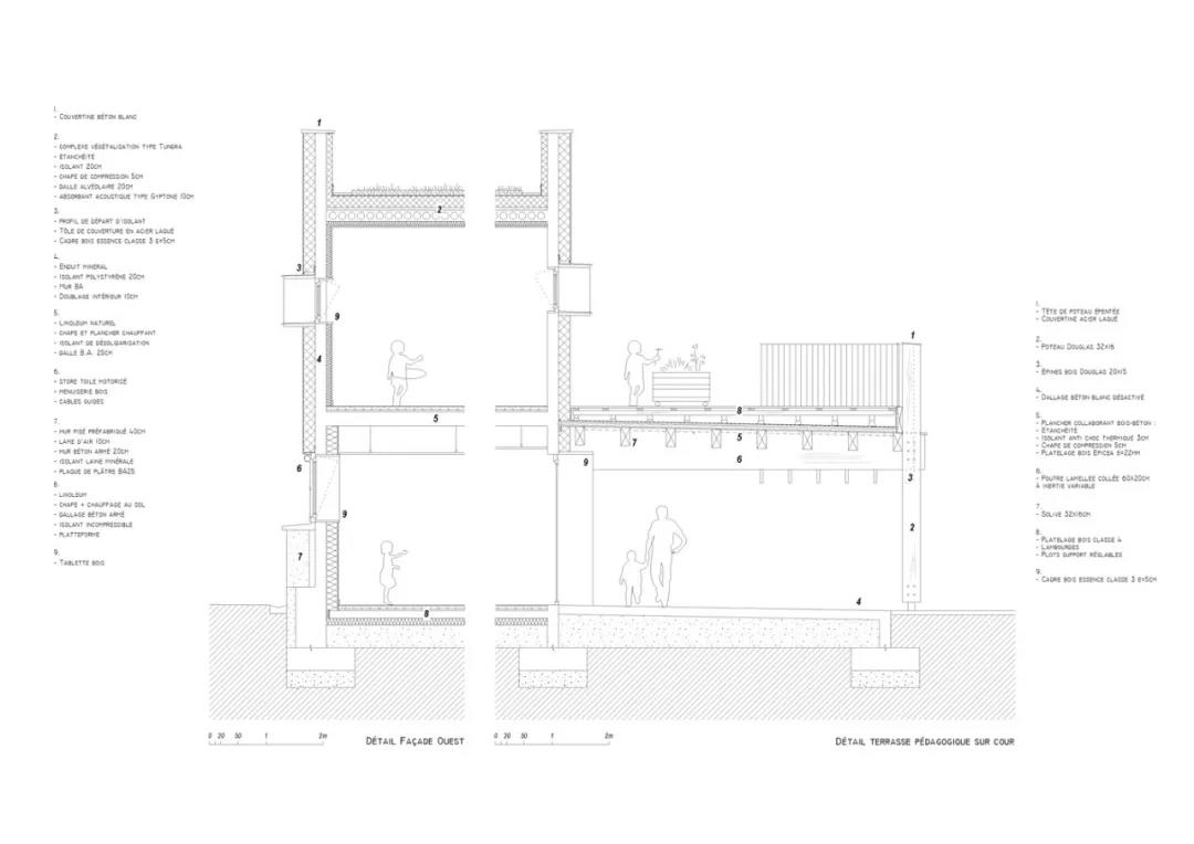
細部圖
剖面圖
建筑師: Brenas Doucerain Architectes
地址: Rue Nationale, 38370 Les Roches-de-Condrieu, 法國
建筑面積: 960.0 m2
項目年份: 2018
攝影師: studio erick saillet
合作方: betrec INGENIOR structure, économie, vrd et opc
業主: Mairie des roches de condrieu
.END.
注:本文轉載自ArchitectureDaily,版權歸原作者所有。

