中國國際設計博物館/阿爾瓦羅?西扎 + Carlos Castanheira
作者:ArchitectureDaily 來源:ArchitectureDaily
© Fernando Guerra | FG+SG
© Fernando Guerra | FG+SG
杭州中國美術學院(CAA)有兩個校區,一個位于市中心,在西湖附近,另一個在郊區,是一個新的更大的校區。
© Fernando Guerra | FG+SG
© Fernando Guerra | FG+SG
新校區里建筑師王澍的作品無處不在:這里的大部分建筑都是他設計的。該項目剛開始時,他還沒有獲得2012年普利茲克獎。從我們工作的早期階段到今天,他和他的建筑師妻子陸文宇一直都在幫助我們,為我們的學校建設起到了重要的作用。
© Fernando Guerra | FG+SG
© Fernando Guerra | FG+SG
中國美術學院(CAA)的巨大藏品和最近從包豪斯學院獲得的一大批原始藏品,使人們萌生了將永久藏品、其他作品和臨時展覽集合在一起,以此建造一座博物館的想法。我們希望建造一個富有特色的,不用太多特殊功能的博物館。
© Fernando Guerra | FG+SG
© Fernando Guerra | FG+SG
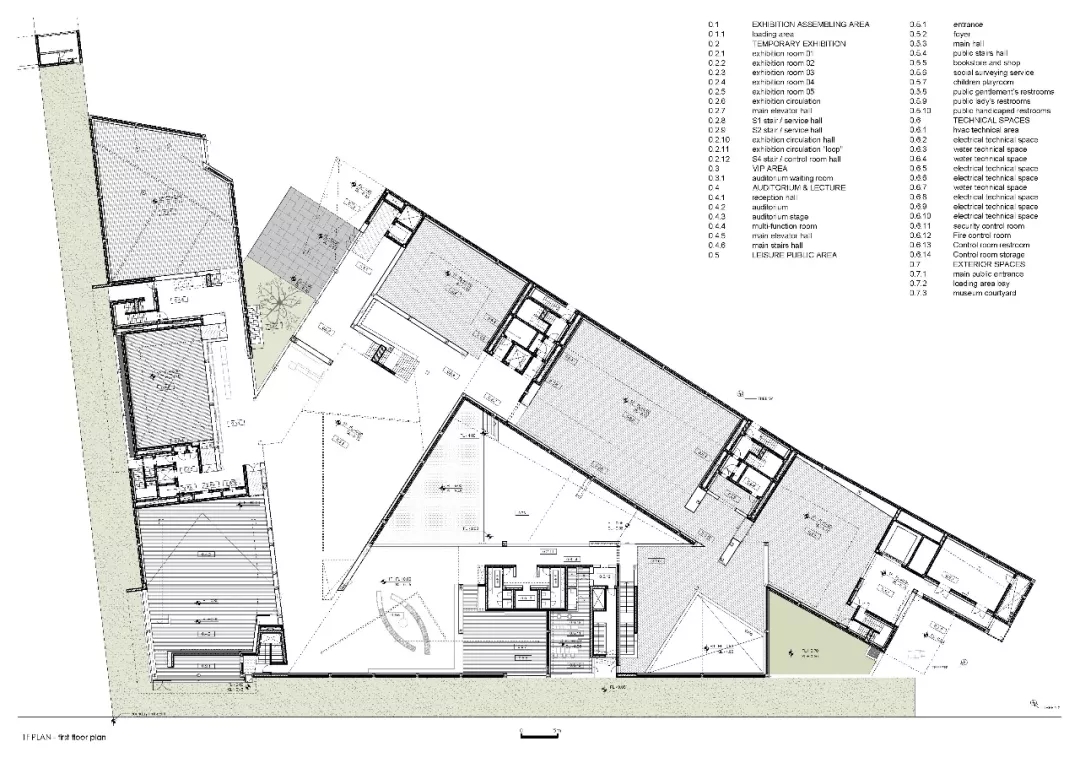
目前這座巨大的校園已經幾乎沒有什么空地了,只在東南角兩條主要道路的交匯處,有一處延伸出來的空地可以使用。這塊場地呈三角形,并且必須根據城市和環境規劃的限制要求來進行建設。這樣也就確定了建筑可能的占地面積和體量大小。
© Fernando Guerra | FG+SG
© Fernando Guerra | FG+SG
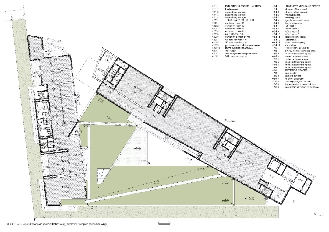
博物館在室內布局中強調的是游客流動的順暢性,同時也讓空間具有靈活的使用性。作為一所藝術學院,它主要是要能夠展示學生和老師用不同的語言和技術開展的各項活動的成果,同時還能夠作為一個接待客人的好場所。
© Fernando Guerra | FG+SG
© Fernando Guerra | FG+SG
© Fernando Guerra | FG+SG
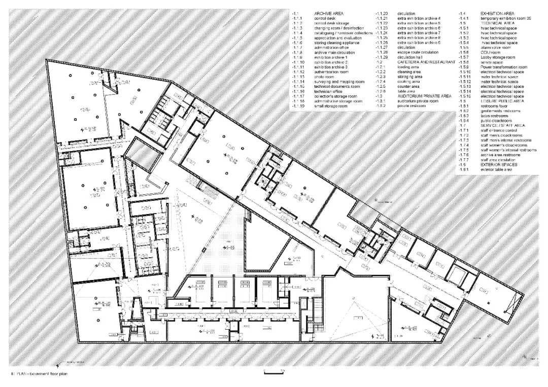
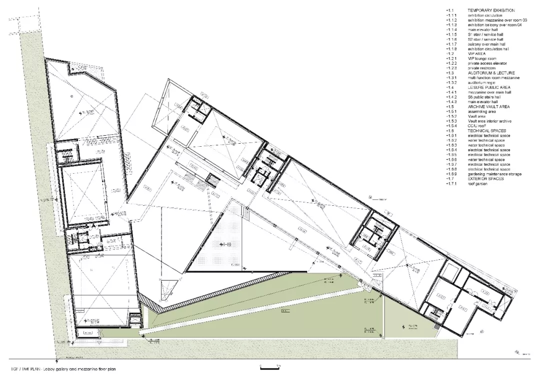
地下空間計劃作為技術,檔案和服務區域,還有一個咖啡廳直接連接到建筑中心的三角形庭院。它的上面是一樓,包括入口,公共空間和休息區,另外還有分配空間、臨時展廳和禮堂。夾層也可以自由走動,并有一條坡道通往東面體量上方的屋頂花園。
© Fernando Guerra | FG+SG
© Fernando Guerra | FG+SG
© Fernando Guerra | FG+SG
該體量的頂層是包豪斯藏品系列的永久展廳。朝南體量的上層有行政區域、青年藝術家工作室和一些基礎設施。
© Fernando Guerra | FG+SG
© Fernando Guerra | FG+SG
建筑的外墻采用了來自印度的紅色阿格拉砂巖作為外部覆層。一些平面,尤其是三角形體量的內部,將覆蓋白色大理石。框架采用鋁/木材制成。一個垂直插入南部邊界的白色混凝土體量將作為公眾游客的入口處,并即將開始施工。
© Fernando Guerra | FG+SG
© Fernando Guerra | FG+SG
© Fernando Guerra | FG+SG
總平面圖
地下室平面圖
一層平面圖
大堂平面圖
二層平面圖
四層平面圖
屋頂平面圖
K、L面剖面
G,H,I,J剖面
E,F剖面
C,D剖面
A,B剖面
M面剖面+西北立面
東立面+南立面
草圖
草圖
草圖
草圖
草圖
草圖
草圖
草圖
草圖
建筑師: Liu Ke, Zhao Yaunpeng, Jiang Weihua
地址: 杭州市,浙江省,中國
葡萄牙辦公室: CC&CB, Arquitectos
主要負責人: Pedro Carvalho
本地辦公室: The Design Institute of Landscape & Architecture, China Academy of Art
建筑面積: 16000.0 平方米
項目年份: 2018 年
攝影師: Fernando Guerra | FG+SG,Courtesy of Carlos Castanheira
合作者: Adalberto Dias, Carolina Leite, Catarina Rodrigues, Diana Vasconcelos, Elisabete Queirós, Francesca Tiri, Germano Vieira, Joana Soeiro, Jo?o Figueiredo, Jorge Santos, Nuno Campos, Pedro Afonso, Rita Ferreira, Sara Pinto, Susana Oliveira
結構設計: Shentu Taunbing, Chen Yongbing
工程: Zhu Weiping, Yu Xiaofen (Hydraulical), Jin Guogang, Wang Yonghong (Electrical) Chen Chunji, Teng Liang (HVAC)
智能設計: Sun Mingliang, Sin Minjun (intelligent Design), Hangzhou Zhida Archit. Science & Technology Co.,Ltd , Zhang Shanming, He Haixia (Acosutics)
顧問: GET – Raul Bessa (HVAC) , HDP – Paulo Fidalgo (Structure)
3D模型: Germano Vieira, Pedro Afonso
.END.
注:本文轉載自ArchitectureDaily,版權歸原作者所有。

