南京鳳凰廣場改造 / 南京邦建都市建筑設計事務所
作者:ArchitectureDaily 來源:ArchitectureDaily
湖南路與中央路路口場景 © 侯博文
沿中央路看24小時書吧 © 侯博文
南京市鳳凰廣場位于湖南路與中央路交界處的湖南路一號,東側臨近玄武湖,地下接鄰地鐵一號線玄武門站,是南京主城區內重要的節點。
沿湖南路場景 © 侯博文
沿中央路公共廣場 © 侯博文
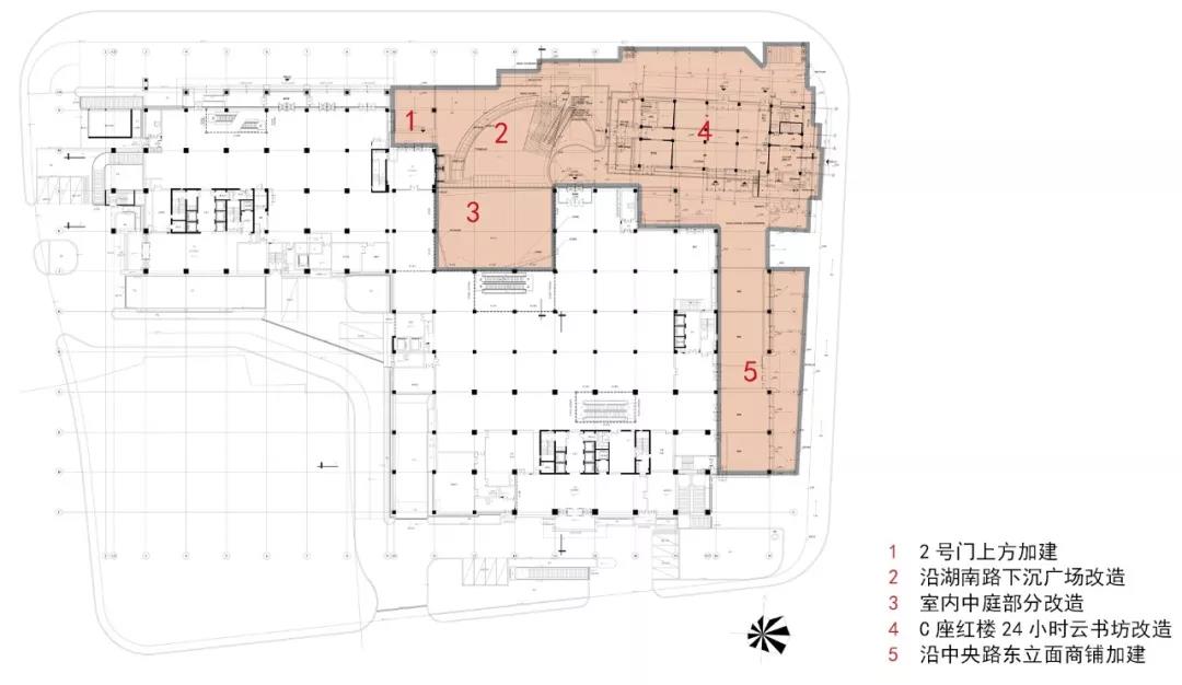
該項目的主要改造范圍為沿中央路以及湖南路界面加上室內中庭部分,在設計上的突出表現有以下三點。
室內中庭部分改造前
改造范圍示意圖
第一、建筑語匯的運用,設計中并沒有使用過于復雜的創作手法,而是采用內斂、簡潔干凈的形態。例如:轉角處24小時書店所在的紅樓為上世紀的作品,為表達對老建筑的足夠尊重,體現一種更為開放包容的基本態度。
24小時書吧 © 侯博文
24小時書吧 © 侯博文
設計采用“玻璃盒子”對其一二層進行了包裹,玻璃表面增加了一些橫向的表皮構造,能夠透過玻璃看到后面老建筑的痕跡,既存在又虛無,和老建筑之間的結合比較柔美、詩性。
沿中央路加建商鋪 © 侯博文
沿中央路加建商鋪 © 侯博文
第二、材料顏色的選擇,基本就三種顏色:一個是白色,很多鋁構件,包括后面支撐的龍骨,都統一處理為純白色。
室內中庭場景 © 侯博文
24小時書吧內部場景 © 侯博文
一個是黑色,另一個就是玻璃的中間色,這樣就形成了“黑白灰”三種色彩關系,更符合文化性商業的定位。
24小時書吧內部場景 © 侯博文
24小時書吧內部場景 © 侯博文
第三、商業界面的延展,在這次的改造中,總的來說改造的點較為片段和細碎,但通過有針對性的選取一些重要節點進行設計,尤其是將東側沿中央路部分原來暗淡的架空層改為一排商鋪,再將這些改造的節點在材料色彩與分割方式上進行統一,最終給人一種商業界面更為完整延續的視覺感受。
沿中央路看24小時書吧 © 侯博文
沿中央路加建商鋪 © 侯博文
沿中央路場景 © 侯博文
沿中央路表皮拆解
表皮植入
空間修補
總一層平面配置圖
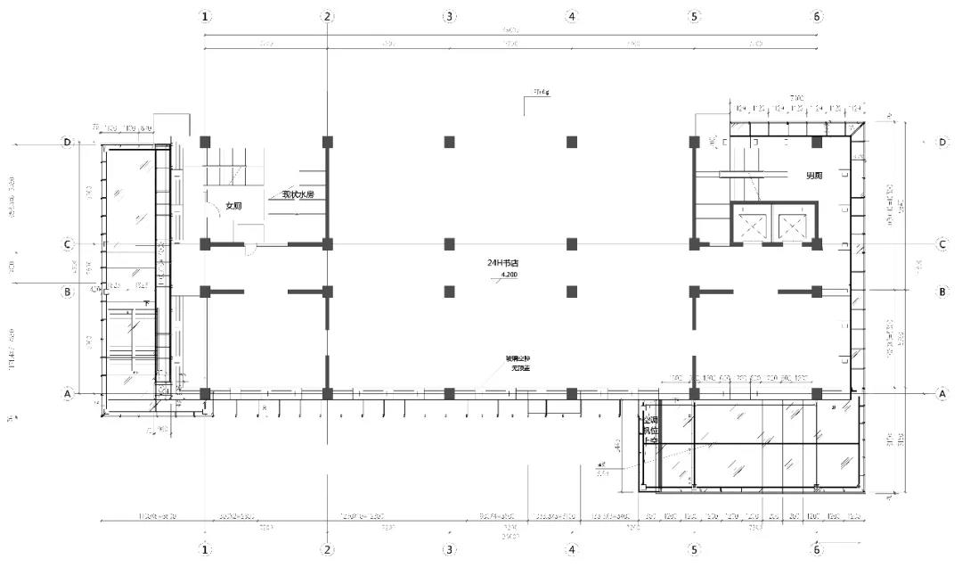
24小時書吧平面
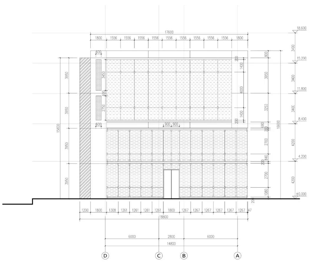
24小時書吧東立面圖
24小時書吧西立面圖
沿中央路商鋪表皮大樣圖
建筑師: 南京邦建都市建筑設計事務所
地址:湖南路1號, 鼓樓區, 南京市, 中國
主創建筑師: 馬進,普舟,劉佩鑫,嚴羽
建筑面積: 4693.0 平方米
項目年份: 2017
攝影師: 侯博文
.END.
本文轉載自ArchitectureDaily,版權歸原作者所有。

