gmp新作 | 新地標 - 天津濱海新區文化中心濱海美術館
作者:gooood谷德設計網 來源:gooood谷德設計網
由gmp·馮·格康,瑪格及合伙人建筑師事務所設計的天津濱海新區文化中心濱海美術館正式落成。濱海美術館是天津濱海新區文化中心“五館一廊”文化設施的重要組成部分。美術館將在未來舉行多樣的當代藝術展覽。開放靈活的平面布局和可移動墻面系統為藝術提供了自由的舞臺。
美術館外觀 ©Christian Gahl
西側立面 ©Christian Gahl
建成后的天津濱海新區文化中心將成為嶄新的熱門文化地標,這里坐落著數座不同尋常的建筑.文化中心整體規劃由gmp建筑師事務所完成,來自世界不同國家的設計師分別承擔了其中博物院、劇院、活動中心等獨立機構的設計任務,五座場館通過一座由傘形鋼柱支撐的文化長廊連為一體。
文化藝術長廊一側入口 ©Christian Gahl
五座場館通過一座由傘形鋼柱支撐的文化長廊連為一體 ©Christian Gahl
濱海美術館位于天津濱海新區文化中心的西北角,濱海現代城市與工業探索館的對面。美術館高五層,總建筑面積26500平方米。建筑呈規則長方體體量,幕墻為淺色天然石材。建筑幕墻由下自上帶有細長窗縫的封閉幕墻逐漸取代大面積橫向玻璃幕墻。建筑面向藝術長廊和室外街道的一側,玻璃幕墻與石材立面交接處呈現階梯式退進結構,從而強調出美術館的正門,玻璃幕墻實現了通透的視野,另來訪者可以一窺館內藝術展品的魅力。
玻璃幕墻與石材立面交接處呈現階梯式退進結構 ©Christian Gahl
美術館采用了古典的對稱結構布局:兩座側翼連接圍合一座宏大中央空間,其內可以陳列大型展品,也可以作為迎賓、拍賣或多功能廳使用。沿街一側的西立面,一座大型室外樓梯直通位于二層的中央接待大廳,來訪者可以通過一座中庭由此直接到達博物院前廳,同時這里也與同層之上的文化藝術長廊相連。
美術館接待空間 ©Christian Gahl
美術館的三層空間之上將舉行多樣的當代藝術展覽。越層空間內的可移動展墻可根據不同主題自由分隔組合展覽空間。靈活的平面組織和7米空間凈高可以布置陳列大型展具。照明燈帶被整合安裝在屋面吊頂內,為展覽空間提供多樣的照明方式。可調節的射燈可以營造多種展覽和空間的基調。
展覽空間 ©Christian Gahl
展覽空間內的可移動展墻 ©Christian Gahl
美術館第五層之上為行政管理空間。這里設有辦公室、會議室和公共活動空間,兩座屋面庭院為周邊室內空間帶來了充足的采光,同時也為辦公人員提供了休憩交流的場所。
總平面圖 ©gmp Architekten
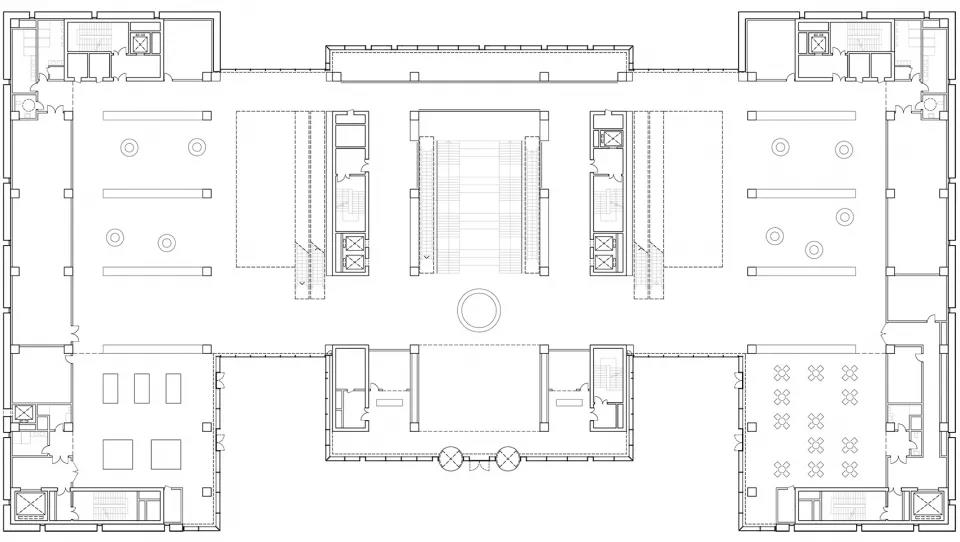
美術館二層平面 ©gmp Architekten
西立面圖 ©gmp Architekten
剖面圖 ©gmp Architekten
設計委托:2013年
設計:曼哈德·馮·格康和施特凡·胥茨以及施特凡·雷沃勒
項目負責人:隋錦贏,林賽博
設計團隊:馬可·阿桑德里,第納·伯彥斯,穆楊托,迪米特里·菲利普
中國項目管理:吳鏑,劉楊嬌
中方合作設計單位:天津市建筑設計院
業主:天津市濱海新區文化中心投資管理有限公司
建造周期:2015—2017年
落成開幕:2017年10月
建筑面積:26500 m2
.END.
注:本文來源于gmp對gooood谷德設計網的分享,轉載自gooood谷德設計網,版權歸原作者所有。

