屬于每個人的空間 - 伊凱斯特之心,丹麥 / C.F. M?ller Architects
作者:gooood谷德設計網 來源:gooood谷德設計網
C.F. M?ller事務所日前在伊凱斯特-布蘭德國際學校旁邊的場地上完成了一個令人期待已久的項目,包括多個活動大廳和多功能的教學空間。該項目進一步完善了學校的教育設施,同時在發展迅速的伊凱斯特中心建立了全新的集會場所。這一名為“心臟”的項目包含了一座多功能的建筑和一個活動公園,旨在與附近的伊凱斯特商學院、伊凱斯特-布蘭德高中、教室培訓學院以及伊凱斯特-布蘭德國際學校形成連接。
屋頂鳥瞰圖
全景視圖
項目包含了一座多功能的建筑和一個活動公園
“伊凱斯特之心”以全新方式將教育,活動,社區,運動和休閑活動結合起來。其使用者將涵蓋國際學生、運動員、音樂家、滑冰運動員和社會項目研究者等。從總體上看,建筑和公園的發展將涉及超過35個類型的使用者群體。C.F. M?ller事務所的建筑師及合伙人Julian Weyer表示:“伊凱斯特之心旨在將不同的設施和活動結合起來,形成一個能夠被公眾全天使用的活躍場所。這座建筑宛如一座小城,它擁有高低不一的屋頂,同時還設有一個能夠聚集和引導人群的廣場。
功能分布示意
建筑宛如一座小城,擁有高低不一的屋頂
建筑外觀
立面細部
屬于每個人的空間
伊凱斯特之心的總面積為3660平方米,包括一個設有表演舞臺的中央廣場。該廣場將使用者引導并分散至不同的建筑當中。建筑的一個側翼包含了學校的教室,在下午和夜間則可以被用作多功能室和夜校的藝術工作室。街頭體育館提供了猶如戶外的場景,為年輕人和運動愛好者們提供了有趣的娛樂場地。建筑中還包含帶有自助廚房的咖啡廳以及商店區域,后者專注于出售環保產品和由盲
人制作的手工藝品。
中央廣場
中央廣場內的大臺階區域
室內細部
建筑的二層空間包含一系列小型空間,可用于進行舞蹈和瑜伽等休閑活動
瑜伽室
多功能建筑的二層空間包含一系列小型空間,可用于進行舞蹈和瑜伽等休閑活動,或舉辦各類表演和文化活動。建筑周圍的活動景觀基于可持續的水循環系統而設計,并設有碗形滑冰場、滑板公園、循環水道、跑酷設施、沙灘排球場、多功能娛樂場地以及較為安靜的滾球場地和野餐場地。
建筑外部的滑板公園
連接各行各業的使用者
伊凱斯特之心具有高度的開放性,這一點即使是在小型的非正式場地或座位區等細節上也能夠體現出來。它不僅僅是一個用來消磨閑暇時光的場所,它還是一個能夠連接不同使用人群的社交中心。伊凱斯特之心的落成將為學校和公眾帶來更多活動、社交和教學的機會,并在各種不同類型的用戶之間建立強有力的聯系。年輕人可以在這里獲得更多機會和建議,追尋更加積極健康的社交生活。以這種方式,伊凱斯特之心將連接各行各業的使用者并為其發展助力。
多功能活動室
街頭體育館提供了猶如戶外的場景
室內細部
該項目的參與者包括當地和國內的眾多企業及合作者,包括Bestseller公司、Realdania基金會和丹麥文化體育設施基金會等。Carlsberg基金會還為建筑內部和室外場地提供了一系列藝術作品。
戶外景觀和藝術裝置
夜景
模型及圖紙
模型
場地平面圖
軸測分解圖
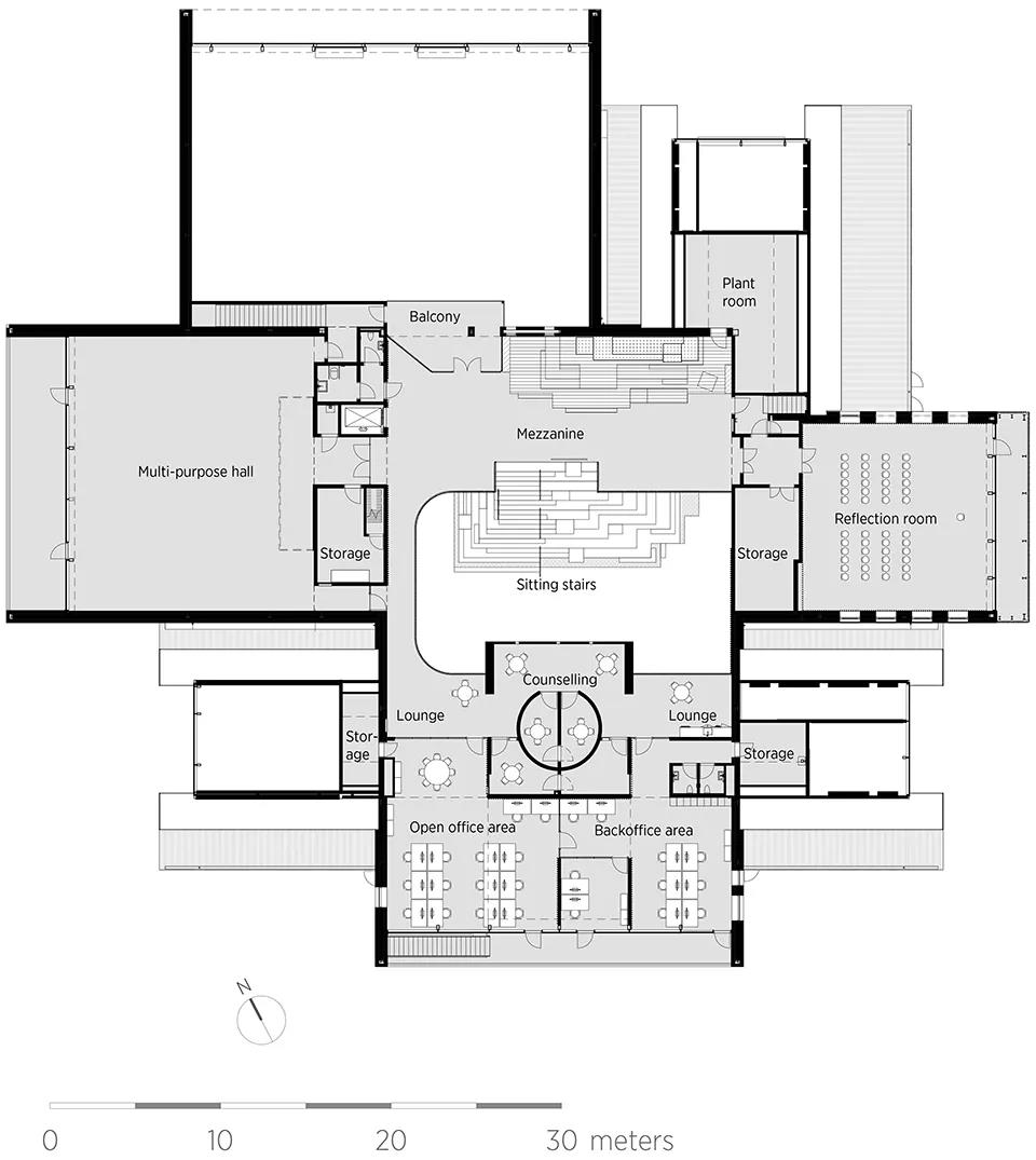
首層平面圖
二層平面圖
東西立面圖
剖面圖
Client:
International School Ikast-Brande / ISIB Ejendomsselskab A/S
Location: Vestergade, Ikast, Denmark
Architect: C.F. M?ller Architects
Landscape: C.F. M?ller Architects
Engineer: Ingeni?rne
Contractor: KPC
Size: 3,660 m2 building, 3.7 ha. activities park
Year: 2015-2018
Photographers: Adam M?rk, Julian Weyer, Thomas Olsen, Thomas Moelvig
.END.
注:本文轉載自gooood谷德設計網,版權歸原作者所有。

