這樣的禪意別墅不多見!
作者:建筑師雜志 來源:建筑師雜志
烏克蘭人的禪意別墅
提起歐洲,想起的都是充滿歐式風格的建筑
這個事務所卻“玩”出了不同的花樣,潛心打造日式“侘寂風”建筑
(日本描述簡約風格有一個專有的名詞,叫“侘寂”(わびさび wabi sabi),源于百年來日本密宗對“禪”的思考與具象化,是日本人宗教信仰的物質體現。一步一步的減法、簡潔的直角線條,不加刻意修飾的純樸外觀,是正統的日式簡約。)
Sergey Makhno Architects是來自烏克蘭的一所建筑事務所
目前在16個國家完成了520個項目,榮獲67個獎項
謝爾蓋馬克諾
Sergey Makhno Architects 的創始人
謝爾蓋馬克諾,Sergey Makhno Architects 的創始人,精通將日式元素與當地特色相結合,打造“禪”意建筑
01
oko house
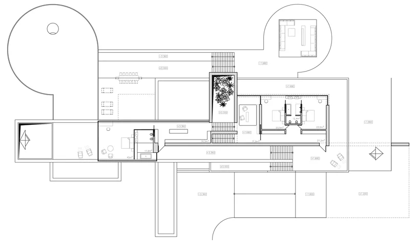
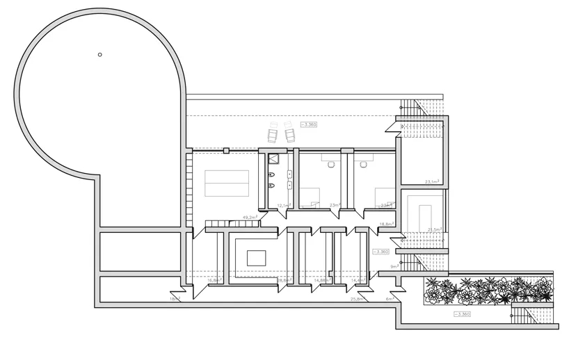
這個私人住宅名為oko house,烏克蘭oko代表一個眼睛。位于烏克蘭首都基輔郊區。
內部空間和外部空間被一個長方形的拱形門明顯分開,并設置為房子的大門
房子的后面,設置了車庫和花園的主要入口,而且使用了大量圓形結構,類似于中國的月亮門,也呼應了住宅名字中的oko。
圓形的窗戶和鋼制隔板成為一只“眼睛”,讓住戶可以清楚的看到戶外花園
地板壁爐
人工花園保持了日本傳統的裝飾,盆景,小的裝飾元素散落在場地周圍

設計師還劃分了一座梯田地塊,裝飾著各種烏克蘭藝術家雕塑
02
Ukraine Rose house
這是一座極簡風格的“玫瑰屋”,坐落在烏克蘭的深山之中。
據Makhno說,“建筑名字中的‘玫瑰’來源于色彩艷麗的紅色外墻。
這座建筑運用了混凝土、耐候性鋼材、玻璃和水等元素。
160平方米的建筑具有清晰的輪廓,看起來似乎并不復雜,但它卻包含了大量復雜的元素。
面向水池的立面設有一大片落地窗,房子的構造、顏色讓住客感覺身處于大自然之中。
建筑師還設計了一個人造水池,使水成為了與混凝土,玻璃和鋼材同樣重要的材料。位于游泳池的雕像是烏克蘭藝術家納扎爾·貝利克創造的“雨”。
03
Ukraine Small residential
這是Sergey Makhno Architects在“玫瑰屋”之后的又一處于森林中的作品。
這座三層的住宅中設計有高至屋頂的大窗和超級大的玻璃天花板,讓住客隨時都感覺身處于森林之中。
設計師在中央設置了一個寬敞的花園,當氣溫升高時,常春藤和野葡萄藤便會慢慢生長于地板和墻面上穿孔的網眼中,形成一處天然的陰涼空間。
除了在住宅中大量使用鋼材和玻璃之外,建筑師還將自然光線作為一種特殊的建筑材料引入住宅中,陽光可以無障礙自由照入住宅內,顯示出建筑內不斷變化的空間體量。
04
Live Art
Live Art是一棟兩層樓的房子,內部設施是設計師根據客戶的需求來打造的。
除了基本生活區外,建筑還包括一個帶游泳池的露臺,一個特殊的茶道館, 還有一個帶有“藝術景觀”的櫥柜,現代烏克蘭藝術家的雕塑被放置在兩個全玻璃墻外面。
這座房子以砌塊系統為基礎,由三種材料制成,考頓鋼,陶瓷和玻璃。
盡管材料很重,但建筑物看起來很漂浮。這是通過特殊的底部孔,房子所在的“腿”實現的。
.END.
注:本文轉載自建筑師雜志,版權歸原作者所有。

