重慶龍湖兩江長灘原麓社區中心 / 上海成執建筑設計
作者:ArchitectureDaily 來源:ArchitectureDaily
© 存在建筑
© 存在建筑
壹共生
項目毗鄰龍興古鎮,御臨河邊,有遠山起伏,綠化集中,東側景觀極佳,而其余方向則乏善可陳。
© 存在建筑
© 存在建筑
作為對環境的回應,建筑師將三個體量不同的盒子并列于山坡上,垂直于濱河道路,以期達到濱河景觀及遠山的最佳觀賞。通過建筑與環境的互塑共生,使遠山、河流、庭院、建筑重塑構成新的秩序,營造獨有坡地特征的建筑群落。
© 存在建筑
© 存在建筑
© 三棱鏡建筑空間
© 三棱鏡建筑空間
貳拓撲
建筑師依據功能將每一個建筑空間依序形成不同的體量,展覽廳、書吧、游泳池、餐廳等順次形成多重院落空間,虛實空間的變化過渡一如中式游園,將傳統中式意境融入現代空間中。
分析剖面圖
空間與建筑體量形成有趣的關系,垂直變化的高度更加豐富了空間層次。上下、內外、遠近、空間往復變化,人在其中,體驗敘事性的情懷。
© 存在建筑
© 三棱鏡建筑空間
建筑力圖創造出來的流動空間形態,將多空間有機聯動,彼此穿透。通廊雖為直線空間,卻展現出極其豐富的空間特色。
© 存在建筑
© 存在建筑
庭院與天井以覆蓋獲得領域感,內外場所的鄰接性,并展示出空間的開放性以及基于空間關系的解放性。
© 存在建筑
叁真實
為表達建筑、空間、形體的真實性哲學理念,建筑師利用木結構的特色,以結構形態塑造建筑空間和形體,將空間與結構產生緊密聯系,因而使建筑本身具有了“誠實的美德”。
© 存在建筑
這種明晰的結構邏輯,試圖創造一種嶄新的帶有烏托邦理想的建筑群落,以建筑手法對抗虛假浮華的世界。
© 存在建筑
© 存在建筑
暴露的膠合木結構構件是建筑中最重要的視覺元素。建筑師以重慶傳統的折坡屋頂秩序的形式語言轉換成為建筑形體,抽取變化的單元模式轉為結構構件,多片構件以秩序和變化排列組合,產生緊密的空間與形體的變化。
體型形成分析圖
木構件筆直搭接,嚴整清晰,建構感強。流暢的線條和統一的韻律感使建筑空間極具張力。構件體現出的動態平衡,豐富了建筑語言,將空間變得非常具有戲劇化。
© 三棱鏡建筑空間
© 三棱鏡建筑空間
肆回轉
設計師將書院定義成一個能讓人閱讀、思考、安靜下來的場所,并希望成為閱讀者的場所記憶,生活方式通過書院的一呼一吸中不斷進行新陳代謝。書院中旋轉迂回的樓梯,書架環繞,頂部引入自然光,呈現流動靈活卻有震撼力的空間,光線的變化還使讀者感受到時間的游走。
© 書院剖面
© 三棱鏡建筑空間
伍光影
建筑師以六邊形鋁板作為主要界面材料,覆蓋于內部結構之上。表皮順應真實的建筑形態變化,每塊蜂窩鋁板精細包邊,開縫拼掛,細節考究。數字化的表現手法營造 出“Cyberpunk”(賽博朋克)的超時空現代感,表皮在自然光下形塑特質,追隨光線的變化,產生復雜而神秘的視覺效果。
© 三棱鏡建筑空間
© 三棱鏡建筑空間
陸工藝
為追求極致的建筑美觀度,項目采用設計施工一體化方式,并應用BIM系統實現了項目整體管控,每一個結構構件都通過編程設計優化,數控機床加工生產,現場安裝。為了降低施工誤差,運用大量數字化理念和先進技術,將項目做到事前控制和動態管理,因此木構部分從安裝到屋面結構完成僅用了短短25天。
© 三棱鏡建筑空間
© 三棱鏡建筑空間
建筑師以極現代的手法,真實的結構與空間,重新闡釋了現代建筑美學,這種發自與內,并自內而外的建筑,以其整體性與真實性,使建筑具有了道德和誠實的美感,這種基于變化中的結構形態將功能、空間、材料、結構與人的交融和對話逐級展開,使建筑的一切都在自然的光線下優美的表現出來!
© 三棱鏡建筑空間
© 三棱鏡建筑空間
剖面圖
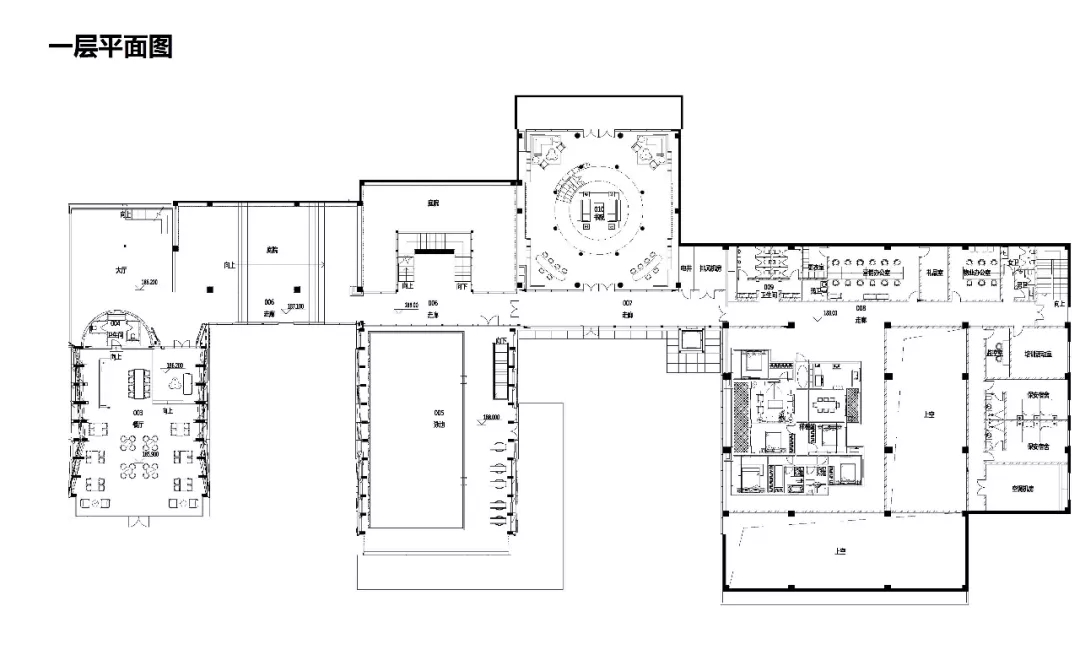
一層平面圖
平面圖
立面圖
立面圖
分析圖
分析圖
分析圖
分析圖
建筑師: 上海成執建筑設計
地址: 龍興商圈,渝北區,重慶,中國
主創建筑師: 李杰,黃偉,嚴芳,吳雪艷,許陽峰
設計團隊: 馮武兵,劉喜桃,劉寅,鄭文龍,薛成宗,顏袁
建筑面積: 4000.0 m2
項目年份: 2018
攝攝影師: 三棱鏡建筑空間攝影,存在建筑
合作方: 上海雋執建筑科技有限公司
木結構施工: 上海雋執建筑科技有限公司
業主: 重慶兩江新區龍湖新御置業發展有限公司
.END.
注:本文轉載自ArchitectureDaily,版權歸原作者所有。
o

