城市中的“水稻梯田” - Inter Crop辦公室,曼谷 / Stu/D/O
作者:gooood谷德設計網 來源:gooood谷德設計網
設計公司: Stu/D/O
位置: 泰國
類型: 建筑
材料: 水泥 混凝土 玻璃 鋁
標簽: 曼谷
該項目旨在為一家現代農貿公司翻新其7層辦公大樓,設計師在這里創造了一種新的工作場所體驗,特別是 “水稻梯田”的這一設計充分體現了公司的商業運營理念。
遠眺位于居住區中的建筑
由于各種場地限制,如地界、高度限制和不規則的場地邊界,同時為了滿足公司的辦公要求,設計師認為該建筑必須展現高效這一概念,每個樓層的體量都被改造為略微不同的形式,由此形成了一系列重疊的懸挑露臺結構。 簡潔的堆疊式露臺也將室外的動植物景觀滲透到建筑內部的多個功能區域中。
建筑外覽
以 “水稻梯田”為主題的的建筑側面
每個樓層間相互錯落重疊
整個“水稻梯田”建筑為所有人提供了靈活的公共空間,讓人們意識到公司的歸屬感和公共認同感。屋檐下的空間也作為戶外聚會、分享、工作的理想場所,為員工提供了多種多樣的空間使用方式,也為整個工作場所營造出了一種自然而知性的氛圍。不同于簡單的劃分空間,錯落的空間設計能夠給人帶來了更多的聯系和互動,消除內外部之間的界限。
結構示意圖
俯瞰郁郁蔥蔥的露臺空間
與辦公區相連接的上層庭院空間
沿襲建筑風格的底層入口庭院
整個項目不光滿足了辦公功能需要,同時設計師還根據泰國的熱帶氣候制定了一套環境策略。一個由鋁制垂直翼片構成的特色的立面成為了外部和內部之間的多重媒介。通過計算太陽角度及其運行軌道后,每個翼片將會跟隨各個方向上的太陽光線而改變,這樣的設計既可以作為遮陽設備,還可以作為自然通風的通道,同時為住宅的提供更多隱私性。這些垂直板條有助于過濾掉太陽光所帶來的多余熱量,從而減少對空調的依賴。每層樓的“水稻梯田”也有助于緩解建筑物的制冷負荷,以完全自然的方式抵御熱量的吸收,營造出建筑物特有的微氣候,中和可能出現的不平衡氣候。
每個翼片將會跟隨各個方向上的太陽光線而改變
由鋁制垂直翼片構成的特色的立面
從下向上仰視立面結構
此外,這里的工作環境不同于典型的辦公樓,它不僅能創造一種新的工作體驗,同時也可以成為提高每個辦公室成員生活質量的催化劑,以及與周圍環境相融合的綠色空間。
一樓接待大廳
外立面結構為房間內部帶來獨特光影效果
外露的樓梯
建筑夜間效果
夜間上層平臺效果
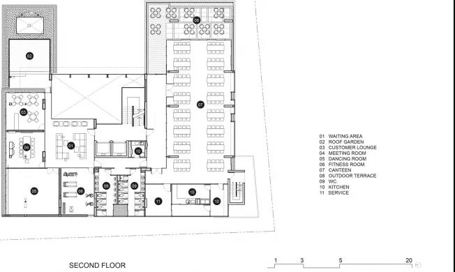
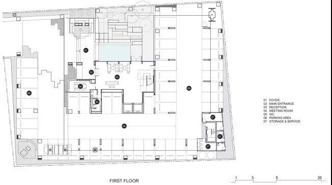
項目圖紙
建筑軸測
一層平面
二層平面
剖面圖
Location:Bangkok, Thailand
Type:Architecture and Interior Design
Program:Office Building
Client:Inter Crop Co.,Ltd.
Site Area:2,450 sqm.
.END.
注:本文轉載在gooood谷德設計網,僅供分享不做商業用途,版權歸原作者所有。

