最美景觀與建筑的融合 - Eysturkommuna市政廳,丹麥 / Henning Larsen
作者:gooood谷德設計網 來源:gooood谷德設計網
對于Eysturkommuna的居民而言,參觀當地市政府可謂一次令人難忘的體驗。市政廳坐落在法羅群島的景觀深處,與自然環境完全融為一體。布滿綠植的屋頂使其不再只是一座小型的建筑物,而是將市民連接至河流對岸的橋梁。
▼周邊環境
▼市政廳與自然環境完全融為一體
▼建筑本身成為將市民連接至河流對岸的橋梁
▼布滿綠植的屋頂
▼街道視角
▼室內辦公空間
▼建筑謹慎地融入了蔥郁的自然景觀,為政府工作人員帶來自然而舒適的工作環境
▼從地板上的玻璃窗洞中可以望見逆流而上的鱒魚
到屋頂上野餐
Eysturkommuna市政廳還肩負著振興當地社區的重要使命。建筑的露臺和屋頂完全對市民開放,人們可以隨時到屋頂上野餐,或者在河里游泳。
▼露臺和屋頂完全對市民開放
▼建筑近景
Eysturkommuna市政廳是Norerag?ta城區復興計劃中建造的首個項目,未來這里還將建造更多的新建筑,并舉辦一系列公眾活動。在漁業成為主要產業并建造大型工廠之前,海灘一直是市民們集會和舉辦特殊活動的地點。人們會在這里點燃新年除夕夜的焰火、慶祝國旗紀念日,或者舉辦各類體育活動。
▼市政廳將激活河岸的社區生活
▼全景視角
▼夜景
▼場地平面圖
▼首層平面圖
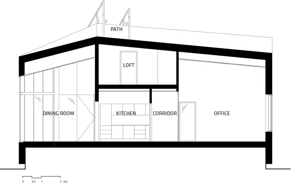
▼剖面圖A-A
▼剖面圖B-B
Project name: Town Hall Eysturkommuna
Address: Oyran 2, FO-512 Norerag?ta
Client(s): Eysturkommuna
Architect(s): Henning Larsen North Atlantic
Engineer(s): Spenn, Veri-Con, SMJ
Landscape Architect(s): Henning Larsen North Atlantic
Contractor: KBH
Other collaborators: Rók-EL, Z. Leitisstein,
Signar á Fríeufl?tum, áWAY,
Klima, Stokholm
Competition period: Comission
Construction period: 2016-2017
Milestones, date: Inaugurated, December 2017
GFA: 750 m2 / 8000 ft2
Henning Larsen
Partner responsible: ósbj?rn Jacobsen
Project manager: ósbj?rn Jacobsen
Scope/role: Lead Design Architect
Team/departments involved: Henning Larsen Faroe Islands
Material
Drawing credits: Henning Larsen
Photo credits: Nic Lehoux
Video credits: Henning Larsen (sketch movie), Nic Lehoux (drone)
注:本文來自Henning Larsen 對gooood的分享,轉載自gooood谷德設計網,版權歸原作者所有。

