15個大尺度中庭案例! (附剖面圖)
作者: AD中國 ArchDaily 來源:AD中國 ArchDaily
© Tim Van de Velde
辦公和文化類建筑往往是建筑師夢想中的中庭設計的最佳之選。這些中央空間旨讓使用者偶遇或幫助其對建筑內部空間的定位,寬敞明亮且提供了大量的自由設計空間。 宏偉的尺度,雕塑般的臺階,細致的材料和室內植物等等,使整個空間充滿生機。 為了幫助您理解您的設計理念,下面我們收集了15個著名的中庭及其截面圖。
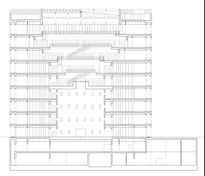
B30 / KAAN Architecten
© Karin Borghouts
圖片來自 KAAN Architecten
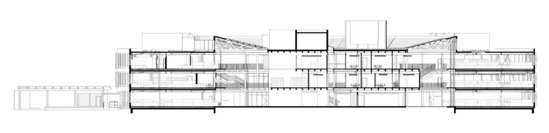
荷蘭政府部門大樓 RIJNSTRAAT 8 / Ellen van Loon / OMA
© Nick Guttridge
圖片來自 OMA
Macquarie Bank / Clive Wilkinson Architects
© Shannon McGrath
Courtesy of Clive Wilkinson Architects
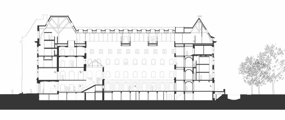
斯圖加特城市圖書館 / Yi Architects
© Stefan Mu?ller
Courtesy of Yi Architects
Parque Toreo / Sordo Madaleno Arquitectos
© Rafael Gamo
Courtesy of Sordo Madaleno Arquitectos
Rijksmuseum / Cruz y Ortiz Arquitectos
© Pedro Pegenaute
© Cruz y Ortiz Arquitectos
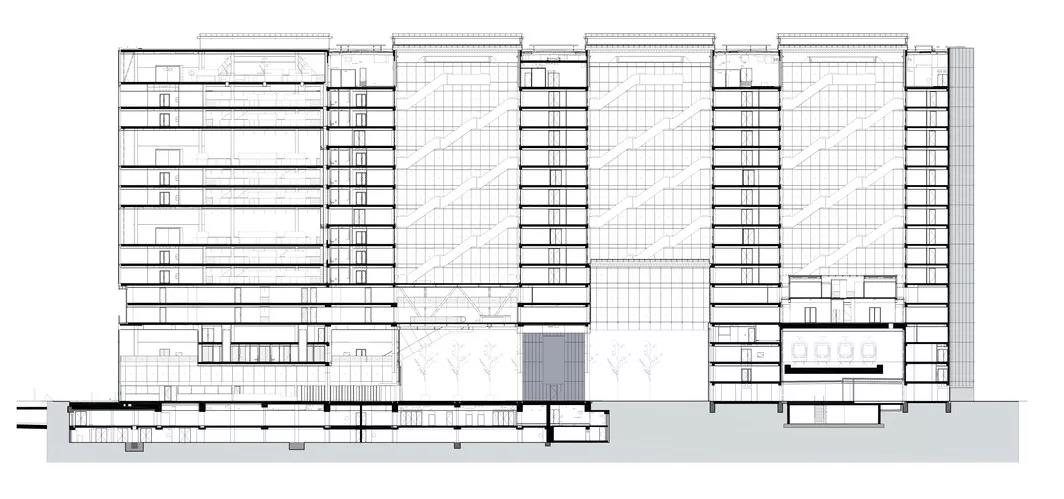
聯邦中心南樓1202/ ZGF 設計事務所
© Benjamin Benschneider
Courtesy of ZGF Architects
虹橋天地演藝與展覽中心 / 如恩設計研究室
© Dirk Weiblen
Courtesy of Neri&Hu Design and Research Office
意大利聯合圣保羅銀行辦公大樓 / 倫佐·皮亞諾建筑工作室
© Enrico Cano
Courtesy of Renzo Piano Building Workshop
A?ripa?ev Office / Arhitekt 11
© To?nu Tunnel
Courtesy of Arhitekt 11
‘De Petrus’文化中心 / Molenaar&Bol&vanDillen Architects
© Stijn Poelstra
Courtesy of Molenaar&Bol&vanDillen Architects
聯合國城 / 3XN
© Adam Mo?rk
Courtesy of 3XN
哈佛藝術展覽館的改造和擴建 / Renzo Piano + Payette 建筑事務所
© Michel Denance?
Courtesy of Renzo Piano Building Workshop + Payette
加拿大銀行總部建筑更新 / Perkins+Will
© Tim Griffith
Courtesy of Perkins+Will
鹿特丹波拉克大廈 / Paul de Ruiter Architects
© Tim Van de Velde
Courtesy of Paul de Ruiter Architects
編輯:韓爽 黃馨儀;翻譯:舒岳康
注:本文轉載自 AD中國 ArchDaily ,十分感謝小編的悉心編寫。如若圖文資源侵犯您權益,請及時與我們聯系,我們將第一時間做出處理。

