社交與回味,以兩種不同本質為母題的巴西住宅 — Quinta das Paineiras House
作者:建筑學院 來源:建筑學院
這座房子的場地是在分配地段的原始階段設計的。由于場地內沒有鄰居,沿街的的立面得以有開闊的戶外場地和不受打擾的私密度,可以盡情私享自然采光和天空雜糅的室內環境。該項目根據兩種明確區分不同的生活主題:社交與沉思。將建筑分為兩個不同的功能體塊。
臥室在懸挑與花園之上的體塊內。窗戶朝東,面向森林視野,讓我們可以看到日出,并且享受大自然的寧靜。
臥室的體量由具有相反特征的兩個元素組成。一方面是辦公室石頭材質的沉重感,另一方面是后花園內車庫的輕盈感。
景觀設計概念則是盡可能擴展其多樣性和在戶外區域的靈活使用。草坪成為室內空間和泳池露臺的延伸。為了保護隱私,沿著場地邊界種植了高大的植物,形成的樹籬取代了傳統的墻體。
在“開放式住宅”中感受社交這一主題。該空間與花園和景觀完全融為一體,提出了一種全新的人,景觀和場所之間關系形式。在這個區域內含有起居空間,烹飪廚房,社交和娛樂。在房子周圍散步是一種多種氛圍糅合的經歷。感受紋理,觸覺,聲音和視覺效果的多重體驗。
主空間的大型滑動門為室內提供自然采光,使花園和天空成為內部空間環境的一部分,加強了內部和外部空間之間的聯系,而不受他們之間的距離流線影響。
而回想這一主題在“封閉的盒子”中,旨在保護個人的私密性。人們回到這樣的區域,氛圍適合一個人去休息和冥想。讓身體與心靈同時棲息于此地。
圖紙
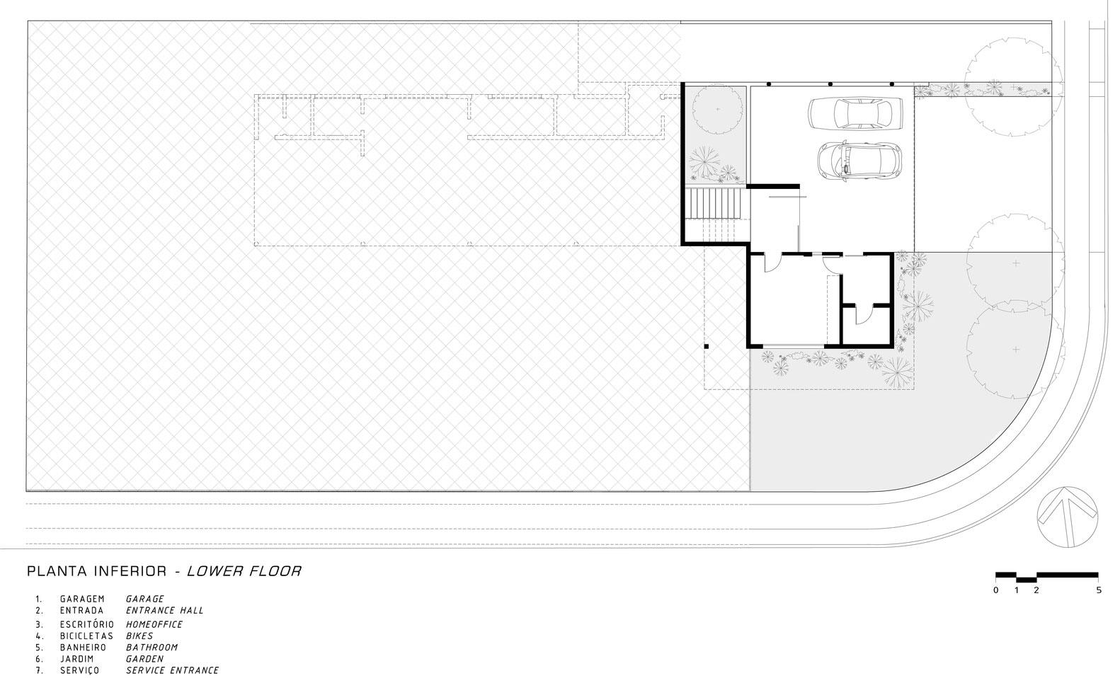
地下層平面
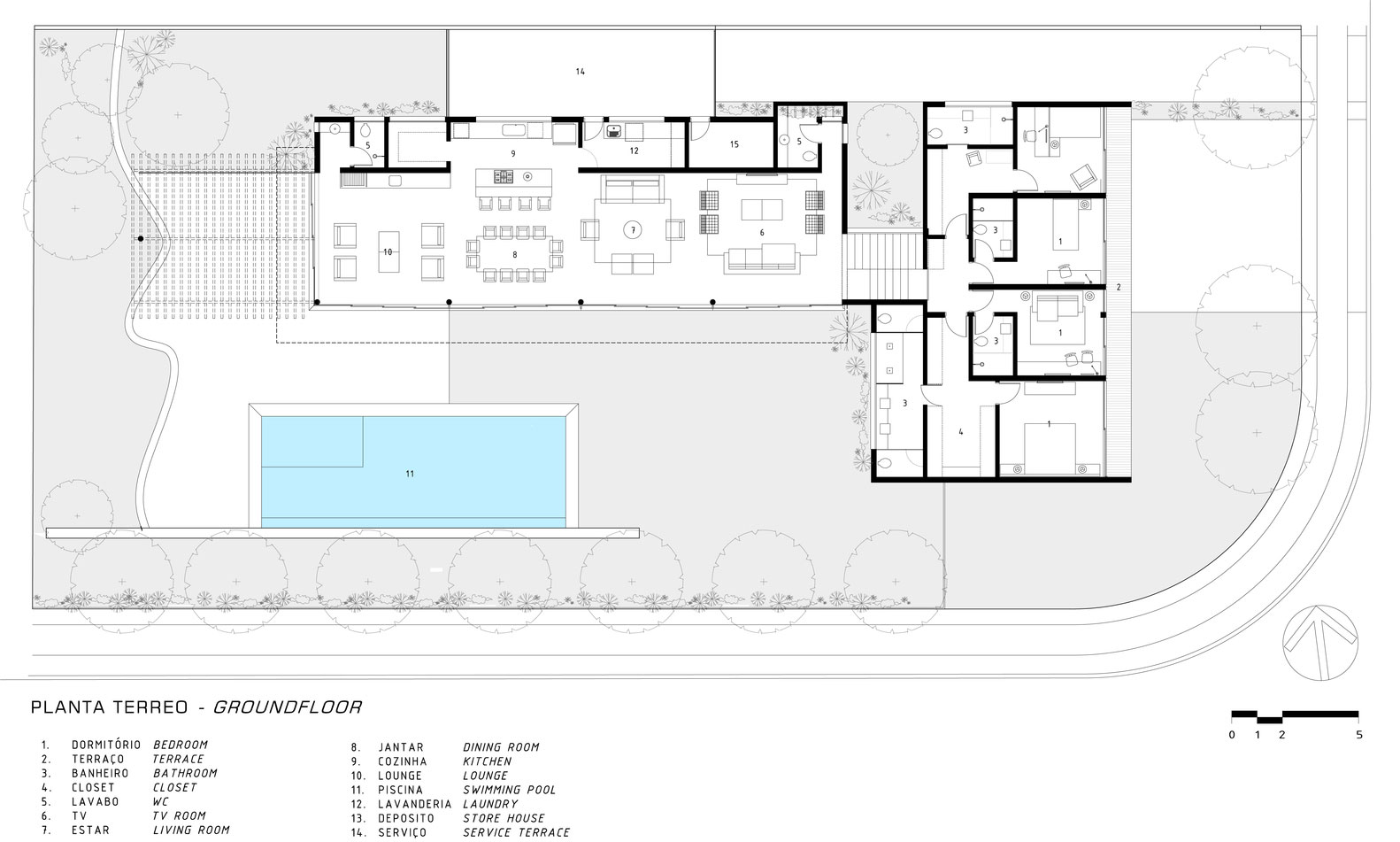
一層平面圖
剖面圖
剖面圖
立面圖
立面圖
立面圖
手繪圖
手繪圖
手繪圖
項目信息
建筑師:Ricardo Ropelle Felippi Arquiteto
位置:Vila Alvorada,巴西
總建筑面積:446.9平方米
項目年份:2015年
建筑攝影師:Priscilla Paggiaro
制造商:Conceito Marcenaria,Portinari,Solarium Revestimentos,Terracor Tintas e Revestimentos,AbraccioMóveis,Lustres Baronesa
結構工程師:魯本斯德奧利維拉
電氣和液壓工程師:Mega WattsProjetosElétricoseHidráulicos - Daniel Bissoli
注:文來自于archdaily,由建筑學院翻譯編輯,僅供分享不做任何商業用途,版權歸原作者所有。如若有圖文侵犯您權益,請及時與我們聯系,我們將第一時間做出處理。

