149㎡ 不太一樣的格局設計,電視機竟然掛在了廚房的墻上
作者:內小宅 (ID:insidehome) 來源:內小宅 (ID:insidehome)
住宅改造
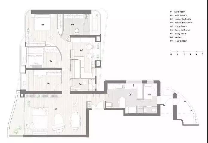
這個住宅位于香港
面積為 149㎡
住著一家四口
由 Bean Buro 翻新設
室內設有一間主臥套房
一間書房、一間兒童房和一間客房
▲平面圖
▲客廳立面圖
客廳以藍白色調為主
地板是帶有木質紋理的瓷磚
沙發背后一排藍色儲物格
可以放置各種書籍、擺件
客廳與餐廳之間放置了一架小型三角鋼琴
可以在閑暇時彈奏一曲
享受優美的音樂
餐廳將木地板延伸到了墻面
使整個空間形成連續性
創造出舒適個性的用餐環境
矩形餐桌可供6人同時用餐
上方的白色吊燈也很有設計感
廚房同樣是藍白色調為主
中間有一個小吧臺
可以在這里享用早餐
墻上的白色隔板可放各種調味料
很方便拿取
廚房的墻上還有一個掛壁電視
能一邊看電視聽音樂
一邊烹飪美食
▲走廊立面圖
通往主臥的走廊
兩邊設有隱藏式衣柜
配上圓形木質拉手很有創意
墻上還鑲嵌了圓形木質掛鉤
不僅實用還很美觀
房主是一名外科醫生
書房是專為他提供學習的地方
室內有一排書架
可容納大量書籍和文件
榻榻米設計或坐或臥都很舒適
兒童房暫時作為嬰兒房
墻面被粉刷成灰色和藍色兩個色調
藍色的區域作為寫字板使用
沒有其他的裝飾設計
房主覺得等孩子長大一些
在來改造這間臥室
▲臥室立面圖
主臥室連接著兒童房和書房
臥室的入口有一個藍色衣柜
在衣柜的后面設計了一面隱藏式推拉門
能保證臥室的私密性
拐角的弧形設計留有一個休閑區
也能將換下的衣服歸類在此處
讓臥室看起來更整潔
衛生間的門隱藏在白色柜子里
同樣選用了圓形的木質拉門
衛生間的轉角也是弧形
墻面和地板由小瓷磚拼成
菱形的紋理非常精致
兩個洗溯臺搭配鏡柜使用
在鏡柜的下方還安裝了燈帶提供照明
浴缸在窗戶的旁邊
既能給室內提供足夠的采光
又能在泡澡時欣賞外面的風景
地址:香港
面積:149㎡
設計:Bean Buro團隊
設計總監:LorèneFaure
Kenny Kinugasa-Tsui
高級設計師:Isabel Entrambasaguas Usero
設計師和助理:Aimee Daniels
- End -
免責提示:部分文章系網絡轉載,僅供分享不做任何商業用途,版權歸原作者所有。部分文章及圖片因轉載眾多,無法確認原作者與出處的,僅標明轉載來源。如有問題,請及時聯系我們將第一時間做出處理。

